三恵51ビルの貸事務所・賃貸オフィス情報
三恵51ビルの貸事務所・賃貸オフィス情報
三恵51ビル
- エレベーター
- 個別空調
- 旧耐震基準
三恵51ビルの空室フロアリスト
| 階数 | 面積 | 賃料+共益費 | 保証金 | 入居時期 | 更新料 | 償却費 | 礼金 | 検討 | 平面図 | 詳細 |
|---|---|---|---|---|---|---|---|---|---|---|
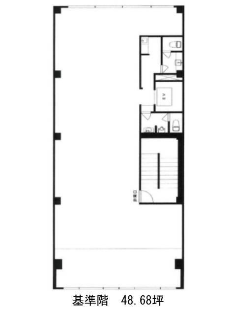
| 3 | 48.68坪 |
1,312,300円26,957円/坪
|
954万円
|
即 | 新1.5ケ月 | なし | なし |
三恵51ビルの物件情報
三恵51ビル(渋谷区恵比寿)は恵比寿駅徒歩3分、代官山駅徒歩13分の賃貸オフィスです。
三恵51ビルのアクセス
三恵51ビルの募集終了区画
| 階数 | 面積 | 賃料+共益費 | 保証金 | 入居時期 | 更新料 | 償却費 | 礼金 | 平面図 | 詳細 |
|---|---|---|---|---|---|---|---|---|---|
| 1 | 34.58坪 | − | − | 募集終了 | − | − | − | ||
| 2 | 48.68坪 | − | − | 募集終了 | − | − | − | ||
| 4 | 21.02坪 | − | − | 募集終了 | − | − | − | ||
| 5 | 46.68坪 | − | − | 募集終了 | − | − | − |


