今井保全ビルの貸事務所・賃貸オフィス情報
- 物件番号
- 806-00046
今井保全ビルの貸事務所・賃貸オフィス情報
今井保全ビルの物件情報
今井保全ビル(豊島区南大塚)は大塚駅徒歩2分、大塚駅前駅徒歩3分、向原駅徒歩6分の賃貸オフィスです。
- 所在地
- 東京都豊島区南大塚3-32-10
- 規模
- 地上8階
- 竣工
- 1978年1月
- エレベーター
- 個別空調
- 旧耐震基準
今井保全ビルの空室フロアリスト
階数 | 面積 | 賃料+共益費 | 保証金 | 入居時期 | 更新料 | 償却費 | 礼金 | 検討 | 平面図 | 詳細 |
---|---|---|---|---|---|---|---|---|---|---|
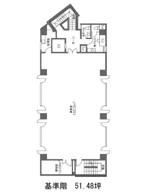
1 | 51.48坪 |
715,110円13,891円/坪
|
312万円
|
相談 | 新1ケ月 | なし | なし |
今井保全ビルの募集終了区画
階数 | 面積 | 賃料+共益費 | 保証金 | 入居時期 | 更新料 | 償却費 | 礼金 | 平面図 | 詳細 |
---|---|---|---|---|---|---|---|---|---|
2 | 51.48坪 | − | − | 募集終了 | − | − | − | ||
4 | 51.48坪 | − | − | 募集終了 | − | − | − | ||
5 | 51.48坪 | − | − | 募集終了 | − | − | − | ||
6 | 51.48坪 | − | − | 募集終了 | − | − | − | ||
7 | 51.48坪 | − | − | 募集終了 | − | − | − |