安田芝浦第2ビルの貸事務所・賃貸オフィス情報
- 物件番号
- 119-00042
安田芝浦第2ビルの貸事務所・賃貸オフィス情報
安田芝浦第2ビルの物件情報
安田芝浦第2ビル(港区海岸)は芝浦ふ頭駅徒歩6分、日の出駅徒歩10分、田町駅徒歩12分の賃貸オフィスです。
- 所在地
- 東京都港区海岸3-2-12
- 規模
- 地上7階/地下1階
- 竣工
- 1965年9月
- エレベーター
- 個別空調
- 駐車場
- 耐震補強済み
安田芝浦第2ビルの空室フロアリスト
階数 | 面積 | 賃料+共益費 | 保証金 | 入居時期 | 更新料 | 償却費 | 礼金 | 検討 | 平面図 | 詳細 |
---|---|---|---|---|---|---|---|---|---|---|
5 | 98.54坪 |
応相談応相談
|
応相談
|
2026年1月上旬 | なし | なし | なし |
安田芝浦第2ビルの募集終了区画
階数 | 面積 | 賃料+共益費 | 保証金 | 入居時期 | 更新料 | 償却費 | 礼金 | 平面図 | 詳細 |
---|---|---|---|---|---|---|---|---|---|
地下1 | 56.67坪 | − | − | 募集終了 | − | − | − | ||
1 | 66.64坪 | − | − | 募集終了 | − | − | − | ||
3 | 132.32坪 | − | − | 募集終了 | − | − | − | ||
4 | 100.68坪 | − | − | 募集終了 | − | − | − | ||
4 | 144.68坪 | − | − | 募集終了 | − | − | − | ||
5 | 100.46坪 | − | − | 募集終了 | − | − | − | ||
5 | 138.11坪 | − | − | 募集終了 | − | − | − | ||
5 | 241.21坪 | − | − | 募集終了 | − | − | − | ||
5 | 177.00坪 | − | − | 募集終了 | − | − | − | ||
5 | 103.12坪 | − | − | 募集終了 | − | − | − | ||
5 | 64.22坪 | − | − | 募集終了 | − | − | − | ||
5 | 233.64坪 | − | − | 募集終了 | − | − | − | ||
5 | 135.10坪 | − | − | 募集終了 | − | − | − | ||
5 | 31.88坪 | − | − | 募集終了 | − | − | − | ||
5 | 28.20坪 | − | − | 募集終了 | − | − | − | ||
5 | 60.08坪 | − | − | 募集終了 | − | − | − | ||
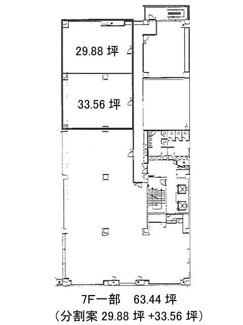
7 | 63.44坪 | − | − | 募集終了 | − | − | − | ||
7 | 29.88坪 | − | − | 募集終了 | − | − | − | ||
7 | 33.56坪 | − | − | 募集終了 | − | − | − | ||
7 | 20.41坪 | − | − | 募集終了 | − | − | − |