代市ビルの貸事務所・賃貸オフィス情報
代市ビルの貸事務所・賃貸オフィス情報
代市ビル
- エレベーター
- 個別空調
- 新耐震基準
代市ビルの空室フロアリスト
| 階数 | 面積 | 賃料+共益費 | 保証金 | 入居時期 | 更新料 | 償却費 | 礼金 | 検討 | 平面図 | 詳細 |
|---|---|---|---|---|---|---|---|---|---|---|
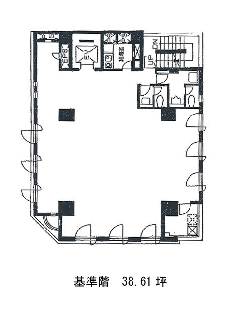
| 4 | 38.61坪 |
637,065円16,500円/坪
|
463万円
|
即 | 新1ケ月 | 2ケ月 | なし |
代市ビルの物件情報
代市ビル(港区新橋)は新橋駅徒歩6分、汐留駅徒歩7分、御成門駅徒歩8分の賃貸オフィスです。
代市ビルのアクセス
代市ビルの募集終了区画
| 階数 | 面積 | 賃料+共益費 | 保証金 | 入居時期 | 更新料 | 償却費 | 礼金 | 平面図 | 詳細 |
|---|---|---|---|---|---|---|---|---|---|
| 地下1 | 30.29坪 | − | − | 募集終了 | − | − | − | ||
| 2 | 39.20坪 | − | − | 募集終了 | − | − | − | ||
| 3 | 38.61坪 | − | − | 募集終了 | − | − | − | ||
| 6 | 38.61坪 | − | − | 募集終了 | − | − | − | ||
| 7 | 38.61坪 | − | − | 募集終了 | − | − | − |


