現在、空室がございません。
サイコービルの貸事務所・賃貸オフィス情報
サイコービルの貸事務所・賃貸オフィス情報
サイコービル
- 物件番号
- 552-00139
- 所在地
- 東京都台東区上野5-17-5
- 竣工
- 1992年10月
- 規模
- 地上6階
- エレベーター
- 新耐震基準
サイコービルの空室フロアリスト
現在、空室がございません。
サイコービルの物件情報
サイコービル(台東区上野)は仲御徒町駅徒歩3分、御徒町駅徒歩4分、上野御徒町駅徒歩4分の賃貸オフィスです。
サイコービルのアクセス
サイコービルの募集終了区画
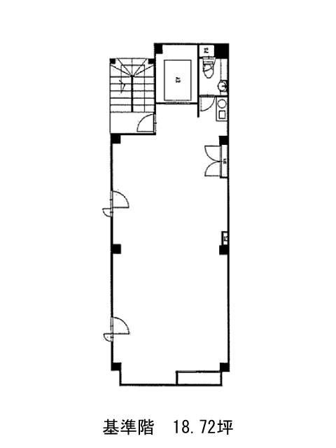
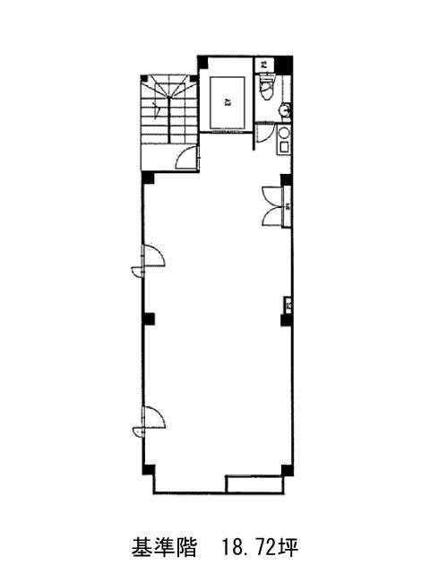
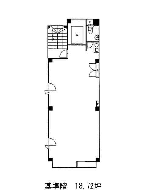
| 階数 | 面積 | 賃料+共益費 | 保証金 | 入居時期 | 更新料 | 償却費 | 礼金 | 平面図 | 詳細 |
|---|---|---|---|---|---|---|---|---|---|
| 2 | 18.72坪 | − | − | 募集終了 | − | − | − | ||
| 3 | 18.72坪 | − | − | 募集終了 | − | − | − | ||
| 4 | 18.72坪 | − | − | 募集終了 | − | − | − | ||
| 5 | 18.72坪 | − | − | 募集終了 | − | − | − |


