メックワンビルの貸事務所・賃貸オフィス情報
- 物件番号
- 568-00036
メックワンビルの貸事務所・賃貸オフィス情報
メックワンビルの物件情報
メックワンビル(台東区入谷)は入谷駅徒歩2分、鶯谷駅徒歩12分、三ノ輪駅徒歩13分の賃貸オフィスです。
- 所在地
- 東京都台東区入谷1-24-8
- 規模
- 地上7階/地下1階
- 竣工
- 1990年4月
- エレベーター
- 個別空調
- 新耐震基準
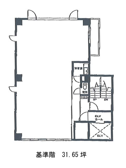
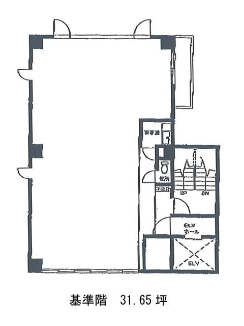
メックワンビルの空室フロアリスト
階数 | 面積 | 賃料+共益費 | 保証金 | 入居時期 | 更新料 | 償却費 | 礼金 | 検討 | 平面図 | 詳細 |
---|---|---|---|---|---|---|---|---|---|---|
4 | 31.65坪 |
257,040円8,122円/坪
|
43万円
|
相談 | 新1ケ月 | 1.5ケ月 | 1ケ月 |
メックワンビルの募集終了区画
階数 | 面積 | 賃料+共益費 | 保証金 | 入居時期 | 更新料 | 償却費 | 礼金 | 平面図 | 詳細 |
---|---|---|---|---|---|---|---|---|---|
地下1 | 31.64坪 | − | − | 募集終了 | − | − | − | ||
1 | 23.83坪 | − | − | 募集終了 | − | − | − | ||
2 | 31.65坪 | − | − | 募集終了 | − | − | − | ||
3 | 31.65坪 | − | − | 募集終了 | − | − | − |