鶯谷駅の貸事務所・賃貸オフィス
鶯谷駅の基本情報
鶯谷は寛永寺霊園や谷中霊園の最寄り駅です。 貸事務所はあまり多いエリアではなく、主に言問いどおりや金杉通りを中心にオフィスエリア形成しています。 荒川区と文京区に近く、寺社仏閣の多い下町です。
駅名の「うぐいす」にちなんで、朝の時間帯にはプラットホーム上のスピーカーから、鶯の鳴き声を流しています。
7件中 1~7 件目を表示中
- 物件番号
- 569-00086
- 所在地
- 東京都台東区北上野2-30-5
- 物件番号
- 569-00086
- 竣工年
- 1980年6月
- 所在地
- 東京都台東区北上野2-30-5
- 竣工年
- 1980年6月
- 規模
- 地上5階
| 階数 | 面積 | 賃料+共益費 | 保証金 | 入居時期 | 検討 | 図面 | 詳細 |
|---|---|---|---|---|---|---|---|
| 3 | 20.58坪 |
269,500円13,095円/坪
|
47万円
|
2025年12月中旬 |
空室フロアリスト
| 階数 | 面積 | 賃料+共益費 | 保証金 | 入居時期 | 検討 | 図面 | 詳細 |
|---|---|---|---|---|---|---|---|
| 3 | 20.58坪 |
269,500円13,095円/坪
|
47万円
|
2025年12月中旬 |
- 物件番号
- 545-00020
- 所在地
- 東京都台東区根岸3-6-1
- 物件番号
- 545-00020
- 竣工年
- 1991年9月
- 所在地
- 東京都台東区根岸3-6-1
- 竣工年
- 1991年9月
- 規模
- 地上10階
| 階数 | 面積 | 賃料+共益費 | 保証金 | 入居時期 | 検討 | 図面 | 詳細 |
|---|---|---|---|---|---|---|---|
| 4 | 17.68坪 |
300,000円16,968円/坪
|
81万円
|
相談 |
空室フロアリスト
| 階数 | 面積 | 賃料+共益費 | 保証金 | 入居時期 | 検討 | 図面 | 詳細 |
|---|---|---|---|---|---|---|---|
| 4 | 17.68坪 |
300,000円16,968円/坪
|
81万円
|
相談 |
- 物件番号
- 545-00095
- 所在地
- 東京都台東区根岸3-6-3
- 物件番号
- 545-00095
- 竣工年
- 1973年2月
- 所在地
- 東京都台東区根岸3-6-3
- 竣工年
- 1973年2月
- 規模
- 地上7階
| 階数 | 面積 | 賃料+共益費 | 保証金 | 入居時期 | 検討 | 図面 | 詳細 |
|---|---|---|---|---|---|---|---|
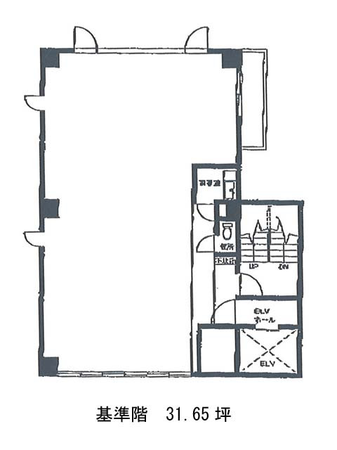
| 1 | 36.50坪 |
990,000円27,123円/坪
|
450万円
|
即 |
空室フロアリスト
| 階数 | 面積 | 賃料+共益費 | 保証金 | 入居時期 | 検討 | 図面 | 詳細 |
|---|---|---|---|---|---|---|---|
| 1 | 36.50坪 |
990,000円27,123円/坪
|
450万円
|
即 |
- 物件番号
- 563-00043
- 所在地
- 東京都台東区池之端4-16-29
- 物件番号
- 563-00043
- 竣工年
- 1990年5月
- 所在地
- 東京都台東区池之端4-16-29
- 竣工年
- 1990年5月
- 規模
- 地上3階/地下1階
| 階数 | 面積 | 賃料+共益費 | 保証金 | 入居時期 | 検討 | 図面 | 詳細 |
|---|---|---|---|---|---|---|---|
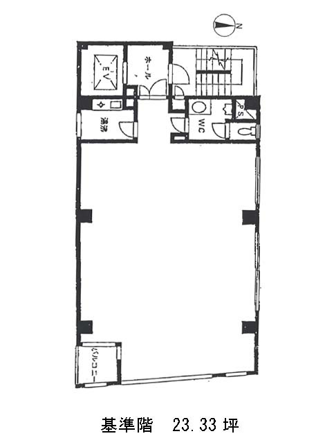
| 地下1 | 57.83坪 |
585,000円10,117円/坪
|
250万円
|
即 |
空室フロアリスト
| 階数 | 面積 | 賃料+共益費 | 保証金 | 入居時期 | 検討 | 図面 | 詳細 |
|---|---|---|---|---|---|---|---|
| 地下1 | 57.83坪 |
585,000円10,117円/坪
|
250万円
|
即 |
- 物件番号
- 568-00018
- 所在地
- 東京都台東区入谷1-27-5
- 物件番号
- 568-00018
- 竣工年
- 1989年12月
- 所在地
- 東京都台東区入谷1-27-5
- 竣工年
- 1989年12月
- 規模
- 地上10階/地下1階
| 階数 | 面積 | 賃料+共益費 | 保証金 | 入居時期 | 検討 | 図面 | 詳細 |
|---|---|---|---|---|---|---|---|
| 6 | 17.58坪 |
232,056円13,200円/坪
|
84万円
|
即 |
空室フロアリスト
| 階数 | 面積 | 賃料+共益費 | 保証金 | 入居時期 | 検討 | 図面 | 詳細 |
|---|---|---|---|---|---|---|---|
| 6 | 17.58坪 |
232,056円13,200円/坪
|
84万円
|
即 |
- 物件番号
- 568-00020
- 所在地
- 東京都台東区入谷1-2-3
- 物件番号
- 568-00020
- 竣工年
- 1990年5月
- 所在地
- 東京都台東区入谷1-2-3
- 竣工年
- 1990年5月
- 規模
- 地上8階
| 階数 | 面積 | 賃料+共益費 | 保証金 | 入居時期 | 検討 | 図面 | 詳細 |
|---|---|---|---|---|---|---|---|
| 2 | 36.85坪 |
398,014円10,800円/坪
|
200万円
|
即 |
空室フロアリスト
| 階数 | 面積 | 賃料+共益費 | 保証金 | 入居時期 | 検討 | 図面 | 詳細 |
|---|---|---|---|---|---|---|---|
| 2 | 36.85坪 |
398,014円10,800円/坪
|
200万円
|
即 |
- 物件番号
- 545-00104
- 所在地
- 東京都台東区根岸1-6-13
- 物件番号
- 545-00104
- 竣工年
- 1987年5月
- 所在地
- 東京都台東区根岸1-6-13
- 竣工年
- 1987年5月
- 規模
- 地上6階
| 階数 | 面積 | 賃料+共益費 | 保証金 | 入居時期 | 検討 | 図面 | 詳細 |
|---|---|---|---|---|---|---|---|
| 5-6F | 15.89坪 |
187,000円11,770円/坪
|
48万円
|
即 |
空室フロアリスト
| 階数 | 面積 | 賃料+共益費 | 保証金 | 入居時期 | 検討 | 図面 | 詳細 |
|---|---|---|---|---|---|---|---|
| 5-6F | 15.89坪 |
187,000円11,770円/坪
|
48万円
|
即 |
7件中 1~7 件目を表示中


