神田駅の貸事務所・賃貸オフィス
神田駅の基本情報
                        神田の貸事務所はテナント募集フロアが約750フロアあるオフィスビルの多い地域です。 駅周辺一帯にオフィスビルが建ち並び、淡路町駅などへも徒歩圏の交通アクセスの良い地域です。 神田○○という町名は住居表示未設定の為、駅周辺はたくさんの町名があります。(神田鍛冶町・神田多町・神田東松下町・神田富山町etc)
 駅から北東方面の昭和通りを越えた岩本町エリアが、神田駅を利用できる貸事務所の中でも格安事務所の多い地域です。
                        
 
                - 物件番号
- 415-00001
- 所在地
- 東京都千代田区神田北乗物町2-1-13
- 物件番号
- 415-00001
- 竣工年
- 1985年3月
- 所在地
- 東京都千代田区神田北乗物町2-1-13
- 竣工年
- 1985年3月
- 規模
- 地上9階/地下3階
| 階数 | 面積 | 賃料+共益費 | 保証金 | 入居時期 | 検討 | 図面 | 詳細 | 
|---|---|---|---|---|---|---|---|
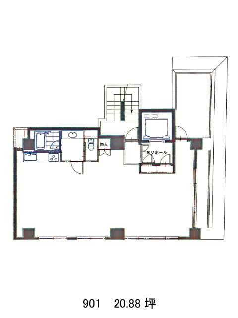
| 9 | 20.88坪 | 
                                                297,964円14,270円/坪
                                             | 
                                                162万円
                                             | 2025年12月下旬 | 
空室フロアリスト
| 階数 | 面積 | 賃料+共益費 | 保証金 | 入居時期 | 検討 | 図面 | 詳細 | 
|---|---|---|---|---|---|---|---|
| 9 | 20.88坪 | 
                                                297,964円14,270円/坪
                                             | 
                                                162万円
                                             | 2025年12月下旬 | 
 
                - 物件番号
- 423-00252
- 所在地
- 東京都千代田区内神田3-18-3
- 物件番号
- 423-00252
- 竣工年
- 1962年1月
- 所在地
- 東京都千代田区内神田3-18-3
- 竣工年
- 1962年1月
- 規模
- 地上7階/地下1階
| 階数 | 面積 | 賃料+共益費 | 保証金 | 入居時期 | 検討 | 図面 | 詳細 | 
|---|---|---|---|---|---|---|---|
| 3 | 39.77坪 | 
                                                634,331円15,950円/坪
                                             | 
                                                274万円
                                             | 2025年12月上旬 | |||
| 4 | 39.77坪 | 
                                                634,331円15,950円/坪
                                             | 
                                                274万円
                                             | 2025年12月上旬 | 
空室フロアリスト
| 階数 | 面積 | 賃料+共益費 | 保証金 | 入居時期 | 検討 | 図面 | 詳細 | 
|---|---|---|---|---|---|---|---|
| 3 | 39.77坪 | 
                                                634,331円15,950円/坪
                                             | 
                                                274万円
                                             | 2025年12月上旬 | |||
| 4 | 39.77坪 | 
                                                634,331円15,950円/坪
                                             | 
                                                274万円
                                             | 2025年12月上旬 | 
 
                - 物件番号
- 423-00269
- 所在地
- 東京都千代田区内神田1-3-9
- 物件番号
- 423-00269
- 竣工年
- 2001年9月
- 所在地
- 東京都千代田区内神田1-3-9
- 竣工年
- 2001年9月
- 規模
- 地上5階
| 階数 | 面積 | 賃料+共益費 | 保証金 | 入居時期 | 検討 | 図面 | 詳細 | 
|---|---|---|---|---|---|---|---|
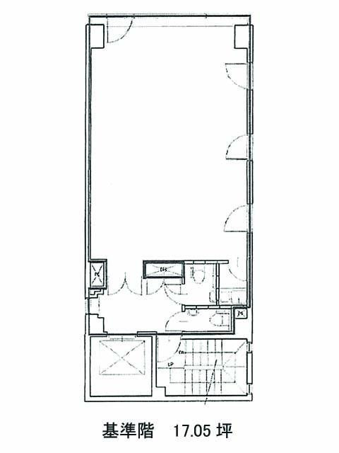
| 4 | 17.05坪 | 
                                                281,325円16,500円/坪
                                             | 
                                                163万円
                                             | 2026年4月中旬 | 
空室フロアリスト
| 階数 | 面積 | 賃料+共益費 | 保証金 | 入居時期 | 検討 | 図面 | 詳細 | 
|---|---|---|---|---|---|---|---|
| 4 | 17.05坪 | 
                                                281,325円16,500円/坪
                                             | 
                                                163万円
                                             | 2026年4月中旬 | 
 
                - 物件番号
- 403-00232
- 所在地
- 東京都千代田区神田須田町1-24-6
- 物件番号
- 403-00232
- 竣工年
- 2008年9月
- 所在地
- 東京都千代田区神田須田町1-24-6
- 竣工年
- 2008年9月
- 規模
- 地上11階
| 階数 | 面積 | 賃料+共益費 | 保証金 | 入居時期 | 検討 | 図面 | 詳細 | 
|---|---|---|---|---|---|---|---|
| 5 | 43.06坪 | 
                                                応相談応相談
                                             | 
                                                応相談
                                             | 2026年1月下旬 | |||
| 7 | 43.06坪 | 
                                                応相談応相談
                                             | 
                                                826万円
                                             | 即 | 
空室フロアリスト
| 階数 | 面積 | 賃料+共益費 | 保証金 | 入居時期 | 検討 | 図面 | 詳細 | 
|---|---|---|---|---|---|---|---|
| 5 | 43.06坪 | 
                                                応相談応相談
                                             | 
                                                応相談
                                             | 2026年1月下旬 | |||
| 7 | 43.06坪 | 
                                                応相談応相談
                                             | 
                                                826万円
                                             | 即 | 
 
                - 物件番号
- 423-00023
- 所在地
- 東京都千代田区内神田1-18-12
- 物件番号
- 423-00023
- 竣工年
- 1987年11月
- 所在地
- 東京都千代田区内神田1-18-12
- 竣工年
- 1987年11月
- 規模
- 地上9階
| 階数 | 面積 | 賃料+共益費 | 保証金 | 入居時期 | 検討 | 図面 | 詳細 | 
|---|---|---|---|---|---|---|---|
| 3 | 55.85坪 | 
                                                1,105,830円19,800円/坪
                                             | 
                                                502万円
                                             | 2026年4月上旬 | |||
| 4 | 55.85坪 | 
                                                1,105,830円19,800円/坪
                                             | 
                                                502万円
                                             | 2026年4月上旬 | 
空室フロアリスト
| 階数 | 面積 | 賃料+共益費 | 保証金 | 入居時期 | 検討 | 図面 | 詳細 | 
|---|---|---|---|---|---|---|---|
| 3 | 55.85坪 | 
                                                1,105,830円19,800円/坪
                                             | 
                                                502万円
                                             | 2026年4月上旬 | |||
| 4 | 55.85坪 | 
                                                1,105,830円19,800円/坪
                                             | 
                                                502万円
                                             | 2026年4月上旬 | 
 
                - 物件番号
- 408-00048
- 所在地
- 東京都千代田区神田鍛冶町3-8-6
- 物件番号
- 408-00048
- 竣工年
- 1972年7月
- 所在地
- 東京都千代田区神田鍛冶町3-8-6
- 竣工年
- 1972年7月
- 規模
- 地上7階/地下1階
| 階数 | 面積 | 賃料+共益費 | 保証金 | 入居時期 | 検討 | 図面 | 詳細 | 
|---|---|---|---|---|---|---|---|
| 6 | 23.50坪 | 
                                                336,050円14,300円/坪
                                             | 
                                                206万円
                                             | 即 | 
空室フロアリスト
| 階数 | 面積 | 賃料+共益費 | 保証金 | 入居時期 | 検討 | 図面 | 詳細 | 
|---|---|---|---|---|---|---|---|
| 6 | 23.50坪 | 
                                                336,050円14,300円/坪
                                             | 
                                                206万円
                                             | 即 | 
 
                - 物件番号
- 423-00010
- 所在地
- 東京都千代田区内神田3-4-13
- 物件番号
- 423-00010
- 竣工年
- 1990年10月
- 所在地
- 東京都千代田区内神田3-4-13
- 竣工年
- 1990年10月
- 規模
- 地上8階
| 階数 | 面積 | 賃料+共益費 | 保証金 | 入居時期 | 検討 | 図面 | 詳細 | 
|---|---|---|---|---|---|---|---|
| 2 | 15.74坪 | 
                                                268,383円17,051円/坪
                                             | 
                                                78万円
                                             | 2026年1月中旬 | 
空室フロアリスト
| 階数 | 面積 | 賃料+共益費 | 保証金 | 入居時期 | 検討 | 図面 | 詳細 | 
|---|---|---|---|---|---|---|---|
| 2 | 15.74坪 | 
                                                268,383円17,051円/坪
                                             | 
                                                78万円
                                             | 2026年1月中旬 | 
 
                - 物件番号
- 383-00030
- 所在地
- 東京都千代田区岩本町2-8-8
- 物件番号
- 383-00030
- 竣工年
- 1991年9月
- 所在地
- 東京都千代田区岩本町2-8-8
- 竣工年
- 1991年9月
- 規模
- 地上9階/地下1階
| 階数 | 面積 | 賃料+共益費 | 保証金 | 入居時期 | 検討 | 図面 | 詳細 | 
|---|---|---|---|---|---|---|---|
| 1 | 50.93坪 | 
                                                1,344,552円26,400円/坪
                                             | 
                                                応相談
                                             | 2026年1月下旬 | |||
| 5 | 87.84坪 | 
                                                2,318,976円26,400円/坪
                                             | 
                                                1264万円
                                             | 即 | |||
| 7 | 69.66坪 | 
                                                1,839,024円26,400円/坪
                                             | 
                                                1003万円
                                             | 即 | |||
| 8 | 60.68坪 | 
                                                1,601,952円26,400円/坪
                                             | 
                                                873万円
                                             | 2025年12月上旬 | |||
| 9 | 51.84坪 | 
                                                1,368,576円26,400円/坪
                                             | 
                                                746万円
                                             | 2025年12月上旬 | 
空室フロアリスト
| 階数 | 面積 | 賃料+共益費 | 保証金 | 入居時期 | 検討 | 図面 | 詳細 | 
|---|---|---|---|---|---|---|---|
| 1 | 50.93坪 | 
                                                1,344,552円26,400円/坪
                                             | 
                                                応相談
                                             | 2026年1月下旬 | |||
| 5 | 87.84坪 | 
                                                2,318,976円26,400円/坪
                                             | 
                                                1264万円
                                             | 即 | |||
| 7 | 69.66坪 | 
                                                1,839,024円26,400円/坪
                                             | 
                                                1003万円
                                             | 即 | |||
| 8 | 60.68坪 | 
                                                1,601,952円26,400円/坪
                                             | 
                                                873万円
                                             | 2025年12月上旬 | |||
| 9 | 51.84坪 | 
                                                1,368,576円26,400円/坪
                                             | 
                                                746万円
                                             | 2025年12月上旬 | 
 
                - 物件番号
- 423-00476
- 所在地
- 東京都千代田区内神田1-31-11
- 物件番号
- 423-00476
- 竣工年
- 2026年7月
- 所在地
- 東京都千代田区内神田1-31-11
- 竣工年
- 2026年7月
- 規模
- 地上26階/地下3階
| 階数 | 面積 | 賃料+共益費 | 保証金 | 入居時期 | 検討 | 図面 | 詳細 | 
|---|---|---|---|---|---|---|---|
| 8 | 179.20坪 | 
                                                応相談応相談
                                             | 
                                                応相談
                                             | 2027年2月上旬 | |||
| 18 | 157.50坪 | 
                                                応相談応相談
                                             | 
                                                応相談
                                             | 2027年2月上旬 | |||
| 18 | 48.50坪 | 
                                                応相談応相談
                                             | 
                                                応相談
                                             | 2027年2月上旬 | |||
| 18 | 48.50坪 | 
                                                応相談応相談
                                             | 
                                                応相談
                                             | 2027年2月上旬 | |||
| 18 | 94.50坪 | 
                                                応相談応相談
                                             | 
                                                応相談
                                             | 2027年2月上旬 | |||
| 18 | 131.10坪 | 
                                                応相談応相談
                                             | 
                                                応相談
                                             | 2027年2月上旬 | |||
| 18 | 34.80坪 | 
                                                応相談応相談
                                             | 
                                                応相談
                                             | 2027年2月上旬 | 
空室フロアリスト
| 階数 | 面積 | 賃料+共益費 | 保証金 | 入居時期 | 検討 | 図面 | 詳細 | 
|---|---|---|---|---|---|---|---|
| 8 | 179.20坪 | 
                                                応相談応相談
                                             | 
                                                応相談
                                             | 2027年2月上旬 | |||
| 18 | 157.50坪 | 
                                                応相談応相談
                                             | 
                                                応相談
                                             | 2027年2月上旬 | |||
| 18 | 48.50坪 | 
                                                応相談応相談
                                             | 
                                                応相談
                                             | 2027年2月上旬 | |||
| 18 | 48.50坪 | 
                                                応相談応相談
                                             | 
                                                応相談
                                             | 2027年2月上旬 | |||
| 18 | 94.50坪 | 
                                                応相談応相談
                                             | 
                                                応相談
                                             | 2027年2月上旬 | |||
| 18 | 131.10坪 | 
                                                応相談応相談
                                             | 
                                                応相談
                                             | 2027年2月上旬 | |||
| 18 | 34.80坪 | 
                                                応相談応相談
                                             | 
                                                応相談
                                             | 2027年2月上旬 | 
 
                - 物件番号
- 383-00005
- 所在地
- 東京都千代田区岩本町3-2-1
- 物件番号
- 383-00005
- 竣工年
- 1971年8月
- 所在地
- 東京都千代田区岩本町3-2-1
- 竣工年
- 1971年8月
- 規模
- 地上10階
| 階数 | 面積 | 賃料+共益費 | 保証金 | 入居時期 | 検討 | 図面 | 詳細 | 
|---|---|---|---|---|---|---|---|
| 3 | 37.80坪 | 
                                                498,958円13,200円/坪
                                             | 
                                                272万円
                                             | 2025年11月上旬 | |||
| 6 | 37.80坪 | 
                                                498,960円13,200円/坪
                                             | 
                                                272万円
                                             | 2025年11月上旬 | 
空室フロアリスト
| 階数 | 面積 | 賃料+共益費 | 保証金 | 入居時期 | 検討 | 図面 | 詳細 | 
|---|---|---|---|---|---|---|---|
| 3 | 37.80坪 | 
                                                498,958円13,200円/坪
                                             | 
                                                272万円
                                             | 2025年11月上旬 | |||
| 6 | 37.80坪 | 
                                                498,960円13,200円/坪
                                             | 
                                                272万円
                                             | 2025年11月上旬 | 
 
                - 物件番号
- 383-00071
- 所在地
- 東京都千代田区岩本町2-4-1
- 物件番号
- 383-00071
- 竣工年
- 1970年4月
- 所在地
- 東京都千代田区岩本町2-4-1
- 竣工年
- 1970年4月
- 規模
- 地上9階
| 階数 | 面積 | 賃料+共益費 | 保証金 | 入居時期 | 検討 | 図面 | 詳細 | 
|---|---|---|---|---|---|---|---|
| 6 | 22.80坪 | 
                                                739,860円32,450円/坪
                                             | 
                                                応相談
                                             | 即 | |||
| 6 | 43.71坪 | 
                                                1,418,389円32,450円/坪
                                             | 
                                                1158万円
                                             | 即 | |||
| 6 | 20.09坪 | 
                                                696,118円34,650円/坪
                                             | 
                                                458万円
                                             | 即 | 
空室フロアリスト
| 階数 | 面積 | 賃料+共益費 | 保証金 | 入居時期 | 検討 | 図面 | 詳細 | 
|---|---|---|---|---|---|---|---|
| 6 | 22.80坪 | 
                                                739,860円32,450円/坪
                                             | 
                                                応相談
                                             | 即 | |||
| 6 | 43.71坪 | 
                                                1,418,389円32,450円/坪
                                             | 
                                                1158万円
                                             | 即 | |||
| 6 | 20.09坪 | 
                                                696,118円34,650円/坪
                                             | 
                                                458万円
                                             | 即 | 
 
                - 物件番号
- 408-00017
- 所在地
- 東京都千代田区神田鍛冶町3-4
- 物件番号
- 408-00017
- 竣工年
- 2017年8月
- 所在地
- 東京都千代田区神田鍛冶町3-4
- 竣工年
- 2017年8月
- 規模
- 地上9階/地下1階
| 階数 | 面積 | 賃料+共益費 | 保証金 | 入居時期 | 検討 | 図面 | 詳細 | 
|---|---|---|---|---|---|---|---|
| 5 | 124.79坪 | 
                                                応相談応相談
                                             | 
                                                応相談
                                             | 2026年4月 | |||
| 6 | 215.00坪 | 
                                                応相談応相談
                                             | 
                                                応相談
                                             | 2026年4月 | 
空室フロアリスト
| 階数 | 面積 | 賃料+共益費 | 保証金 | 入居時期 | 検討 | 図面 | 詳細 | 
|---|---|---|---|---|---|---|---|
| 5 | 124.79坪 | 
                                                応相談応相談
                                             | 
                                                応相談
                                             | 2026年4月 | |||
| 6 | 215.00坪 | 
                                                応相談応相談
                                             | 
                                                応相談
                                             | 2026年4月 | 
 
                - 物件番号
- 423-00234
- 所在地
- 東京都千代田区内神田1-11-11
- 物件番号
- 423-00234
- 竣工年
- 1978年3月
- 所在地
- 東京都千代田区内神田1-11-11
- 竣工年
- 1978年3月
- 規模
- 地上6階
| 階数 | 面積 | 賃料+共益費 | 保証金 | 入居時期 | 検討 | 図面 | 詳細 | 
|---|---|---|---|---|---|---|---|
| 3 | 43.00坪 | 
                                                567,600円13,200円/坪
                                             | 
                                                309万円
                                             | 即 | |||
| 4 | 43.00坪 | 
                                                567,600円13,200円/坪
                                             | 
                                                309万円
                                             | 即 | |||
| 6 | 15.00坪 | 
                                                198,000円13,200円/坪
                                             | 
                                                108万円
                                             | 2026年3月中旬 | 
空室フロアリスト
| 階数 | 面積 | 賃料+共益費 | 保証金 | 入居時期 | 検討 | 図面 | 詳細 | 
|---|---|---|---|---|---|---|---|
| 3 | 43.00坪 | 
                                                567,600円13,200円/坪
                                             | 
                                                309万円
                                             | 即 | |||
| 4 | 43.00坪 | 
                                                567,600円13,200円/坪
                                             | 
                                                309万円
                                             | 即 | |||
| 6 | 15.00坪 | 
                                                198,000円13,200円/坪
                                             | 
                                                108万円
                                             | 2026年3月中旬 | 
 
                - 物件番号
- 403-00014
- 所在地
- 東京都千代田区神田須田町1-26
- 物件番号
- 403-00014
- 竣工年
- 1980年11月
- 所在地
- 東京都千代田区神田須田町1-26
- 竣工年
- 1980年11月
- 規模
- 地上8階/地下1階
| 階数 | 面積 | 賃料+共益費 | 保証金 | 入居時期 | 検討 | 図面 | 詳細 | 
|---|---|---|---|---|---|---|---|
| 2 | 22.04坪 | 
                                                412,148円18,700円/坪
                                             | 
                                                224万円
                                             | 2026年3月中旬 | 
空室フロアリスト
| 階数 | 面積 | 賃料+共益費 | 保証金 | 入居時期 | 検討 | 図面 | 詳細 | 
|---|---|---|---|---|---|---|---|
| 2 | 22.04坪 | 
                                                412,148円18,700円/坪
                                             | 
                                                224万円
                                             | 2026年3月中旬 | 
 
                - 物件番号
- 381-00021
- 所在地
- 東京都千代田区外神田3-14-10
- 物件番号
- 381-00021
- 竣工年
- 1991年5月
- 所在地
- 東京都千代田区外神田3-14-10
- 竣工年
- 1991年5月
- 規模
- 地上8階/地下1階
| 階数 | 面積 | 賃料+共益費 | 保証金 | 入居時期 | 検討 | 図面 | 詳細 | 
|---|---|---|---|---|---|---|---|
| 5 | 146.00坪 | 
                                                4,336,200円29,700円/坪
                                             | 
                                                3854万円
                                             | 即 | 
空室フロアリスト
| 階数 | 面積 | 賃料+共益費 | 保証金 | 入居時期 | 検討 | 図面 | 詳細 | 
|---|---|---|---|---|---|---|---|
| 5 | 146.00坪 | 
                                                4,336,200円29,700円/坪
                                             | 
                                                3854万円
                                             | 即 | 
 
                - 物件番号
- 400-00202
- 所在地
- 東京都千代田区神田小川町1-4
- 物件番号
- 400-00202
- 竣工年
- 2025年3月
- 所在地
- 東京都千代田区神田小川町1-4
- 竣工年
- 2025年3月
- 規模
- 地上14階
| 階数 | 面積 | 賃料+共益費 | 保証金 | 入居時期 | 検討 | 図面 | 詳細 | 
|---|---|---|---|---|---|---|---|
| 5 | 95.69坪 | 
                                                3,190,000円33,337円/坪
                                             | 
                                                1740万円
                                             | 即 | |||
| 6 | 95.69坪 | 
                                                3,300,000円34,487円/坪
                                             | 
                                                1800万円
                                             | 即 | |||
| 9 | 95.69坪 | 
                                                3,410,000円35,636円/坪
                                             | 
                                                1860万円
                                             | 即 | |||
| 10 | 95.69坪 | 
                                                3,520,000円36,786円/坪
                                             | 
                                                1920万円
                                             | 即 | |||
| 12 | 95.69坪 | 
                                                3,740,000円39,085円/坪
                                             | 
                                                2040万円
                                             | 即 | |||
| 13 | 95.69坪 | 
                                                3,740,000円39,085円/坪
                                             | 
                                                2040万円
                                             | 即 | 
空室フロアリスト
| 階数 | 面積 | 賃料+共益費 | 保証金 | 入居時期 | 検討 | 図面 | 詳細 | 
|---|---|---|---|---|---|---|---|
| 5 | 95.69坪 | 
                                                3,190,000円33,337円/坪
                                             | 
                                                1740万円
                                             | 即 | |||
| 6 | 95.69坪 | 
                                                3,300,000円34,487円/坪
                                             | 
                                                1800万円
                                             | 即 | |||
| 9 | 95.69坪 | 
                                                3,410,000円35,636円/坪
                                             | 
                                                1860万円
                                             | 即 | |||
| 10 | 95.69坪 | 
                                                3,520,000円36,786円/坪
                                             | 
                                                1920万円
                                             | 即 | |||
| 12 | 95.69坪 | 
                                                3,740,000円39,085円/坪
                                             | 
                                                2040万円
                                             | 即 | |||
| 13 | 95.69坪 | 
                                                3,740,000円39,085円/坪
                                             | 
                                                2040万円
                                             | 即 | 
 
                - 物件番号
- 413-00036
- 所在地
- 東京都千代田区神田富山町8
- 物件番号
- 413-00036
- 竣工年
- 2024年3月
- 所在地
- 東京都千代田区神田富山町8
- 竣工年
- 2024年3月
- 規模
- 地上10階
| 階数 | 面積 | 賃料+共益費 | 保証金 | 入居時期 | 検討 | 図面 | 詳細 | 
|---|---|---|---|---|---|---|---|
| 3 | 37.63坪 | 
                                                910,646円24,200円/坪
                                             | 
                                                496万円
                                             | 2026年1月中旬 | 
空室フロアリスト
| 階数 | 面積 | 賃料+共益費 | 保証金 | 入居時期 | 検討 | 図面 | 詳細 | 
|---|---|---|---|---|---|---|---|
| 3 | 37.63坪 | 
                                                910,646円24,200円/坪
                                             | 
                                                496万円
                                             | 2026年1月中旬 | 
 
                - 物件番号
- 661-00252
- 所在地
- 東京都中央区日本橋本町4-5-13
- 物件番号
- 661-00252
- 竣工年
- 2024年6月
- 所在地
- 東京都中央区日本橋本町4-5-13
- 竣工年
- 2024年6月
- 規模
- 地上10階/地下1階
| 階数 | 面積 | 賃料+共益費 | 保証金 | 入居時期 | 検討 | 図面 | 詳細 | 
|---|---|---|---|---|---|---|---|
| 地下1 | 20.37坪 | 
                                                応相談応相談
                                             | 
                                                応相談
                                             | 2026年3月上旬 | |||
| 4 | 31.31坪 | 
                                                応相談応相談
                                             | 
                                                応相談
                                             | 即 | |||
| 5 | 31.31坪 | 
                                                応相談応相談
                                             | 
                                                応相談
                                             | 即 | |||
| 6 | 31.31坪 | 
                                                応相談応相談
                                             | 
                                                応相談
                                             | 即 | |||
| 8 | 29.23坪 | 
                                                応相談応相談
                                             | 
                                                応相談
                                             | 即 | |||
| 9 | 29.23坪 | 
                                                応相談応相談
                                             | 
                                                応相談
                                             | 即 | |||
| 10 | 29.23坪 | 
                                                応相談応相談
                                             | 
                                                応相談
                                             | 即 | 
空室フロアリスト
| 階数 | 面積 | 賃料+共益費 | 保証金 | 入居時期 | 検討 | 図面 | 詳細 | 
|---|---|---|---|---|---|---|---|
| 地下1 | 20.37坪 | 
                                                応相談応相談
                                             | 
                                                応相談
                                             | 2026年3月上旬 | |||
| 4 | 31.31坪 | 
                                                応相談応相談
                                             | 
                                                応相談
                                             | 即 | |||
| 5 | 31.31坪 | 
                                                応相談応相談
                                             | 
                                                応相談
                                             | 即 | |||
| 6 | 31.31坪 | 
                                                応相談応相談
                                             | 
                                                応相談
                                             | 即 | |||
| 8 | 29.23坪 | 
                                                応相談応相談
                                             | 
                                                応相談
                                             | 即 | |||
| 9 | 29.23坪 | 
                                                応相談応相談
                                             | 
                                                応相談
                                             | 即 | |||
| 10 | 29.23坪 | 
                                                応相談応相談
                                             | 
                                                応相談
                                             | 即 | 
 
                - 物件番号
- 405-00001
- 所在地
- 東京都千代田区神田相生町1
- 物件番号
- 405-00001
- 竣工年
- 2007年8月
- 所在地
- 東京都千代田区神田相生町1
- 竣工年
- 2007年8月
- 規模
- 地上16階/地下2階
| 階数 | 面積 | 賃料+共益費 | 保証金 | 入居時期 | 検討 | 図面 | 詳細 | 
|---|---|---|---|---|---|---|---|
| 15 | 169.33坪 | 
                                                応相談応相談
                                             | 
                                                応相談
                                             | 2026年7月上旬 | 
空室フロアリスト
| 階数 | 面積 | 賃料+共益費 | 保証金 | 入居時期 | 検討 | 図面 | 詳細 | 
|---|---|---|---|---|---|---|---|
| 15 | 169.33坪 | 
                                                応相談応相談
                                             | 
                                                応相談
                                             | 2026年7月上旬 | 
 
                - 物件番号
- 411-00002
- 所在地
- 東京都千代田区神田美倉町4
- 物件番号
- 411-00002
- 竣工年
- 2019年11月
- 所在地
- 東京都千代田区神田美倉町4
- 竣工年
- 2019年11月
- 規模
- 地上9階/地下1階
| 階数 | 面積 | 賃料+共益費 | 保証金 | 入居時期 | 検討 | 図面 | 詳細 | 
|---|---|---|---|---|---|---|---|
| 5 | 30.11坪 | 
                                                695,541円23,100円/坪
                                             | 
                                                496万円
                                             | 2025年12月中旬 | 
空室フロアリスト
| 階数 | 面積 | 賃料+共益費 | 保証金 | 入居時期 | 検討 | 図面 | 詳細 | 
|---|---|---|---|---|---|---|---|
| 5 | 30.11坪 | 
                                                695,541円23,100円/坪
                                             | 
                                                496万円
                                             | 2025年12月中旬 | 
 
                - 物件番号
- 398-00093
- 所在地
- 東京都千代田区神田司町2-4-4
- 物件番号
- 398-00093
- 竣工年
- 1986年7月
- 所在地
- 東京都千代田区神田司町2-4-4
- 竣工年
- 1986年7月
- 規模
- 地上9階
| 階数 | 面積 | 賃料+共益費 | 保証金 | 入居時期 | 検討 | 図面 | 詳細 | 
|---|---|---|---|---|---|---|---|
| 4 | 16.20坪 | 
                                                231,000円14,259円/坪
                                             | 
                                                126万円
                                             | 即 | 
空室フロアリスト
| 階数 | 面積 | 賃料+共益費 | 保証金 | 入居時期 | 検討 | 図面 | 詳細 | 
|---|---|---|---|---|---|---|---|
| 4 | 16.20坪 | 
                                                231,000円14,259円/坪
                                             | 
                                                126万円
                                             | 即 | 
 
                - 物件番号
- 413-00026
- 所在地
- 東京都千代田区神田富山町17-3
- 物件番号
- 413-00026
- 竣工年
- 1988年11月
- 所在地
- 東京都千代田区神田富山町17-3
- 竣工年
- 1988年11月
- 規模
- 地上9階
| 階数 | 面積 | 賃料+共益費 | 保証金 | 入居時期 | 検討 | 図面 | 詳細 | 
|---|---|---|---|---|---|---|---|
| 3 | 16.20坪 | 
                                                285,120円17,600円/坪
                                             | 
                                                103万円
                                             | 即 | |||
| 5 | 16.20坪 | 
                                                285,120円17,600円/坪
                                             | 
                                                103万円
                                             | 即 | 
空室フロアリスト
| 階数 | 面積 | 賃料+共益費 | 保証金 | 入居時期 | 検討 | 図面 | 詳細 | 
|---|---|---|---|---|---|---|---|
| 3 | 16.20坪 | 
                                                285,120円17,600円/坪
                                             | 
                                                103万円
                                             | 即 | |||
| 5 | 16.20坪 | 
                                                285,120円17,600円/坪
                                             | 
                                                103万円
                                             | 即 | 
 
                - 物件番号
- 383-00126
- 所在地
- 東京都千代田区岩本町3-9-4
- 物件番号
- 383-00126
- 竣工年
- 1990年5月
- 所在地
- 東京都千代田区岩本町3-9-4
- 竣工年
- 1990年5月
- 規模
- 地上7階
| 階数 | 面積 | 賃料+共益費 | 保証金 | 入居時期 | 検討 | 図面 | 詳細 | 
|---|---|---|---|---|---|---|---|
| 2 | 25.43坪 | 
                                                応相談応相談
                                             | 
                                                応相談
                                             | 2026年4月上旬 | 
空室フロアリスト
| 階数 | 面積 | 賃料+共益費 | 保証金 | 入居時期 | 検討 | 図面 | 詳細 | 
|---|---|---|---|---|---|---|---|
| 2 | 25.43坪 | 
                                                応相談応相談
                                             | 
                                                応相談
                                             | 2026年4月上旬 | 
 
                - 物件番号
- 423-00257
- 所在地
- 東京都千代田区内神田1-4-13
- 物件番号
- 423-00257
- 竣工年
- 1986年1月
- 所在地
- 東京都千代田区内神田1-4-13
- 竣工年
- 1986年1月
- 規模
- 地上7階
| 階数 | 面積 | 賃料+共益費 | 保証金 | 入居時期 | 検討 | 図面 | 詳細 | 
|---|---|---|---|---|---|---|---|
| 2 | 36.91坪 | 
                                                1,210,000円32,783円/坪
                                             | 
                                                応相談
                                             | 2026年2月 | |||
| 7 | 21.78坪 | 
                                                737,000円33,839円/坪
                                             | 
                                                応相談
                                             | 2026年2月 | 
空室フロアリスト
| 階数 | 面積 | 賃料+共益費 | 保証金 | 入居時期 | 検討 | 図面 | 詳細 | 
|---|---|---|---|---|---|---|---|
| 2 | 36.91坪 | 
                                                1,210,000円32,783円/坪
                                             | 
                                                応相談
                                             | 2026年2月 | |||
| 7 | 21.78坪 | 
                                                737,000円33,839円/坪
                                             | 
                                                応相談
                                             | 2026年2月 | 
 
                - 物件番号
- 393-00003
- 所在地
- 東京都千代田区神田岩本町1
- 物件番号
- 393-00003
- 竣工年
- 1989年9月
- 所在地
- 東京都千代田区神田岩本町1
- 竣工年
- 1989年9月
- 規模
- 地上9階/地下1階
| 階数 | 面積 | 賃料+共益費 | 保証金 | 入居時期 | 検討 | 図面 | 詳細 | 
|---|---|---|---|---|---|---|---|
| 2 | 28.61坪 | 
                                                1,100,000円38,448円/坪
                                             | 
                                                応相談
                                             | 2026年1月上旬 | |||
| 3 | 28.61坪 | 
                                                1,100,005円38,448円/坪
                                             | 
                                                応相談
                                             | 2026年1月上旬 | |||
| 4 | 28.61坪 | 
                                                1,100,005円38,448円/坪
                                             | 
                                                応相談
                                             | 2026年2月上旬 | |||
| 5 | 28.61坪 | 
                                                1,100,005円38,448円/坪
                                             | 
                                                応相談
                                             | 2026年2月上旬 | |||
| 6 | 28.61坪 | 
                                                1,100,005円38,448円/坪
                                             | 
                                                応相談
                                             | 2025年12月上旬 | 
空室フロアリスト
| 階数 | 面積 | 賃料+共益費 | 保証金 | 入居時期 | 検討 | 図面 | 詳細 | 
|---|---|---|---|---|---|---|---|
| 2 | 28.61坪 | 
                                                1,100,000円38,448円/坪
                                             | 
                                                応相談
                                             | 2026年1月上旬 | |||
| 3 | 28.61坪 | 
                                                1,100,005円38,448円/坪
                                             | 
                                                応相談
                                             | 2026年1月上旬 | |||
| 4 | 28.61坪 | 
                                                1,100,005円38,448円/坪
                                             | 
                                                応相談
                                             | 2026年2月上旬 | |||
| 5 | 28.61坪 | 
                                                1,100,005円38,448円/坪
                                             | 
                                                応相談
                                             | 2026年2月上旬 | |||
| 6 | 28.61坪 | 
                                                1,100,005円38,448円/坪
                                             | 
                                                応相談
                                             | 2025年12月上旬 | 
 
                - 物件番号
- 403-00012
- 所在地
- 東京都千代田区神田須田町1-3
- 物件番号
- 403-00012
- 竣工年
- 1980年9月
- 所在地
- 東京都千代田区神田須田町1-3
- 竣工年
- 1980年9月
- 規模
- 地上9階
| 階数 | 面積 | 賃料+共益費 | 保証金 | 入居時期 | 検討 | 図面 | 詳細 | 
|---|---|---|---|---|---|---|---|
| 3 | 20.96坪 | 
                                                322,784円15,400円/坪
                                             | 
                                                234万円
                                             | 即 | |||
| 4 | 20.96坪 | 
                                                322,784円15,400円/坪
                                             | 
                                                234万円
                                             | 即 | |||
| 5 | 20.96坪 | 
                                                322,784円15,400円/坪
                                             | 
                                                234万円
                                             | 即 | |||
| 6 | 20.96坪 | 
                                                322,784円15,400円/坪
                                             | 
                                                234万円
                                             | 即 | |||
| 7 | 20.96坪 | 
                                                322,784円15,400円/坪
                                             | 
                                                234万円
                                             | 即 | |||
| 8 | 20.96坪 | 
                                                322,784円15,400円/坪
                                             | 
                                                234万円
                                             | 即 | 
空室フロアリスト
| 階数 | 面積 | 賃料+共益費 | 保証金 | 入居時期 | 検討 | 図面 | 詳細 | 
|---|---|---|---|---|---|---|---|
| 3 | 20.96坪 | 
                                                322,784円15,400円/坪
                                             | 
                                                234万円
                                             | 即 | |||
| 4 | 20.96坪 | 
                                                322,784円15,400円/坪
                                             | 
                                                234万円
                                             | 即 | |||
| 5 | 20.96坪 | 
                                                322,784円15,400円/坪
                                             | 
                                                234万円
                                             | 即 | |||
| 6 | 20.96坪 | 
                                                322,784円15,400円/坪
                                             | 
                                                234万円
                                             | 即 | |||
| 7 | 20.96坪 | 
                                                322,784円15,400円/坪
                                             | 
                                                234万円
                                             | 即 | |||
| 8 | 20.96坪 | 
                                                322,784円15,400円/坪
                                             | 
                                                234万円
                                             | 即 | 
 
                - 物件番号
- 423-00084
- 所在地
- 東京都千代田区内神田2-15-15
- 物件番号
- 423-00084
- 竣工年
- 1962年7月
- 所在地
- 東京都千代田区内神田2-15-15
- 竣工年
- 1962年7月
- 規模
- 地上6階
| 階数 | 面積 | 賃料+共益費 | 保証金 | 入居時期 | 検討 | 図面 | 詳細 | 
|---|---|---|---|---|---|---|---|
| 1 | 23.70坪 | 
                                                599,610円25,300円/坪
                                             | 
                                                398万円
                                             | 即 | |||
| 2 | 27.46坪 | 
                                                453,090円16,500円/坪
                                             | 
                                                214万円
                                             | 2026年1月上旬 | |||
| 3 | 27.46坪 | 
                                                453,090円16,500円/坪
                                             | 
                                                214万円
                                             | 2026年1月上旬 | |||
| 4 | 27.46坪 | 
                                                453,090円16,500円/坪
                                             | 
                                                214万円
                                             | 2026年1月上旬 | 
空室フロアリスト
| 階数 | 面積 | 賃料+共益費 | 保証金 | 入居時期 | 検討 | 図面 | 詳細 | 
|---|---|---|---|---|---|---|---|
| 1 | 23.70坪 | 
                                                599,610円25,300円/坪
                                             | 
                                                398万円
                                             | 即 | |||
| 2 | 27.46坪 | 
                                                453,090円16,500円/坪
                                             | 
                                                214万円
                                             | 2026年1月上旬 | |||
| 3 | 27.46坪 | 
                                                453,090円16,500円/坪
                                             | 
                                                214万円
                                             | 2026年1月上旬 | |||
| 4 | 27.46坪 | 
                                                453,090円16,500円/坪
                                             | 
                                                214万円
                                             | 2026年1月上旬 | 
 
                - 物件番号
- 401-00021
- 所在地
- 東京都千代田区神田松永町4-1
- 物件番号
- 401-00021
- 竣工年
- 2004年2月
- 所在地
- 東京都千代田区神田松永町4-1
- 竣工年
- 2004年2月
- 規模
- 地上11階/地下1階
| 階数 | 面積 | 賃料+共益費 | 保証金 | 入居時期 | 検討 | 図面 | 詳細 | 
|---|---|---|---|---|---|---|---|
| 9 | 76.65坪 | 
                                                応相談応相談
                                             | 
                                                応相談
                                             | 2026年3月下旬 | |||
| 10 | 76.65坪 | 
                                                応相談応相談
                                             | 
                                                応相談
                                             | 2026年3月下旬 | 
空室フロアリスト
| 階数 | 面積 | 賃料+共益費 | 保証金 | 入居時期 | 検討 | 図面 | 詳細 | 
|---|---|---|---|---|---|---|---|
| 9 | 76.65坪 | 
                                                応相談応相談
                                             | 
                                                応相談
                                             | 2026年3月下旬 | |||
| 10 | 76.65坪 | 
                                                応相談応相談
                                             | 
                                                応相談
                                             | 2026年3月下旬 | 
 
                - 物件番号
- 383-00084
- 所在地
- 東京都千代田区岩本町3-5-2
- 物件番号
- 383-00084
- 竣工年
- 1985年5月
- 所在地
- 東京都千代田区岩本町3-5-2
- 竣工年
- 1985年5月
- 規模
- 地上9階
| 階数 | 面積 | 賃料+共益費 | 保証金 | 入居時期 | 検討 | 図面 | 詳細 | 
|---|---|---|---|---|---|---|---|
| 1 | 25.45坪 | 
                                                643,885円25,300円/坪
                                             | 
                                                351万円
                                             | 2026年2月 | |||
| 3 | 19.46坪 | 
                                                492,338円25,300円/坪
                                             | 
                                                268万円
                                             | 2026年2月 | 
空室フロアリスト
| 階数 | 面積 | 賃料+共益費 | 保証金 | 入居時期 | 検討 | 図面 | 詳細 | 
|---|---|---|---|---|---|---|---|
| 1 | 25.45坪 | 
                                                643,885円25,300円/坪
                                             | 
                                                351万円
                                             | 2026年2月 | |||
| 3 | 19.46坪 | 
                                                492,338円25,300円/坪
                                             | 
                                                268万円
                                             | 2026年2月 | 
 
                - 物件番号
- 423-00384
- 所在地
- 東京都千代田区内神田2-13-6
- 物件番号
- 423-00384
- 竣工年
- 1978年1月
- 所在地
- 東京都千代田区内神田2-13-6
- 竣工年
- 1978年1月
- 規模
- 地上6階
| 階数 | 面積 | 賃料+共益費 | 保証金 | 入居時期 | 検討 | 図面 | 詳細 | 
|---|---|---|---|---|---|---|---|
| 5-6F | 19.36坪 | 
                                                289,328円14,944円/坪
                                             | 
                                                75万円
                                             | 相談 | 
空室フロアリスト
| 階数 | 面積 | 賃料+共益費 | 保証金 | 入居時期 | 検討 | 図面 | 詳細 | 
|---|---|---|---|---|---|---|---|
| 5-6F | 19.36坪 | 
                                                289,328円14,944円/坪
                                             | 
                                                75万円
                                             | 相談 | 
![図面[415-1-133]](https://www.threewave.co.jp/image?name=415-00001-Z002.jpg) 
                                                
                                                                                    ![図面[423-252-40]](https://www.threewave.co.jp/image?name=423-00252-Z003.jpg) 
                                                
                                                                                    ![図面[423-252-50]](https://www.threewave.co.jp/image?name=423-00252-Z002.jpg) 
                                                
                                                                                    ![図面[423-269-40]](https://www.threewave.co.jp/image?name=423-00269-Z003.jpg) 
                                                
                                                                                    ![図面[403-232-50]](https://www.threewave.co.jp/image?name=403-00232-Z013.jpg) 
                                                
                                                                                    ![図面[403-232-70]](https://www.threewave.co.jp/image?name=403-00232-Z008.jpg) 
                                                
                                                                                    ![図面[423-23-20]](https://www.threewave.co.jp/image?name=423-00023-Z002.jpg) 
                                                
                                                                                    ![図面[423-23-40]](https://www.threewave.co.jp/image?name=423-00023-Z004.jpg) 
                                                
                                                                                    ![図面[408-48-110]](https://www.threewave.co.jp/image?name=408-00048-Z008.jpg) 
                                                
                                                                                    ![図面[423-10-20]](https://www.threewave.co.jp/image?name=423-00010-Z003.jpg) 
                                                
                                                                                    ![図面[383-30-63]](https://www.threewave.co.jp/image?name=383-00030-Z011.jpg) 
                                                
                                                                                    ![図面[383-30-40]](https://www.threewave.co.jp/image?name=383-00030-Z008.jpg) 
                                                
                                                                                    ![図面[383-30-50]](https://www.threewave.co.jp/image?name=383-00030-Z007.jpg) 
                                                
                                                                                    ![図面[383-30-61]](https://www.threewave.co.jp/image?name=383-00030-Z010.jpg) 
                                                
                                                                                    ![図面[383-30-60]](https://www.threewave.co.jp/image?name=383-00030-Z009.jpg) 
                                                
                                                                                    ![図面[423-476-18]](https://www.threewave.co.jp/image?name=423-00476-Z017.jpg) 
                                                
                                                                                    ![図面[423-476-19]](https://www.threewave.co.jp/image?name=423-00476-Z024.jpg) 
                                                
                                                                                    ![図面[423-476-20]](https://www.threewave.co.jp/image?name=423-00476-Z023.jpg) 
                                                
                                                                                    ![図面[423-476-21]](https://www.threewave.co.jp/image?name=423-00476-Z022.jpg) 
                                                
                                                                                    ![図面[423-476-22]](https://www.threewave.co.jp/image?name=423-00476-Z021.jpg) 
                                                
                                                                                    ![図面[383-5-20]](https://www.threewave.co.jp/image?name=383-00005-Z012.jpg) 
                                                
                                                                                    ![図面[408-17-73]](https://www.threewave.co.jp/image?name=408-00017-Z015.jpg) 
                                                
                                                                                    ![図面[408-17-40]](https://www.threewave.co.jp/image?name=408-00017-Z010.jpg) 
                                                
                                                                                    ![図面[423-234-30]](https://www.threewave.co.jp/image?name=423-00234-Z003.jpg) 
                                                
                                                                                    ![図面[423-234-40]](https://www.threewave.co.jp/image?name=423-00234-Z002.jpg) 
                                                
                                                                                    ![図面[423-234-60]](https://www.threewave.co.jp/image?name=423-00234-Z005.jpg) 
                                                
                                                                                    ![図面[403-14-20]](https://www.threewave.co.jp/image?name=403-00014-Z008.jpg) 
                                                
                                                                                    ![図面[381-21-100]](https://www.threewave.co.jp/image?name=381-00021-Z005.jpg) 
                                                
                                                                                    ![図面[400-202-3]](https://www.threewave.co.jp/image?name=400-00202-Z009.jpg) 
                                                
                                                                                    ![図面[400-202-4]](https://www.threewave.co.jp/image?name=400-00202-Z008.jpg) 
                                                
                                                                                    ![図面[400-202-7]](https://www.threewave.co.jp/image?name=400-00202-Z005.jpg) 
                                                
                                                                                    ![図面[400-202-8]](https://www.threewave.co.jp/image?name=400-00202-Z004.jpg) 
                                                
                                                                                    ![図面[400-202-10]](https://www.threewave.co.jp/image?name=400-00202-Z002.jpg) 
                                                
                                                                                    ![図面[400-202-11]](https://www.threewave.co.jp/image?name=400-00202-Z001.jpg) 
                                                
                                                                                    ![図面[413-36-6]](https://www.threewave.co.jp/image?name=413-00036-Z007.jpg) 
                                                
                                                                                    ![図面[661-252-1]](https://www.threewave.co.jp/image?name=661-00252-Z007.jpg) 
                                                
                                                                                    ![図面[661-252-5]](https://www.threewave.co.jp/image?name=661-00252-Z001.jpg) 
                                                
                                                                                    ![図面[661-252-6]](https://www.threewave.co.jp/image?name=661-00252-Z013.jpg) 
                                                
                                                                                    ![図面[661-252-7]](https://www.threewave.co.jp/image?name=661-00252-Z016.jpg) 
                                                
                                                                                    ![図面[661-252-9]](https://www.threewave.co.jp/image?name=661-00252-Z014.jpg) 
                                                
                                                                                    ![図面[661-252-10]](https://www.threewave.co.jp/image?name=661-00252-Z015.jpg) 
                                                
                                                                                    ![図面[661-252-11]](https://www.threewave.co.jp/image?name=661-00252-Z002.jpg) 
                                                
                                                                                    ![図面[405-1-170]](https://www.threewave.co.jp/image?name=405-00001-Z006.jpg) 
                                                
                                                                                    ![図面[411-2-60]](https://www.threewave.co.jp/image?name=411-00002-Z007.jpg) 
                                                
                                                                                    ![図面[398-93-1]](https://www.threewave.co.jp/image?name=398-00093-Z001.jpg) 
                                                
                                                                                    ![図面[413-26-72]](https://www.threewave.co.jp/image?name=413-00026-Z001.jpg) 
                                                
                                                                                    ![図面[413-26-30]](https://www.threewave.co.jp/image?name=413-00026-Z002.jpg) 
                                                
                                                                                    ![図面[423-257-22]](https://www.threewave.co.jp/image?name=423-00257-Z004.jpg) 
                                                
                                                                                    ![図面[423-257-23]](https://www.threewave.co.jp/image?name=423-00257-Z003.jpg) 
                                                
                                                                                    ![図面[393-3-20]](https://www.threewave.co.jp/image?name=393-00003-Z014.jpg) 
                                                
                                                                                    ![図面[393-3-30]](https://www.threewave.co.jp/image?name=393-00003-Z013.jpg) 
                                                
                                                                                    ![図面[393-3-40]](https://www.threewave.co.jp/image?name=393-00003-Z012.jpg) 
                                                
                                                                                    ![図面[393-3-50]](https://www.threewave.co.jp/image?name=393-00003-Z011.jpg) 
                                                
                                                                                    ![図面[393-3-60]](https://www.threewave.co.jp/image?name=393-00003-Z010.jpg) 
                                                
                                                                                    ![図面[403-12-20]](https://www.threewave.co.jp/image?name=403-00012-Z002.jpg) 
                                                
                                                                                    ![図面[403-12-30]](https://www.threewave.co.jp/image?name=403-00012-Z003.jpg) 
                                                
                                                                                    ![図面[403-12-40]](https://www.threewave.co.jp/image?name=403-00012-Z004.jpg) 
                                                
                                                                                    ![図面[403-12-50]](https://www.threewave.co.jp/image?name=403-00012-Z005.jpg) 
                                                
                                                                                    ![図面[403-12-60]](https://www.threewave.co.jp/image?name=403-00012-Z01A.jpg) 
                                                
                                                                                    ![図面[403-12-70]](https://www.threewave.co.jp/image?name=403-00012-Z006.jpg) 
                                                
                                                                                    ![図面[423-84-30]](https://www.threewave.co.jp/image?name=423-00084-Z004.jpg) 
                                                
                                                                                    ![図面[423-84-50]](https://www.threewave.co.jp/image?name=423-00084-Z003.jpg) 
                                                
                                                                                    ![図面[423-84-70]](https://www.threewave.co.jp/image?name=423-00084-Z002.jpg) 
                                                
                                                                                    ![図面[401-21-80]](https://www.threewave.co.jp/image?name=401-00021-Z003.jpg) 
                                                
                                                                                    ![図面[401-21-90]](https://www.threewave.co.jp/image?name=401-00021-Z002.jpg) 
                                                
                                                                                    ![図面[383-84-135]](https://www.threewave.co.jp/image?name=383-00084-Z020.jpg) 
                                                
                                                                                    ![図面[383-84-20]](https://www.threewave.co.jp/image?name=383-00084-Z008.jpg) 
                                                
                                                                                    ![図面[423-384-31]](https://www.threewave.co.jp/image?name=423-00384-Z003.jpg) 
                                                
                                                                                    

