恵比寿駅の貸事務所・賃貸オフィス
恵比寿駅の基本情報
                        恵比寿の賃貸オフィスは駅周辺を中心に点在しています。カルチャーの街・渋谷に隣接していることから流行の受信が早く、それでいて成熟した大人の雰囲気を漂わせているこのエリアは、渋谷区の中でも特に人気があります。
 街の雰囲気に合うように、洗練された造りの賃貸オフィスビルが多く点在するところもこのエリアの特徴。都市景観100選を受賞した恵比寿ガーデンプレイスや、最先端のショップが次々に出店するアトレ恵比寿などが立地し、ビジネスにも心地の良い刺激を与えてくれそうです。
                        
 
                - 物件番号
- 160-00036
- 所在地
- 東京都渋谷区恵比寿西1-3-11
- 物件番号
- 160-00036
- 竣工年
- 1990年3月
- 所在地
- 東京都渋谷区恵比寿西1-3-11
- 竣工年
- 1990年3月
- 規模
- 地上7階/地下1階
| 階数 | 面積 | 賃料+共益費 | 保証金 | 入居時期 | 検討 | 図面 | 詳細 | 
|---|---|---|---|---|---|---|---|
| 2 | 27.39坪 | 
                                                723,096円26,400円/坪
                                             | 
                                                172万円
                                             | 即 | |||
| 5 | 27.39坪 | 
                                                753,225円27,500円/坪
                                             | 
                                                180万円
                                             | 即 | 
空室フロアリスト
| 階数 | 面積 | 賃料+共益費 | 保証金 | 入居時期 | 検討 | 図面 | 詳細 | 
|---|---|---|---|---|---|---|---|
| 2 | 27.39坪 | 
                                                723,096円26,400円/坪
                                             | 
                                                172万円
                                             | 即 | |||
| 5 | 27.39坪 | 
                                                753,225円27,500円/坪
                                             | 
                                                180万円
                                             | 即 | 
 
                - 物件番号
- 180-00116
- 所在地
- 東京都渋谷区東2-17-9
- 物件番号
- 180-00116
- 竣工年
- 1985年12月
- 所在地
- 東京都渋谷区東2-17-9
- 竣工年
- 1985年12月
- 規模
- 地上8階
| 階数 | 面積 | 賃料+共益費 | 保証金 | 入居時期 | 検討 | 図面 | 詳細 | 
|---|---|---|---|---|---|---|---|
| 3 | 28.00坪 | 
                                                985,600円35,200円/坪
                                             | 
                                                268万円
                                             | 即 | |||
| 4 | 28.00坪 | 
                                                1,004,788円35,885円/坪
                                             | 
                                                274万円
                                             | 即 | |||
| 5 | 27.78坪 | 
                                                1,113,948円40,099円/坪
                                             | 
                                                303万円
                                             | 2026年1月中旬 | 
空室フロアリスト
| 階数 | 面積 | 賃料+共益費 | 保証金 | 入居時期 | 検討 | 図面 | 詳細 | 
|---|---|---|---|---|---|---|---|
| 3 | 28.00坪 | 
                                                985,600円35,200円/坪
                                             | 
                                                268万円
                                             | 即 | |||
| 4 | 28.00坪 | 
                                                1,004,788円35,885円/坪
                                             | 
                                                274万円
                                             | 即 | |||
| 5 | 27.78坪 | 
                                                1,113,948円40,099円/坪
                                             | 
                                                303万円
                                             | 2026年1月中旬 | 
 
                - 物件番号
- 157-00054
- 所在地
- 東京都渋谷区猿楽町4-3
- 物件番号
- 157-00054
- 竣工年
- 2000年3月
- 所在地
- 東京都渋谷区猿楽町4-3
- 竣工年
- 2000年3月
- 規模
- 地上5階
| 階数 | 面積 | 賃料+共益費 | 保証金 | 入居時期 | 検討 | 図面 | 詳細 | 
|---|---|---|---|---|---|---|---|
| 5 | 23.74坪 | 
                                                608,014円25,611円/坪
                                             | 
                                                152万円
                                             | 2025年12月下旬 | 
空室フロアリスト
| 階数 | 面積 | 賃料+共益費 | 保証金 | 入居時期 | 検討 | 図面 | 詳細 | 
|---|---|---|---|---|---|---|---|
| 5 | 23.74坪 | 
                                                608,014円25,611円/坪
                                             | 
                                                152万円
                                             | 2025年12月下旬 | 
 
                - 物件番号
- 160-00035
- 所在地
- 東京都渋谷区恵比寿西1-10-8
- 物件番号
- 160-00035
- 竣工年
- 1988年12月
- 所在地
- 東京都渋谷区恵比寿西1-10-8
- 竣工年
- 1988年12月
- 規模
- 地上9階
| 階数 | 面積 | 賃料+共益費 | 保証金 | 入居時期 | 検討 | 図面 | 詳細 | 
|---|---|---|---|---|---|---|---|
| 2 | 28.10坪 | 
                                                550,000円19,573円/坪
                                             | 
                                                400万円
                                             | 即 | |||
| 3 | 30.28坪 | 
                                                594,015円19,617円/坪
                                             | 
                                                432万円
                                             | 即 | 
空室フロアリスト
| 階数 | 面積 | 賃料+共益費 | 保証金 | 入居時期 | 検討 | 図面 | 詳細 | 
|---|---|---|---|---|---|---|---|
| 2 | 28.10坪 | 
                                                550,000円19,573円/坪
                                             | 
                                                400万円
                                             | 即 | |||
| 3 | 30.28坪 | 
                                                594,015円19,617円/坪
                                             | 
                                                432万円
                                             | 即 | 
 
                - 物件番号
- 180-00065
- 所在地
- 東京都渋谷区東3-16-1
- 物件番号
- 180-00065
- 竣工年
- 1980年2月
- 所在地
- 東京都渋谷区東3-16-1
- 竣工年
- 1980年2月
- 規模
- 地上8階
| 階数 | 面積 | 賃料+共益費 | 保証金 | 入居時期 | 検討 | 図面 | 詳細 | 
|---|---|---|---|---|---|---|---|
| 4 | 25.70坪 | 
                                                466,455円18,150円/坪
                                             | 
                                                339万円
                                             | 2026年4月上旬 | 
空室フロアリスト
| 階数 | 面積 | 賃料+共益費 | 保証金 | 入居時期 | 検討 | 図面 | 詳細 | 
|---|---|---|---|---|---|---|---|
| 4 | 25.70坪 | 
                                                466,455円18,150円/坪
                                             | 
                                                339万円
                                             | 2026年4月上旬 | 
 
                - 物件番号
- 160-00121
- 所在地
- 東京都渋谷区恵比寿西1-24-1
- 物件番号
- 160-00121
- 竣工年
- 2001年6月
- 所在地
- 東京都渋谷区恵比寿西1-24-1
- 竣工年
- 2001年6月
- 規模
- 地上4階
| 階数 | 面積 | 賃料+共益費 | 保証金 | 入居時期 | 検討 | 図面 | 詳細 | 
|---|---|---|---|---|---|---|---|
| 2-4F | 64.13坪 | 
                                                1,815,000円28,301円/坪
                                             | 
                                                990万円
                                             | 即 | 
空室フロアリスト
| 階数 | 面積 | 賃料+共益費 | 保証金 | 入居時期 | 検討 | 図面 | 詳細 | 
|---|---|---|---|---|---|---|---|
| 2-4F | 64.13坪 | 
                                                1,815,000円28,301円/坪
                                             | 
                                                990万円
                                             | 即 | 
 
                - 物件番号
- 180-00077
- 所在地
- 東京都渋谷区東2-24-3
- 物件番号
- 180-00077
- 竣工年
- 1990年7月
- 所在地
- 東京都渋谷区東2-24-3
- 竣工年
- 1990年7月
- 規模
- 地上7階
| 階数 | 面積 | 賃料+共益費 | 保証金 | 入居時期 | 検討 | 図面 | 詳細 | 
|---|---|---|---|---|---|---|---|
| 4 | 26.85坪 | 
                                                473,000円17,617円/坪
                                             | 
                                                280万円
                                             | 即 | |||
| 6 | 26.85坪 | 
                                                473,000円17,617円/坪
                                             | 
                                                280万円
                                             | 即 | 
空室フロアリスト
| 階数 | 面積 | 賃料+共益費 | 保証金 | 入居時期 | 検討 | 図面 | 詳細 | 
|---|---|---|---|---|---|---|---|
| 4 | 26.85坪 | 
                                                473,000円17,617円/坪
                                             | 
                                                280万円
                                             | 即 | |||
| 6 | 26.85坪 | 
                                                473,000円17,617円/坪
                                             | 
                                                280万円
                                             | 即 | 
 
                - 物件番号
- 176-00004
- 所在地
- 東京都渋谷区代官山町14-23
- 物件番号
- 176-00004
- 竣工年
- 1991年8月
- 所在地
- 東京都渋谷区代官山町14-23
- 竣工年
- 1991年8月
- 規模
- 地上7階/地下1階
| 階数 | 面積 | 賃料+共益費 | 保証金 | 入居時期 | 検討 | 図面 | 詳細 | 
|---|---|---|---|---|---|---|---|
| 7 | 45.06坪 | 
                                                応相談応相談
                                             | 
                                                応相談
                                             | 2025年11月下旬 | 
空室フロアリスト
| 階数 | 面積 | 賃料+共益費 | 保証金 | 入居時期 | 検討 | 図面 | 詳細 | 
|---|---|---|---|---|---|---|---|
| 7 | 45.06坪 | 
                                                応相談応相談
                                             | 
                                                応相談
                                             | 2025年11月下旬 | 
 
                - 物件番号
- 875-00157
- 所在地
- 東京都目黒区上目黒2-16
- 物件番号
- 875-00157
- 竣工年
- 2026年3月
- 所在地
- 東京都目黒区上目黒2-16
- 竣工年
- 2026年3月
- 規模
- 地上7階
| 階数 | 面積 | 賃料+共益費 | 保証金 | 入居時期 | 検討 | 図面 | 詳細 | 
|---|---|---|---|---|---|---|---|
| 2 | 15.98坪 | 
                                                550,000円34,419円/坪
                                             | 
                                                147万円
                                             | 2026年3月中旬 | |||
| 3 | 15.98坪 | 
                                                550,000円34,419円/坪
                                             | 
                                                147万円
                                             | 2026年3月中旬 | |||
| 4 | 15.98坪 | 
                                                517,000円32,353円/坪
                                             | 
                                                138万円
                                             | 2026年3月中旬 | 
空室フロアリスト
| 階数 | 面積 | 賃料+共益費 | 保証金 | 入居時期 | 検討 | 図面 | 詳細 | 
|---|---|---|---|---|---|---|---|
| 2 | 15.98坪 | 
                                                550,000円34,419円/坪
                                             | 
                                                147万円
                                             | 2026年3月中旬 | |||
| 3 | 15.98坪 | 
                                                550,000円34,419円/坪
                                             | 
                                                147万円
                                             | 2026年3月中旬 | |||
| 4 | 15.98坪 | 
                                                517,000円32,353円/坪
                                             | 
                                                138万円
                                             | 2026年3月中旬 | 
 
                - 物件番号
- 876-00134
- 所在地
- 東京都目黒区青葉台1-6-59
- 物件番号
- 876-00134
- 竣工年
- 1992年10月
- 所在地
- 東京都目黒区青葉台1-6-59
- 竣工年
- 1992年10月
- 規模
- 地上3階
| 階数 | 面積 | 賃料+共益費 | 保証金 | 入居時期 | 検討 | 図面 | 詳細 | 
|---|---|---|---|---|---|---|---|
| 1-3F | 50.52坪 | 
                                                990,000円19,596円/坪
                                             | 
                                                180万円
                                             | 2025年12月上旬 | 
空室フロアリスト
| 階数 | 面積 | 賃料+共益費 | 保証金 | 入居時期 | 検討 | 図面 | 詳細 | 
|---|---|---|---|---|---|---|---|
| 1-3F | 50.52坪 | 
                                                990,000円19,596円/坪
                                             | 
                                                180万円
                                             | 2025年12月上旬 | 
 
                - 物件番号
- 163-00045
- 所在地
- 東京都渋谷区広尾5-21-2
- 物件番号
- 163-00045
- 竣工年
- 1987年3月
- 所在地
- 東京都渋谷区広尾5-21-2
- 竣工年
- 1987年3月
- 規模
- 地上9階/地下2階
| 階数 | 面積 | 賃料+共益費 | 保証金 | 入居時期 | 検討 | 図面 | 詳細 | 
|---|---|---|---|---|---|---|---|
| 3 | 29.90坪 | 
                                                440,000円14,715円/坪
                                             | 
                                                400万円
                                             | 即 | 
空室フロアリスト
| 階数 | 面積 | 賃料+共益費 | 保証金 | 入居時期 | 検討 | 図面 | 詳細 | 
|---|---|---|---|---|---|---|---|
| 3 | 29.90坪 | 
                                                440,000円14,715円/坪
                                             | 
                                                400万円
                                             | 即 | 
 
                - 物件番号
- 166-00067
- 所在地
- 東京都渋谷区渋谷3-27-11
- 物件番号
- 166-00067
- 竣工年
- 1987年9月
- 所在地
- 東京都渋谷区渋谷3-27-11
- 竣工年
- 1987年9月
- 規模
- 地上12階/地下1階
| 階数 | 面積 | 賃料+共益費 | 保証金 | 入居時期 | 検討 | 図面 | 詳細 | 
|---|---|---|---|---|---|---|---|
| 7 | 60.73坪 | 
                                                2,271,302円37,400円/坪
                                             | 
                                                2186万円
                                             | 2026年4月上旬 | |||
| 8 | 136.40坪 | 
                                                5,101,360円37,400円/坪
                                             | 
                                                4910万円
                                             | 2026年4月上旬 | |||
| 9 | 136.40坪 | 
                                                5,101,360円37,400円/坪
                                             | 
                                                4910万円
                                             | 即 | 
空室フロアリスト
| 階数 | 面積 | 賃料+共益費 | 保証金 | 入居時期 | 検討 | 図面 | 詳細 | 
|---|---|---|---|---|---|---|---|
| 7 | 60.73坪 | 
                                                2,271,302円37,400円/坪
                                             | 
                                                2186万円
                                             | 2026年4月上旬 | |||
| 8 | 136.40坪 | 
                                                5,101,360円37,400円/坪
                                             | 
                                                4910万円
                                             | 2026年4月上旬 | |||
| 9 | 136.40坪 | 
                                                5,101,360円37,400円/坪
                                             | 
                                                4910万円
                                             | 即 | 
 
                - 物件番号
- 180-00068
- 所在地
- 東京都渋谷区東1-32-12
- 物件番号
- 180-00068
- 竣工年
- 1990年5月
- 所在地
- 東京都渋谷区東1-32-12
- 竣工年
- 1990年5月
- 規模
- 地上15階/地下2階
| 階数 | 面積 | 賃料+共益費 | 保証金 | 入居時期 | 検討 | 図面 | 詳細 | 
|---|---|---|---|---|---|---|---|
| 1 | 68.59坪 | 
                                                応相談応相談
                                             | 
                                                応相談
                                             | 2026年3月上旬 | 
空室フロアリスト
| 階数 | 面積 | 賃料+共益費 | 保証金 | 入居時期 | 検討 | 図面 | 詳細 | 
|---|---|---|---|---|---|---|---|
| 1 | 68.59坪 | 
                                                応相談応相談
                                             | 
                                                応相談
                                             | 2026年3月上旬 | 
 
                - 物件番号
- 163-00133
- 所在地
- 東京都渋谷区広尾5-19-11
- 物件番号
- 163-00133
- 竣工年
- 1993年3月
- 所在地
- 東京都渋谷区広尾5-19-11
- 竣工年
- 1993年3月
- 規模
- 地上9階/地下1階
| 階数 | 面積 | 賃料+共益費 | 保証金 | 入居時期 | 検討 | 図面 | 詳細 | 
|---|---|---|---|---|---|---|---|
| 5 | 27.44坪 | 
                                                452,760円16,500円/坪
                                             | 
                                                329万円
                                             | 即 | |||
| 6 | 27.44坪 | 
                                                452,760円16,500円/坪
                                             | 
                                                329万円
                                             | 即 | 
空室フロアリスト
| 階数 | 面積 | 賃料+共益費 | 保証金 | 入居時期 | 検討 | 図面 | 詳細 | 
|---|---|---|---|---|---|---|---|
| 5 | 27.44坪 | 
                                                452,760円16,500円/坪
                                             | 
                                                329万円
                                             | 即 | |||
| 6 | 27.44坪 | 
                                                452,760円16,500円/坪
                                             | 
                                                329万円
                                             | 即 | 
 
                - 物件番号
- 161-00014
- 所在地
- 東京都渋谷区恵比寿南1-2-11
- 物件番号
- 161-00014
- 竣工年
- 1999年7月
- 所在地
- 東京都渋谷区恵比寿南1-2-11
- 竣工年
- 1999年7月
- 規模
- 地上9階
| 階数 | 面積 | 賃料+共益費 | 保証金 | 入居時期 | 検討 | 図面 | 詳細 | 
|---|---|---|---|---|---|---|---|
| 2 | 19.64坪 | 
                                                725,894円36,960円/坪
                                             | 
                                                589万円
                                             | 2026年2月上旬 | 
空室フロアリスト
| 階数 | 面積 | 賃料+共益費 | 保証金 | 入居時期 | 検討 | 図面 | 詳細 | 
|---|---|---|---|---|---|---|---|
| 2 | 19.64坪 | 
                                                725,894円36,960円/坪
                                             | 
                                                589万円
                                             | 2026年2月上旬 | 
 
                - 物件番号
- 161-00206
- 所在地
- 東京都渋谷区恵比寿南1-16-3
- 物件番号
- 161-00206
- 竣工年
- 1993年1月
- 所在地
- 東京都渋谷区恵比寿南1-16-3
- 竣工年
- 1993年1月
- 規模
- 地上4階/地下2階
| 階数 | 面積 | 賃料+共益費 | 保証金 | 入居時期 | 検討 | 図面 | 詳細 | 
|---|---|---|---|---|---|---|---|
| 地下2 | 19.62坪 | 
                                                495,000円25,229円/坪
                                             | 
                                                297万円
                                             | 相談 | |||
| 地下1 | 19.62坪 | 
                                                589,501円30,046円/坪
                                             | 
                                                471万円
                                             | 相談 | 
空室フロアリスト
| 階数 | 面積 | 賃料+共益費 | 保証金 | 入居時期 | 検討 | 図面 | 詳細 | 
|---|---|---|---|---|---|---|---|
| 地下2 | 19.62坪 | 
                                                495,000円25,229円/坪
                                             | 
                                                297万円
                                             | 相談 | |||
| 地下1 | 19.62坪 | 
                                                589,501円30,046円/坪
                                             | 
                                                471万円
                                             | 相談 | 
 
                - 物件番号
- 873-00002
- 所在地
- 東京都目黒区三田1-11-1
- 物件番号
- 873-00002
- 竣工年
- 1991年
- 所在地
- 東京都目黒区三田1-11-1
- 竣工年
- 1991年
- 規模
- 地上6階/地下1階
| 階数 | 面積 | 賃料+共益費 | 保証金 | 入居時期 | 検討 | 図面 | 詳細 | 
|---|---|---|---|---|---|---|---|
| 3 | 76.85坪 | 
                                                2,071,106円26,950円/坪
                                             | 
                                                1291万円
                                             | 2026年3月中旬 | 
空室フロアリスト
| 階数 | 面積 | 賃料+共益費 | 保証金 | 入居時期 | 検討 | 図面 | 詳細 | 
|---|---|---|---|---|---|---|---|
| 3 | 76.85坪 | 
                                                2,071,106円26,950円/坪
                                             | 
                                                1291万円
                                             | 2026年3月中旬 | 
 
                - 物件番号
- 180-00033
- 所在地
- 東京都渋谷区東3-11-10
- 物件番号
- 180-00033
- 竣工年
- 1992年10月
- 所在地
- 東京都渋谷区東3-11-10
- 竣工年
- 1992年10月
- 規模
- 地上9階/地下2階
| 階数 | 面積 | 賃料+共益費 | 保証金 | 入居時期 | 検討 | 図面 | 詳細 | 
|---|---|---|---|---|---|---|---|
| 地下1 | 39.44坪 | 
                                                応相談応相談
                                             | 
                                                応相談
                                             | 2026年5月上旬 | |||
| 2 | 121.43坪 | 
                                                応相談応相談
                                             | 
                                                応相談
                                             | 2026年5月上旬 | |||
| 5 | 85.30坪 | 
                                                応相談応相談
                                             | 
                                                応相談
                                             | 2026年5月上旬 | |||
| 7 | 85.23坪 | 
                                                応相談応相談
                                             | 
                                                応相談
                                             | 2026年5月上旬 | |||
| 8 | 85.23坪 | 
                                                応相談応相談
                                             | 
                                                応相談
                                             | 2026年5月上旬 | |||
| 9 | 85.23坪 | 
                                                応相談応相談
                                             | 
                                                応相談
                                             | 2026年5月上旬 | 
空室フロアリスト
| 階数 | 面積 | 賃料+共益費 | 保証金 | 入居時期 | 検討 | 図面 | 詳細 | 
|---|---|---|---|---|---|---|---|
| 地下1 | 39.44坪 | 
                                                応相談応相談
                                             | 
                                                応相談
                                             | 2026年5月上旬 | |||
| 2 | 121.43坪 | 
                                                応相談応相談
                                             | 
                                                応相談
                                             | 2026年5月上旬 | |||
| 5 | 85.30坪 | 
                                                応相談応相談
                                             | 
                                                応相談
                                             | 2026年5月上旬 | |||
| 7 | 85.23坪 | 
                                                応相談応相談
                                             | 
                                                応相談
                                             | 2026年5月上旬 | |||
| 8 | 85.23坪 | 
                                                応相談応相談
                                             | 
                                                応相談
                                             | 2026年5月上旬 | |||
| 9 | 85.23坪 | 
                                                応相談応相談
                                             | 
                                                応相談
                                             | 2026年5月上旬 | 
 
                - 物件番号
- 875-00028
- 所在地
- 東京都目黒区上目黒1-16-12
- 物件番号
- 875-00028
- 竣工年
- 1972年5月
- 所在地
- 東京都目黒区上目黒1-16-12
- 竣工年
- 1972年5月
- 規模
- 地上5階
| 階数 | 面積 | 賃料+共益費 | 保証金 | 入居時期 | 検討 | 図面 | 詳細 | 
|---|---|---|---|---|---|---|---|
| 4 | 36.00坪 | 
                                                627,000円17,417円/坪
                                             | 
                                                342万円
                                             | 2025年11月上旬 | 
空室フロアリスト
| 階数 | 面積 | 賃料+共益費 | 保証金 | 入居時期 | 検討 | 図面 | 詳細 | 
|---|---|---|---|---|---|---|---|
| 4 | 36.00坪 | 
                                                627,000円17,417円/坪
                                             | 
                                                342万円
                                             | 2025年11月上旬 | 
 
                - 物件番号
- 161-00191
- 所在地
- 東京都渋谷区恵比寿南1-20-15
- 物件番号
- 161-00191
- 竣工年
- 1992年7月
- 所在地
- 東京都渋谷区恵比寿南1-20-15
- 竣工年
- 1992年7月
- 規模
- 地上5階/地下1階
| 階数 | 面積 | 賃料+共益費 | 保証金 | 入居時期 | 検討 | 図面 | 詳細 | 
|---|---|---|---|---|---|---|---|
| 1 | 22.76坪 | 
                                                926,332円40,700円/坪
                                             | 
                                                370万円
                                             | 即 | 
空室フロアリスト
| 階数 | 面積 | 賃料+共益費 | 保証金 | 入居時期 | 検討 | 図面 | 詳細 | 
|---|---|---|---|---|---|---|---|
| 1 | 22.76坪 | 
                                                926,332円40,700円/坪
                                             | 
                                                370万円
                                             | 即 | 
 
                - 物件番号
- 180-00069
- 所在地
- 東京都渋谷区東3-13-11
- 物件番号
- 180-00069
- 竣工年
- 1993年11月
- 所在地
- 東京都渋谷区東3-13-11
- 竣工年
- 1993年11月
- 規模
- 地上10階/地下2階
| 階数 | 面積 | 賃料+共益費 | 保証金 | 入居時期 | 検討 | 図面 | 詳細 | 
|---|---|---|---|---|---|---|---|
| 5 | 91.65坪 | 
                                                応相談応相談
                                             | 
                                                応相談
                                             | 2026年3月中旬 | 
空室フロアリスト
| 階数 | 面積 | 賃料+共益費 | 保証金 | 入居時期 | 検討 | 図面 | 詳細 | 
|---|---|---|---|---|---|---|---|
| 5 | 91.65坪 | 
                                                応相談応相談
                                             | 
                                                応相談
                                             | 2026年3月中旬 | 
 
                - 物件番号
- 180-00190
- 所在地
- 東京都渋谷区東2-27-10
- 物件番号
- 180-00190
- 竣工年
- 1984年9月
- 所在地
- 東京都渋谷区東2-27-10
- 竣工年
- 1984年9月
- 規模
- 地上7階
| 階数 | 面積 | 賃料+共益費 | 保証金 | 入居時期 | 検討 | 図面 | 詳細 | 
|---|---|---|---|---|---|---|---|
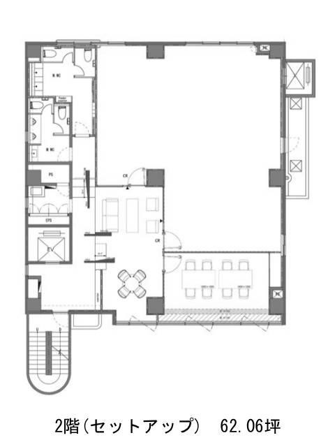
| 6 | 62.06坪 | 
                                                1,774,916円28,600円/坪
                                             | 
                                                応相談
                                             | 相談 | 
空室フロアリスト
| 階数 | 面積 | 賃料+共益費 | 保証金 | 入居時期 | 検討 | 図面 | 詳細 | 
|---|---|---|---|---|---|---|---|
| 6 | 62.06坪 | 
                                                1,774,916円28,600円/坪
                                             | 
                                                応相談
                                             | 相談 | 
 
                - 物件番号
- 180-00248
- 所在地
- 東京都渋谷区東3-6-22
- 物件番号
- 180-00248
- 竣工年
- 2003年4月
- 所在地
- 東京都渋谷区東3-6-22
- 竣工年
- 2003年4月
- 規模
- 地上8階/地下1階
| 階数 | 面積 | 賃料+共益費 | 保証金 | 入居時期 | 検討 | 図面 | 詳細 | 
|---|---|---|---|---|---|---|---|
| 100号室 | 25.49坪 | 
                                                825,000円32,366円/坪
                                             | 
                                                225万円
                                             | 2025年12月 | 
空室フロアリスト
| 階数 | 面積 | 賃料+共益費 | 保証金 | 入居時期 | 検討 | 図面 | 詳細 | 
|---|---|---|---|---|---|---|---|
| 100号室 | 25.49坪 | 
                                                825,000円32,366円/坪
                                             | 
                                                225万円
                                             | 2025年12月 | 
 
                - 物件番号
- 180-00296
- 所在地
- 東京都渋谷区東2-23-9
- 物件番号
- 180-00296
- 竣工年
- 1980年11月
- 所在地
- 東京都渋谷区東2-23-9
- 竣工年
- 1980年11月
- 規模
- 地上7階/地下1階
| 階数 | 面積 | 賃料+共益費 | 保証金 | 入居時期 | 検討 | 図面 | 詳細 | 
|---|---|---|---|---|---|---|---|
| 3 | 17.98坪 | 
                                                308,000円17,131円/坪
                                             | 
                                                106万円
                                             | 相談 | |||
| 7 | 17.98坪 | 
                                                280,500円15,602円/坪
                                             | 
                                                75万円
                                             | 相談 | 
空室フロアリスト
| 階数 | 面積 | 賃料+共益費 | 保証金 | 入居時期 | 検討 | 図面 | 詳細 | 
|---|---|---|---|---|---|---|---|
| 3 | 17.98坪 | 
                                                308,000円17,131円/坪
                                             | 
                                                106万円
                                             | 相談 | |||
| 7 | 17.98坪 | 
                                                280,500円15,602円/坪
                                             | 
                                                75万円
                                             | 相談 | 
 
                - 物件番号
- 884-00034
- 所在地
- 東京都目黒区中目黒2-8-22
- 物件番号
- 884-00034
- 竣工年
- 1991年10月
- 所在地
- 東京都目黒区中目黒2-8-22
- 竣工年
- 1991年10月
- 規模
- 地上7階
| 階数 | 面積 | 賃料+共益費 | 保証金 | 入居時期 | 検討 | 図面 | 詳細 | 
|---|---|---|---|---|---|---|---|
| 6 | 31.03坪 | 
                                                511,995円16,500円/坪
                                             | 
                                                297万円
                                             | 即 | 
空室フロアリスト
| 階数 | 面積 | 賃料+共益費 | 保証金 | 入居時期 | 検討 | 図面 | 詳細 | 
|---|---|---|---|---|---|---|---|
| 6 | 31.03坪 | 
                                                511,995円16,500円/坪
                                             | 
                                                297万円
                                             | 即 | 
 
                - 物件番号
- 166-00141
- 所在地
- 東京都渋谷区渋谷3-15-3
- 物件番号
- 166-00141
- 竣工年
- 1991年10月
- 所在地
- 東京都渋谷区渋谷3-15-3
- 竣工年
- 1991年10月
- 規模
- 地上9階
| 階数 | 面積 | 賃料+共益費 | 保証金 | 入居時期 | 検討 | 図面 | 詳細 | 
|---|---|---|---|---|---|---|---|
| 4 | 41.75坪 | 
                                                1,239,975円29,700円/坪
                                             | 
                                                901万円
                                             | 2026年1月 | 
空室フロアリスト
| 階数 | 面積 | 賃料+共益費 | 保証金 | 入居時期 | 検討 | 図面 | 詳細 | 
|---|---|---|---|---|---|---|---|
| 4 | 41.75坪 | 
                                                1,239,975円29,700円/坪
                                             | 
                                                901万円
                                             | 2026年1月 | 
 
                - 物件番号
- 166-00472
- 所在地
- 東京都渋谷区渋谷3-15-4
- 物件番号
- 166-00472
- 竣工年
- 2006年5月
- 所在地
- 東京都渋谷区渋谷3-15-4
- 竣工年
- 2006年5月
- 規模
- 地上10階
| 階数 | 面積 | 賃料+共益費 | 保証金 | 入居時期 | 検討 | 図面 | 詳細 | 
|---|---|---|---|---|---|---|---|
| 3 | 24.02坪 | 
                                                660,550円27,500円/坪
                                             | 
                                                360万円
                                             | 相談 | 
空室フロアリスト
| 階数 | 面積 | 賃料+共益費 | 保証金 | 入居時期 | 検討 | 図面 | 詳細 | 
|---|---|---|---|---|---|---|---|
| 3 | 24.02坪 | 
                                                660,550円27,500円/坪
                                             | 
                                                360万円
                                             | 相談 | 
 
                - 物件番号
- 884-00022
- 所在地
- 東京都目黒区中目黒3-6-4
- 物件番号
- 884-00022
- 竣工年
- 1988年11月
- 所在地
- 東京都目黒区中目黒3-6-4
- 竣工年
- 1988年11月
- 規模
- 地上7階/地下1階
| 階数 | 面積 | 賃料+共益費 | 保証金 | 入居時期 | 検討 | 図面 | 詳細 | 
|---|---|---|---|---|---|---|---|
| 3 | 34.22坪 | 
                                                428,892円12,533円/坪
                                             | 
                                                209万円
                                             | 即 | |||
| 5 | 34.22坪 | 
                                                429,000円12,536円/坪
                                             | 
                                                210万円
                                             | 即 | 
空室フロアリスト
| 階数 | 面積 | 賃料+共益費 | 保証金 | 入居時期 | 検討 | 図面 | 詳細 | 
|---|---|---|---|---|---|---|---|
| 3 | 34.22坪 | 
                                                428,892円12,533円/坪
                                             | 
                                                209万円
                                             | 即 | |||
| 5 | 34.22坪 | 
                                                429,000円12,536円/坪
                                             | 
                                                210万円
                                             | 即 | 
 
                - 物件番号
- 161-00010
- 所在地
- 東京都渋谷区恵比寿南2-7-1
- 物件番号
- 161-00010
- 竣工年
- 1992年7月
- 所在地
- 東京都渋谷区恵比寿南2-7-1
- 竣工年
- 1992年7月
- 規模
- 地上4階
| 階数 | 面積 | 賃料+共益費 | 保証金 | 入居時期 | 検討 | 図面 | 詳細 | 
|---|---|---|---|---|---|---|---|
| 3 | 27.43坪 | 
                                                573,287円20,900円/坪
                                             | 
                                                312万円
                                             | 2025年12月中旬 | 
空室フロアリスト
| 階数 | 面積 | 賃料+共益費 | 保証金 | 入居時期 | 検討 | 図面 | 詳細 | 
|---|---|---|---|---|---|---|---|
| 3 | 27.43坪 | 
                                                573,287円20,900円/坪
                                             | 
                                                312万円
                                             | 2025年12月中旬 | 
 
                - 物件番号
- 159-00400
- 所在地
- 東京都渋谷区恵比寿4-5-27
- 物件番号
- 159-00400
- 竣工年
- 2015年4月
- 所在地
- 東京都渋谷区恵比寿4-5-27
- 竣工年
- 2015年4月
- 規模
- 地上4階
| 階数 | 面積 | 賃料+共益費 | 保証金 | 入居時期 | 検討 | 図面 | 詳細 | 
|---|---|---|---|---|---|---|---|
| 1 | 70.00坪 | 
                                                2,387,000円34,100円/坪
                                             | 
                                                1302万円
                                             | 即 | |||
| 3 | 70.00坪 | 
                                                2,387,000円34,100円/坪
                                             | 
                                                1302万円
                                             | 即 | 
空室フロアリスト
| 階数 | 面積 | 賃料+共益費 | 保証金 | 入居時期 | 検討 | 図面 | 詳細 | 
|---|---|---|---|---|---|---|---|
| 1 | 70.00坪 | 
                                                2,387,000円34,100円/坪
                                             | 
                                                1302万円
                                             | 即 | |||
| 3 | 70.00坪 | 
                                                2,387,000円34,100円/坪
                                             | 
                                                1302万円
                                             | 即 | 
![図面[160-36-20]](https://www.threewave.co.jp/image?name=160-00036-Z004.jpg) 
                                                
                                                                                    ![図面[160-36-50]](https://www.threewave.co.jp/image?name=160-00036-Z003.jpg) 
                                                
                                                                                    ![図面[180-116-30]](https://www.threewave.co.jp/image?name=180-00116-Z013.jpg) 
                                                
                                                                                    ![図面[180-116-40]](https://www.threewave.co.jp/image?name=180-00116-Z012.jpg) 
                                                
                                                                                    ![図面[180-116-41]](https://www.threewave.co.jp/image?name=180-00116-Z011.jpg) 
                                                
                                                                                    ![図面[157-54-21]](https://www.threewave.co.jp/image?name=157-00054-Z001.jpg) 
                                                
                                                                                    ![図面[160-35-10]](https://www.threewave.co.jp/image?name=160-00035-Z003.jpg) 
                                                
                                                                                    ![図面[160-35-22]](https://www.threewave.co.jp/image?name=160-00035-Z004.jpg) 
                                                
                                                                                    ![図面[180-65-91]](https://www.threewave.co.jp/image?name=180-00065-Z007.jpg) 
                                                
                                                                                    ![図面[160-121-15]](https://www.threewave.co.jp/image?name=160-00121-Z007.jpg) 
                                                
                                                                                    ![図面[180-77-30]](https://www.threewave.co.jp/image?name=180-00077-Z008.jpg) 
                                                
                                                                                    ![図面[180-77-50]](https://www.threewave.co.jp/image?name=180-00077-Z006.jpg) 
                                                
                                                                                    ![図面[176-4-92]](https://www.threewave.co.jp/image?name=176-00004-Z007.jpg) 
                                                
                                                                                    ![図面[875-157-1]](https://www.threewave.co.jp/image?name=875-00157-Z003.jpg) 
                                                
                                                                                    ![図面[875-157-2]](https://www.threewave.co.jp/image?name=875-00157-Z002.jpg) 
                                                
                                                                                    ![図面[875-157-3]](https://www.threewave.co.jp/image?name=875-00157-Z004.jpg) 
                                                
                                                                                    ![図面[876-134-1]](https://www.threewave.co.jp/image?name=876-00134-Z001.jpg) 
                                                
                                                                                    ![図面[163-45-71]](https://www.threewave.co.jp/image?name=163-00045-Z01A.jpg) 
                                                
                                                                                    ![図面[166-67-120]](https://www.threewave.co.jp/image?name=166-00067-Z012.jpg) 
                                                
                                                                                    ![図面[166-67-130]](https://www.threewave.co.jp/image?name=166-00067-Z007.jpg) 
                                                
                                                                                    ![図面[166-67-140]](https://www.threewave.co.jp/image?name=166-00067-Z01A.jpg) 
                                                
                                                                                    ![図面[180-68-30]](https://www.threewave.co.jp/image?name=180-00068-Z013.jpg) 
                                                
                                                                                    ![図面[163-133-20]](https://www.threewave.co.jp/image?name=163-00133-Z01A.jpg) 
                                                
                                                                                    ![図面[163-133-60]](https://www.threewave.co.jp/image?name=163-00133-Z004.jpg) 
                                                
                                                                                    ![図面[161-14-10]](https://www.threewave.co.jp/image?name=161-00014-Z008.jpg) 
                                                
                                                                                    ![図面[161-206-2]](https://www.threewave.co.jp/image?name=161-00206-Z002.jpg) 
                                                
                                                                                    ![図面[161-206-1]](https://www.threewave.co.jp/image?name=161-00206-Z001.jpg) 
                                                
                                                                                    ![図面[873-2-40]](https://www.threewave.co.jp/image?name=873-00002-Z003.jpg) 
                                                
                                                                                    ![図面[180-33-71]](https://www.threewave.co.jp/image?name=180-00033-Z004.jpg) 
                                                
                                                                                    ![図面[180-33-60]](https://www.threewave.co.jp/image?name=180-00033-Z002.jpg) 
                                                
                                                                                    ![図面[180-33-70]](https://www.threewave.co.jp/image?name=180-00033-Z01A.jpg) 
                                                
                                                                                    ![図面[875-28-30]](https://www.threewave.co.jp/image?name=875-00028-Z002.jpg) 
                                                
                                                                                    ![図面[161-191-5]](https://www.threewave.co.jp/image?name=161-00191-Z005.jpg) 
                                                
                                                                                    ![図面[180-69-70]](https://www.threewave.co.jp/image?name=180-00069-Z005.jpg) 
                                                
                                                                                    ![図面[180-190-62]](https://www.threewave.co.jp/image?name=180-00190-Z013.jpg) 
                                                
                                                                                    ![図面[180-248-11]](https://www.threewave.co.jp/image?name=180-00248-Z002.jpg) 
                                                
                                                                                    ![図面[180-296-2]](https://www.threewave.co.jp/image?name=180-00296-Z003.jpg) 
                                                
                                                                                    ![図面[180-296-3]](https://www.threewave.co.jp/image?name=180-00296-Z002.jpg) 
                                                
                                                                                    ![図面[884-34-30]](https://www.threewave.co.jp/image?name=884-00034-Z01A.jpg) 
                                                
                                                                                    ![図面[166-141-30]](https://www.threewave.co.jp/image?name=166-00141-Z004.jpg) 
                                                
                                                                                    ![図面[166-472-30]](https://www.threewave.co.jp/image?name=166-00472-Z009.jpg) 
                                                
                                                                                    ![図面[884-22-21]](https://www.threewave.co.jp/image?name=884-00022-Z002.jpg) 
                                                
                                                                                    ![図面[161-10-21]](https://www.threewave.co.jp/image?name=161-00010-Z001.jpg) 
                                                
                                                                                    ![図面[159-400-1]](https://www.threewave.co.jp/image?name=159-00400-Z001.jpg) 
                                                
                                                                                    ![図面[159-400-2]](https://www.threewave.co.jp/image?name=159-00400-Z002.jpg) 
                                                
                                                                                    

