池袋駅の貸事務所・賃貸オフィス
池袋駅の基本情報
                        都内でも有数のターミナル駅である池袋は、実に8路線が乗り入れています。それに伴い駅の乗降者数はとても多く、池袋では人材サービス系の企業様からも賃貸事務所需要の高い地域です。
 池袋の賃貸事務所ビルといって、真っ先に思い浮かぶのはその規模の大きさから東口エリアの「サンシャイン60」ですが、近年では西口エリアにも次々と賃貸事務所ビルが竣工しています。副都心線開通や元々商業施設に恵まれた地域であることから、池袋の利用人口は右肩上がりで、今後も発展が期待される街のひとつといえます。
 池袋駅はJR山手線をはじめ、東京メトロ丸の内線、有楽町線の利用も可能な駅です。丸ノ内線と副都心線は、池袋駅のほか、新宿三丁目駅も接続駅となっています。
                        
 
                - 物件番号
- 798-00155
- 所在地
- 東京都豊島区西池袋1-16-1
- 物件番号
- 798-00155
- 竣工年
- 1970年10月
- 所在地
- 東京都豊島区西池袋1-16-1
- 竣工年
- 1970年10月
- 規模
- 地上9階/地下1階
| 階数 | 面積 | 賃料+共益費 | 保証金 | 入居時期 | 検討 | 図面 | 詳細 | 
|---|---|---|---|---|---|---|---|
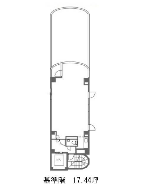
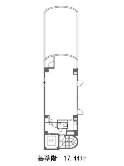
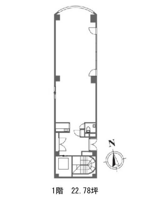
| 3 | 36.47坪 | 
                                                1,123,276円30,801円/坪
                                             | 
                                                532万円
                                             | 2026年6月上旬 | 
空室フロアリスト
| 階数 | 面積 | 賃料+共益費 | 保証金 | 入居時期 | 検討 | 図面 | 詳細 | 
|---|---|---|---|---|---|---|---|
| 3 | 36.47坪 | 
                                                1,123,276円30,801円/坪
                                             | 
                                                532万円
                                             | 2026年6月上旬 | 
 
                - 物件番号
- 798-00201
- 所在地
- 東京都豊島区西池袋1-15-5
- 物件番号
- 798-00201
- 竣工年
- 1978年4月
- 所在地
- 東京都豊島区西池袋1-15-5
- 竣工年
- 1978年4月
- 規模
| 階数 | 面積 | 賃料+共益費 | 保証金 | 入居時期 | 検討 | 図面 | 詳細 | 
|---|---|---|---|---|---|---|---|
| 3 | 46.39坪 | 
                                                877,698円18,920円/坪
                                             | 
                                                779万円
                                             | 相談 | 
空室フロアリスト
| 階数 | 面積 | 賃料+共益費 | 保証金 | 入居時期 | 検討 | 図面 | 詳細 | 
|---|---|---|---|---|---|---|---|
| 3 | 46.39坪 | 
                                                877,698円18,920円/坪
                                             | 
                                                779万円
                                             | 相談 | 
 
                - 物件番号
- 807-00091
- 所在地
- 東京都豊島区南池袋3-18-37
- 物件番号
- 807-00091
- 竣工年
- 1987年3月
- 所在地
- 東京都豊島区南池袋3-18-37
- 竣工年
- 1987年3月
- 規模
- 地上5階
| 階数 | 面積 | 賃料+共益費 | 保証金 | 入居時期 | 検討 | 図面 | 詳細 | 
|---|---|---|---|---|---|---|---|
| 3 | 22.14坪 | 
                                                318,725円14,396円/坪
                                             | 
                                                166万円
                                             | 即 | 
空室フロアリスト
| 階数 | 面積 | 賃料+共益費 | 保証金 | 入居時期 | 検討 | 図面 | 詳細 | 
|---|---|---|---|---|---|---|---|
| 3 | 22.14坪 | 
                                                318,725円14,396円/坪
                                             | 
                                                166万円
                                             | 即 | 
 
                - 物件番号
- 805-00018
- 所在地
- 東京都豊島区東池袋3-9-9
- 物件番号
- 805-00018
- 竣工年
- 1987年9月
- 所在地
- 東京都豊島区東池袋3-9-9
- 竣工年
- 1987年9月
- 規模
- 地上10階
| 階数 | 面積 | 賃料+共益費 | 保証金 | 入居時期 | 検討 | 図面 | 詳細 | 
|---|---|---|---|---|---|---|---|
| 3 | 21.80坪 | 
                                                369,600円16,954円/坪
                                             | 
                                                141万円
                                             | 2025年11月中旬 | |||
| 8 | 21.80坪 | 
                                                369,600円16,954円/坪
                                             | 
                                                141万円
                                             | 2025年11月中旬 | 
空室フロアリスト
| 階数 | 面積 | 賃料+共益費 | 保証金 | 入居時期 | 検討 | 図面 | 詳細 | 
|---|---|---|---|---|---|---|---|
| 3 | 21.80坪 | 
                                                369,600円16,954円/坪
                                             | 
                                                141万円
                                             | 2025年11月中旬 | |||
| 8 | 21.80坪 | 
                                                369,600円16,954円/坪
                                             | 
                                                141万円
                                             | 2025年11月中旬 | 
 
                - 物件番号
- 805-00024
- 所在地
- 東京都豊島区東池袋4-23-15
- 物件番号
- 805-00024
- 竣工年
- 1993年3月
- 所在地
- 東京都豊島区東池袋4-23-15
- 竣工年
- 1993年3月
- 規模
- 地上8階
| 階数 | 面積 | 賃料+共益費 | 保証金 | 入居時期 | 検討 | 図面 | 詳細 | 
|---|---|---|---|---|---|---|---|
| 6 | 89.76坪 | 
                                                応相談応相談
                                             | 
                                                応相談
                                             | 2026年2月上旬 | 
空室フロアリスト
| 階数 | 面積 | 賃料+共益費 | 保証金 | 入居時期 | 検討 | 図面 | 詳細 | 
|---|---|---|---|---|---|---|---|
| 6 | 89.76坪 | 
                                                応相談応相談
                                             | 
                                                応相談
                                             | 2026年2月上旬 | 
 
                - 物件番号
- 805-00289
- 所在地
- 東京都豊島区東池袋2-62-10
- 物件番号
- 805-00289
- 竣工年
- 2006年2月
- 所在地
- 東京都豊島区東池袋2-62-10
- 竣工年
- 2006年2月
- 規模
- 地上12階
| 階数 | 面積 | 賃料+共益費 | 保証金 | 入居時期 | 検討 | 図面 | 詳細 | 
|---|---|---|---|---|---|---|---|
| 10 | 16.02坪 | 
                                                330,000円20,599円/坪
                                             | 
                                                240万円
                                             | 2026年4月上旬 | 
空室フロアリスト
| 階数 | 面積 | 賃料+共益費 | 保証金 | 入居時期 | 検討 | 図面 | 詳細 | 
|---|---|---|---|---|---|---|---|
| 10 | 16.02坪 | 
                                                330,000円20,599円/坪
                                             | 
                                                240万円
                                             | 2026年4月上旬 | 
 
                - 物件番号
- 798-00067
- 所在地
- 東京都豊島区西池袋3-1-15
- 物件番号
- 798-00067
- 竣工年
- 1990年12月
- 所在地
- 東京都豊島区西池袋3-1-15
- 竣工年
- 1990年12月
- 規模
- 地上10階/地下1階
| 階数 | 面積 | 賃料+共益費 | 保証金 | 入居時期 | 検討 | 図面 | 詳細 | 
|---|---|---|---|---|---|---|---|
| 2 | 109.96坪 | 
                                                応相談応相談
                                             | 
                                                応相談
                                             | 2026年5月上旬 | 
空室フロアリスト
| 階数 | 面積 | 賃料+共益費 | 保証金 | 入居時期 | 検討 | 図面 | 詳細 | 
|---|---|---|---|---|---|---|---|
| 2 | 109.96坪 | 
                                                応相談応相談
                                             | 
                                                応相談
                                             | 2026年5月上旬 | 
 
                - 物件番号
- 805-00185
- 所在地
- 東京都豊島区東池袋1-25-8
- 物件番号
- 805-00185
- 竣工年
- 1977年4月
- 所在地
- 東京都豊島区東池袋1-25-8
- 竣工年
- 1977年4月
- 規模
- 地上9階/地下1階
| 階数 | 面積 | 賃料+共益費 | 保証金 | 入居時期 | 検討 | 図面 | 詳細 | 
|---|---|---|---|---|---|---|---|
| 1-2F | 348.51坪 | 
                                                応相談応相談
                                             | 
                                                応相談
                                             | 2026年4月上旬 | |||
| 3 | 104.60坪 | 
                                                2,094,092円20,020円/坪
                                             | 
                                                1673万円
                                             | 即 | 
空室フロアリスト
| 階数 | 面積 | 賃料+共益費 | 保証金 | 入居時期 | 検討 | 図面 | 詳細 | 
|---|---|---|---|---|---|---|---|
| 1-2F | 348.51坪 | 
                                                応相談応相談
                                             | 
                                                応相談
                                             | 2026年4月上旬 | |||
| 3 | 104.60坪 | 
                                                2,094,092円20,020円/坪
                                             | 
                                                1673万円
                                             | 即 | 
 
                - 物件番号
- 807-00127
- 所在地
- 東京都豊島区南池袋3-18-43
- 物件番号
- 807-00127
- 竣工年
- 1993年6月
- 所在地
- 東京都豊島区南池袋3-18-43
- 竣工年
- 1993年6月
- 規模
- 地上7階
| 階数 | 面積 | 賃料+共益費 | 保証金 | 入居時期 | 検討 | 図面 | 詳細 | 
|---|---|---|---|---|---|---|---|
| 2 | 28.02坪 | 
                                                462,000円16,490円/坪
                                             | 
                                                210万円
                                             | 2025年12月上旬 | 
空室フロアリスト
| 階数 | 面積 | 賃料+共益費 | 保証金 | 入居時期 | 検討 | 図面 | 詳細 | 
|---|---|---|---|---|---|---|---|
| 2 | 28.02坪 | 
                                                462,000円16,490円/坪
                                             | 
                                                210万円
                                             | 2025年12月上旬 | 
 
                - 物件番号
- 810-00046
- 所在地
- 東京都豊島区目白3-4-18
- 物件番号
- 810-00046
- 竣工年
- 1990年4月
- 所在地
- 東京都豊島区目白3-4-18
- 竣工年
- 1990年4月
- 規模
- 地上5階/地下1階
| 階数 | 面積 | 賃料+共益費 | 保証金 | 入居時期 | 検討 | 図面 | 詳細 | 
|---|---|---|---|---|---|---|---|
| 2 | 48.57坪 | 
                                                1,121,967円23,100円/坪
                                             | 
                                                1019万円
                                             | 2025年10月下旬 | |||
| 3 | 52.95坪 | 
                                                1,048,410円19,800円/坪
                                             | 
                                                900万円
                                             | 即 | 
空室フロアリスト
| 階数 | 面積 | 賃料+共益費 | 保証金 | 入居時期 | 検討 | 図面 | 詳細 | 
|---|---|---|---|---|---|---|---|
| 2 | 48.57坪 | 
                                                1,121,967円23,100円/坪
                                             | 
                                                1019万円
                                             | 2025年10月下旬 | |||
| 3 | 52.95坪 | 
                                                1,048,410円19,800円/坪
                                             | 
                                                900万円
                                             | 即 | 
 
                - 物件番号
- 798-00084
- 所在地
- 東京都豊島区西池袋3-30-4
- 物件番号
- 798-00084
- 竣工年
- 1985年5月
- 所在地
- 東京都豊島区西池袋3-30-4
- 竣工年
- 1985年5月
- 規模
- 地上8階/地下1階
| 階数 | 面積 | 賃料+共益費 | 保証金 | 入居時期 | 検討 | 図面 | 詳細 | 
|---|---|---|---|---|---|---|---|
| 3 | 57.32坪 | 
                                                1,040,358円18,150円/坪
                                             | 
                                                962万円
                                             | 相談 | 
空室フロアリスト
| 階数 | 面積 | 賃料+共益費 | 保証金 | 入居時期 | 検討 | 図面 | 詳細 | 
|---|---|---|---|---|---|---|---|
| 3 | 57.32坪 | 
                                                1,040,358円18,150円/坪
                                             | 
                                                962万円
                                             | 相談 | 
 
                - 物件番号
- 798-00091
- 所在地
- 東京都豊島区西池袋1-29-5
- 物件番号
- 798-00091
- 竣工年
- 1972年10月
- 所在地
- 東京都豊島区西池袋1-29-5
- 竣工年
- 1972年10月
- 規模
- 地上12階/地下3階
| 階数 | 面積 | 賃料+共益費 | 保証金 | 入居時期 | 検討 | 図面 | 詳細 | 
|---|---|---|---|---|---|---|---|
| 2 | 19.06坪 | 
                                                588,000円30,850円/坪
                                             | 
                                                320万円
                                             | 相談 | |||
| 4 | 21.54坪 | 
                                                473,998円22,005円/坪
                                             | 
                                                206万円
                                             | 即 | |||
| 6 | 20.65坪 | 
                                                454,360円22,003円/坪
                                             | 
                                                198万円
                                             | 即 | 
空室フロアリスト
| 階数 | 面積 | 賃料+共益費 | 保証金 | 入居時期 | 検討 | 図面 | 詳細 | 
|---|---|---|---|---|---|---|---|
| 2 | 19.06坪 | 
                                                588,000円30,850円/坪
                                             | 
                                                320万円
                                             | 相談 | |||
| 4 | 21.54坪 | 
                                                473,998円22,005円/坪
                                             | 
                                                206万円
                                             | 即 | |||
| 6 | 20.65坪 | 
                                                454,360円22,003円/坪
                                             | 
                                                198万円
                                             | 即 | 
 
                - 物件番号
- 807-00131
- 所在地
- 東京都豊島区南池袋1-16-4
- 物件番号
- 807-00131
- 竣工年
- 1986年1月
- 所在地
- 東京都豊島区南池袋1-16-4
- 竣工年
- 1986年1月
- 規模
- 地上5階/地下1階
| 階数 | 面積 | 賃料+共益費 | 保証金 | 入居時期 | 検討 | 図面 | 詳細 | 
|---|---|---|---|---|---|---|---|
| 3 | 25.46坪 | 
                                                448,096円17,600円/坪
                                             | 
                                                190万円
                                             | 即 | 
空室フロアリスト
| 階数 | 面積 | 賃料+共益費 | 保証金 | 入居時期 | 検討 | 図面 | 詳細 | 
|---|---|---|---|---|---|---|---|
| 3 | 25.46坪 | 
                                                448,096円17,600円/坪
                                             | 
                                                190万円
                                             | 即 | 
 
                - 物件番号
- 805-00096
- 所在地
- 東京都豊島区東池袋3-1-1
- 物件番号
- 805-00096
- 竣工年
- 1978年4月
- 所在地
- 東京都豊島区東池袋3-1-1
- 竣工年
- 1978年4月
- 規模
- 地上60階/地下4階
| 階数 | 面積 | 賃料+共益費 | 保証金 | 入居時期 | 検討 | 図面 | 詳細 | 
|---|---|---|---|---|---|---|---|
| 46 | 293.97坪 | 
                                                8,407,542円28,600円/坪
                                             | 
                                                9171万円
                                             | 即 | 
空室フロアリスト
| 階数 | 面積 | 賃料+共益費 | 保証金 | 入居時期 | 検討 | 図面 | 詳細 | 
|---|---|---|---|---|---|---|---|
| 46 | 293.97坪 | 
                                                8,407,542円28,600円/坪
                                             | 
                                                9171万円
                                             | 即 | 
 
                - 物件番号
- 802-00102
- 所在地
- 東京都豊島区池袋1-13-18
- 物件番号
- 802-00102
- 竣工年
- 1992年6月
- 所在地
- 東京都豊島区池袋1-13-18
- 竣工年
- 1992年6月
- 規模
- 地上8階
| 階数 | 面積 | 賃料+共益費 | 保証金 | 入居時期 | 検討 | 図面 | 詳細 | 
|---|---|---|---|---|---|---|---|
| 7 | 118.62坪 | 
                                                1,957,230円16,500円/坪
                                             | 
                                                1423万円
                                             | 2026年4月上旬 | 
空室フロアリスト
| 階数 | 面積 | 賃料+共益費 | 保証金 | 入居時期 | 検討 | 図面 | 詳細 | 
|---|---|---|---|---|---|---|---|
| 7 | 118.62坪 | 
                                                1,957,230円16,500円/坪
                                             | 
                                                1423万円
                                             | 2026年4月上旬 | 
 
                - 物件番号
- 805-00125
- 所在地
- 東京都豊島区東池袋4-25-12
- 物件番号
- 805-00125
- 竣工年
- 1998年1月
- 所在地
- 東京都豊島区東池袋4-25-12
- 竣工年
- 1998年1月
- 規模
- 地上8階
| 階数 | 面積 | 賃料+共益費 | 保証金 | 入居時期 | 検討 | 図面 | 詳細 | 
|---|---|---|---|---|---|---|---|
| 5 | 18.95坪 | 
                                                375,210円19,800円/坪
                                             | 
                                                284万円
                                             | 2025年11月上旬 | |||
| 6 | 37.90坪 | 
                                                750,420円19,800円/坪
                                             | 
                                                568万円
                                             | 2026年1月上旬 | 
空室フロアリスト
| 階数 | 面積 | 賃料+共益費 | 保証金 | 入居時期 | 検討 | 図面 | 詳細 | 
|---|---|---|---|---|---|---|---|
| 5 | 18.95坪 | 
                                                375,210円19,800円/坪
                                             | 
                                                284万円
                                             | 2025年11月上旬 | |||
| 6 | 37.90坪 | 
                                                750,420円19,800円/坪
                                             | 
                                                568万円
                                             | 2026年1月上旬 | 
 
                - 物件番号
- 805-00145
- 所在地
- 東京都豊島区東池袋1-36-1
- 物件番号
- 805-00145
- 竣工年
- 確認中
- 所在地
- 東京都豊島区東池袋1-36-1
- 竣工年
- 確認中
- 規模
- 地上9階
| 階数 | 面積 | 賃料+共益費 | 保証金 | 入居時期 | 検討 | 図面 | 詳細 | 
|---|---|---|---|---|---|---|---|
| 8 | 19.96坪 | 
                                                297,000円14,880円/坪
                                             | 
                                                100万円
                                             | 即 | 
空室フロアリスト
| 階数 | 面積 | 賃料+共益費 | 保証金 | 入居時期 | 検討 | 図面 | 詳細 | 
|---|---|---|---|---|---|---|---|
| 8 | 19.96坪 | 
                                                297,000円14,880円/坪
                                             | 
                                                100万円
                                             | 即 | 
 
                - 物件番号
- 805-00426
- 所在地
- 東京都豊島区東池袋2-50-13
- 物件番号
- 805-00426
- 竣工年
- 2022年10月
- 所在地
- 東京都豊島区東池袋2-50-13
- 竣工年
- 2022年10月
- 規模
- 地上8階
| 階数 | 面積 | 賃料+共益費 | 保証金 | 入居時期 | 検討 | 図面 | 詳細 | 
|---|---|---|---|---|---|---|---|
| 6 | 18.33坪 | 
                                                396,000円21,604円/坪
                                             | 
                                                216万円
                                             | 2025年12月中旬 | 
空室フロアリスト
| 階数 | 面積 | 賃料+共益費 | 保証金 | 入居時期 | 検討 | 図面 | 詳細 | 
|---|---|---|---|---|---|---|---|
| 6 | 18.33坪 | 
                                                396,000円21,604円/坪
                                             | 
                                                216万円
                                             | 2025年12月中旬 | 
 
                - 物件番号
- 810-00031
- 所在地
- 東京都豊島区目白2-16-22
- 物件番号
- 810-00031
- 竣工年
- 1986年1月
- 所在地
- 東京都豊島区目白2-16-22
- 竣工年
- 1986年1月
- 規模
- 地上5階
| 階数 | 面積 | 賃料+共益費 | 保証金 | 入居時期 | 検討 | 図面 | 詳細 | 
|---|---|---|---|---|---|---|---|
| 4 | 28.98坪 | 
                                                330,034円11,388円/坪
                                             | 
                                                79万円
                                             | 相談 | 
空室フロアリスト
| 階数 | 面積 | 賃料+共益費 | 保証金 | 入居時期 | 検討 | 図面 | 詳細 | 
|---|---|---|---|---|---|---|---|
| 4 | 28.98坪 | 
                                                330,034円11,388円/坪
                                             | 
                                                79万円
                                             | 相談 | 
 
                - 物件番号
- 191-00094
- 所在地
- 東京都新宿区下落合3-17-40
- 物件番号
- 191-00094
- 竣工年
- 1963年
- 所在地
- 東京都新宿区下落合3-17-40
- 竣工年
- 1963年
- 規模
- 地上5階
| 階数 | 面積 | 賃料+共益費 | 保証金 | 入居時期 | 検討 | 図面 | 詳細 | 
|---|---|---|---|---|---|---|---|
| 2 | 17.39坪 | 
                                                192,500円11,070円/坪
                                             | 
                                                52万円
                                             | 即 | 
空室フロアリスト
| 階数 | 面積 | 賃料+共益費 | 保証金 | 入居時期 | 検討 | 図面 | 詳細 | 
|---|---|---|---|---|---|---|---|
| 2 | 17.39坪 | 
                                                192,500円11,070円/坪
                                             | 
                                                52万円
                                             | 即 | 
 
                - 物件番号
- 802-00039
- 所在地
- 東京都豊島区池袋2-14-4
- 物件番号
- 802-00039
- 竣工年
- 1987年2月
- 所在地
- 東京都豊島区池袋2-14-4
- 竣工年
- 1987年2月
- 規模
- 地上9階/地下1階
| 階数 | 面積 | 賃料+共益費 | 保証金 | 入居時期 | 検討 | 図面 | 詳細 | 
|---|---|---|---|---|---|---|---|
| 3 | 55.77坪 | 
                                                応相談応相談
                                             | 
                                                応相談
                                             | 2026年3月上旬 | 
空室フロアリスト
| 階数 | 面積 | 賃料+共益費 | 保証金 | 入居時期 | 検討 | 図面 | 詳細 | 
|---|---|---|---|---|---|---|---|
| 3 | 55.77坪 | 
                                                応相談応相談
                                             | 
                                                応相談
                                             | 2026年3月上旬 | 
 
                - 物件番号
- 807-00008
- 所在地
- 東京都豊島区南池袋2-27-17
- 物件番号
- 807-00008
- 竣工年
- 1986年4月
- 所在地
- 東京都豊島区南池袋2-27-17
- 竣工年
- 1986年4月
- 規模
- 地上8階
| 階数 | 面積 | 賃料+共益費 | 保証金 | 入居時期 | 検討 | 図面 | 詳細 | 
|---|---|---|---|---|---|---|---|
| 5 | 41.35坪 | 
                                                864,215円20,900円/坪
                                             | 
                                                396万円
                                             | 相談 | 
空室フロアリスト
| 階数 | 面積 | 賃料+共益費 | 保証金 | 入居時期 | 検討 | 図面 | 詳細 | 
|---|---|---|---|---|---|---|---|
| 5 | 41.35坪 | 
                                                864,215円20,900円/坪
                                             | 
                                                396万円
                                             | 相談 | 
 
                - 物件番号
- 805-00280
- 所在地
- 東京都豊島区東池袋3-22-12
- 物件番号
- 805-00280
- 竣工年
- 1978年5月
- 所在地
- 東京都豊島区東池袋3-22-12
- 竣工年
- 1978年5月
- 規模
- 地上11階
| 階数 | 面積 | 賃料+共益費 | 保証金 | 入居時期 | 検討 | 図面 | 詳細 | 
|---|---|---|---|---|---|---|---|
| 2 | 149.05坪 | 
                                                1,639,550円11,000円/坪
                                             | 
                                                894万円
                                             | 2026年1月 | 
空室フロアリスト
| 階数 | 面積 | 賃料+共益費 | 保証金 | 入居時期 | 検討 | 図面 | 詳細 | 
|---|---|---|---|---|---|---|---|
| 2 | 149.05坪 | 
                                                1,639,550円11,000円/坪
                                             | 
                                                894万円
                                             | 2026年1月 | 
 
                - 物件番号
- 798-00046
- 所在地
- 東京都豊島区西池袋5-13-13
- 物件番号
- 798-00046
- 竣工年
- 1973年1月
- 所在地
- 東京都豊島区西池袋5-13-13
- 竣工年
- 1973年1月
- 規模
- 地上15階/地下2階
| 階数 | 面積 | 賃料+共益費 | 保証金 | 入居時期 | 検討 | 図面 | 詳細 | 
|---|---|---|---|---|---|---|---|
| 2 | 64.29坪 | 
                                                1,096,144円17,050円/坪
                                             | 
                                                771万円
                                             | 即 | |||
| 2 | 37.58坪 | 
                                                640,739円17,050円/坪
                                             | 
                                                450万円
                                             | 相談 | 
空室フロアリスト
| 階数 | 面積 | 賃料+共益費 | 保証金 | 入居時期 | 検討 | 図面 | 詳細 | 
|---|---|---|---|---|---|---|---|
| 2 | 64.29坪 | 
                                                1,096,144円17,050円/坪
                                             | 
                                                771万円
                                             | 即 | |||
| 2 | 37.58坪 | 
                                                640,739円17,050円/坪
                                             | 
                                                450万円
                                             | 相談 | 
 
                - 物件番号
- 805-00149
- 所在地
- 東京都豊島区東池袋1-30-12
- 物件番号
- 805-00149
- 竣工年
- 1977年10月
- 所在地
- 東京都豊島区東池袋1-30-12
- 竣工年
- 1977年10月
- 規模
- 地上9階/地下1階
| 階数 | 面積 | 賃料+共益費 | 保証金 | 入居時期 | 検討 | 図面 | 詳細 | 
|---|---|---|---|---|---|---|---|
| 4 | 53.00坪 | 
                                                903,650円17,050円/坪
                                             | 
                                                689万円
                                             | 2025年12月上旬 | 
空室フロアリスト
| 階数 | 面積 | 賃料+共益費 | 保証金 | 入居時期 | 検討 | 図面 | 詳細 | 
|---|---|---|---|---|---|---|---|
| 4 | 53.00坪 | 
                                                903,650円17,050円/坪
                                             | 
                                                689万円
                                             | 2025年12月上旬 | 
 
                - 物件番号
- 802-00033
- 所在地
- 東京都豊島区池袋4-29-11
- 物件番号
- 802-00033
- 竣工年
- 1985年12月
- 所在地
- 東京都豊島区池袋4-29-11
- 竣工年
- 1985年12月
- 規模
- 地上9階
| 階数 | 面積 | 賃料+共益費 | 保証金 | 入居時期 | 検討 | 図面 | 詳細 | 
|---|---|---|---|---|---|---|---|
| 4 | 37.50坪 | 
                                                453,750円12,100円/坪
                                             | 
                                                159万円
                                             | 2025年12月上旬 | |||
| 7 | 37.50坪 | 
                                                453,750円12,100円/坪
                                             | 
                                                159万円
                                             | 即 | 
空室フロアリスト
| 階数 | 面積 | 賃料+共益費 | 保証金 | 入居時期 | 検討 | 図面 | 詳細 | 
|---|---|---|---|---|---|---|---|
| 4 | 37.50坪 | 
                                                453,750円12,100円/坪
                                             | 
                                                159万円
                                             | 2025年12月上旬 | |||
| 7 | 37.50坪 | 
                                                453,750円12,100円/坪
                                             | 
                                                159万円
                                             | 即 | 
 
                - 物件番号
- 807-00151
- 所在地
- 東京都豊島区南池袋2-35-4
- 物件番号
- 807-00151
- 竣工年
- 1990年7月
- 所在地
- 東京都豊島区南池袋2-35-4
- 竣工年
- 1990年7月
- 規模
- 地上8階/地下1階
| 階数 | 面積 | 賃料+共益費 | 保証金 | 入居時期 | 検討 | 図面 | 詳細 | 
|---|---|---|---|---|---|---|---|
| 6 | 49.12坪 | 
                                                1,350,800円27,500円/坪
                                             | 
                                                736万円
                                             | 相談 | 
空室フロアリスト
| 階数 | 面積 | 賃料+共益費 | 保証金 | 入居時期 | 検討 | 図面 | 詳細 | 
|---|---|---|---|---|---|---|---|
| 6 | 49.12坪 | 
                                                1,350,800円27,500円/坪
                                             | 
                                                736万円
                                             | 相談 | 
 
                - 物件番号
- 805-00001
- 所在地
- 東京都豊島区東池袋3-4-3
- 物件番号
- 805-00001
- 竣工年
- 1993年4月
- 所在地
- 東京都豊島区東池袋3-4-3
- 竣工年
- 1993年4月
- 規模
- 地上14階/地下1階
| 階数 | 面積 | 賃料+共益費 | 保証金 | 入居時期 | 検討 | 図面 | 詳細 | 
|---|---|---|---|---|---|---|---|
| 11 | 71.07坪 | 
                                                応相談応相談
                                             | 
                                                応相談
                                             | 2026年5月上旬 | 
空室フロアリスト
| 階数 | 面積 | 賃料+共益費 | 保証金 | 入居時期 | 検討 | 図面 | 詳細 | 
|---|---|---|---|---|---|---|---|
| 11 | 71.07坪 | 
                                                応相談応相談
                                             | 
                                                応相談
                                             | 2026年5月上旬 | 
 
                - 物件番号
- 798-00233
- 所在地
- 東京都豊島区西池袋3-28-4
- 物件番号
- 798-00233
- 竣工年
- 2025年12月
- 所在地
- 東京都豊島区西池袋3-28-4
- 竣工年
- 2025年12月
- 規模
- 地上28階/地下4階
| 階数 | 面積 | 賃料+共益費 | 保証金 | 入居時期 | 検討 | 図面 | 詳細 | 
|---|---|---|---|---|---|---|---|
| 8 | 289.00坪 | 
                                                応相談応相談
                                             | 
                                                応相談
                                             | 2026年1月 | |||
| 9 | 256.40坪 | 
                                                応相談応相談
                                             | 
                                                応相談
                                             | 2026年1月上旬 | |||
| 10 | 289.00坪 | 
                                                応相談応相談
                                             | 
                                                応相談
                                             | 2026年1月 | |||
| 16 | 97.85坪 | 
                                                応相談応相談
                                             | 
                                                応相談
                                             | 2026年1月上旬 | |||
| 17 | 92.07坪 | 
                                                応相談応相談
                                             | 
                                                応相談
                                             | 2026年1月上旬 | |||
| 17 | 75.26坪 | 
                                                応相談応相談
                                             | 
                                                応相談
                                             | 2026年1月上旬 | |||
| 20 | 289.00坪 | 
                                                応相談応相談
                                             | 
                                                応相談
                                             | 2026年1月 | |||
| 21 | 289.00坪 | 
                                                応相談応相談
                                             | 
                                                応相談
                                             | 2026年1月 | |||
| 22 | 289.00坪 | 
                                                応相談応相談
                                             | 
                                                応相談
                                             | 2026年1月 | |||
| 23 | 289.00坪 | 
                                                応相談応相談
                                             | 
                                                応相談
                                             | 2026年1月 | |||
| 24 | 289.00坪 | 
                                                応相談応相談
                                             | 
                                                応相談
                                             | 2026年1月 | |||
| 25 | 289.00坪 | 
                                                応相談応相談
                                             | 
                                                応相談
                                             | 2026年1月 | 
空室フロアリスト
| 階数 | 面積 | 賃料+共益費 | 保証金 | 入居時期 | 検討 | 図面 | 詳細 | 
|---|---|---|---|---|---|---|---|
| 8 | 289.00坪 | 
                                                応相談応相談
                                             | 
                                                応相談
                                             | 2026年1月 | |||
| 9 | 256.40坪 | 
                                                応相談応相談
                                             | 
                                                応相談
                                             | 2026年1月上旬 | |||
| 10 | 289.00坪 | 
                                                応相談応相談
                                             | 
                                                応相談
                                             | 2026年1月 | |||
| 16 | 97.85坪 | 
                                                応相談応相談
                                             | 
                                                応相談
                                             | 2026年1月上旬 | |||
| 17 | 92.07坪 | 
                                                応相談応相談
                                             | 
                                                応相談
                                             | 2026年1月上旬 | |||
| 17 | 75.26坪 | 
                                                応相談応相談
                                             | 
                                                応相談
                                             | 2026年1月上旬 | |||
| 20 | 289.00坪 | 
                                                応相談応相談
                                             | 
                                                応相談
                                             | 2026年1月 | |||
| 21 | 289.00坪 | 
                                                応相談応相談
                                             | 
                                                応相談
                                             | 2026年1月 | |||
| 22 | 289.00坪 | 
                                                応相談応相談
                                             | 
                                                応相談
                                             | 2026年1月 | |||
| 23 | 289.00坪 | 
                                                応相談応相談
                                             | 
                                                応相談
                                             | 2026年1月 | |||
| 24 | 289.00坪 | 
                                                応相談応相談
                                             | 
                                                応相談
                                             | 2026年1月 | |||
| 25 | 289.00坪 | 
                                                応相談応相談
                                             | 
                                                応相談
                                             | 2026年1月 | 
 
                - 物件番号
- 807-00205
- 所在地
- 東京都豊島区南池袋1-20-9
- 物件番号
- 807-00205
- 竣工年
- 1963年1月
- 所在地
- 東京都豊島区南池袋1-20-9
- 竣工年
- 1963年1月
- 規模
- 地上7階
| 階数 | 面積 | 賃料+共益費 | 保証金 | 入居時期 | 検討 | 図面 | 詳細 | 
|---|---|---|---|---|---|---|---|
| 6 | 30.00坪 | 
                                                594,000円19,800円/坪
                                             | 
                                                450万円
                                             | 即 | 
空室フロアリスト
| 階数 | 面積 | 賃料+共益費 | 保証金 | 入居時期 | 検討 | 図面 | 詳細 | 
|---|---|---|---|---|---|---|---|
| 6 | 30.00坪 | 
                                                594,000円19,800円/坪
                                             | 
                                                450万円
                                             | 即 | 
![図面[798-155-10]](https://www.threewave.co.jp/image?name=798-00155-Z005.jpg) 
                                                
                                                                                    ![図面[798-201-1]](https://www.threewave.co.jp/image?name=798-00201-Z001.jpg) 
                                                
                                                                                    ![図面[807-91-20]](https://www.threewave.co.jp/image?name=807-00091-Z001.jpg) 
                                                
                                                                                    ![図面[805-18-20]](https://www.threewave.co.jp/image?name=805-00018-Z005.jpg) 
                                                
                                                                                    ![図面[805-18-50]](https://www.threewave.co.jp/image?name=805-00018-Z004.jpg) 
                                                
                                                                                    ![図面[805-24-70]](https://www.threewave.co.jp/image?name=805-00024-Z005.jpg) 
                                                
                                                                                    ![図面[805-289-60]](https://www.threewave.co.jp/image?name=805-00289-Z002.jpg) 
                                                
                                                                                    ![図面[798-67-30]](https://www.threewave.co.jp/image?name=798-00067-Z003.jpg) 
                                                
                                                                                    ![図面[807-127-21]](https://www.threewave.co.jp/image?name=807-00127-Z001.jpg) 
                                                
                                                                                    ![図面[810-46-3]](https://www.threewave.co.jp/image?name=810-00046-Z003.jpg) 
                                                
                                                                                    ![図面[810-46-1]](https://www.threewave.co.jp/image?name=810-00046-Z004.jpg) 
                                                
                                                                                    ![図面[798-84-20]](https://www.threewave.co.jp/image?name=798-00084-Z008.jpg) 
                                                
                                                                                    ![図面[798-91-233]](https://www.threewave.co.jp/image?name=798-00091-Z002.jpg) 
                                                
                                                                                    ![図面[798-91-235]](https://www.threewave.co.jp/image?name=798-00091-Z001.jpg) 
                                                
                                                                                    ![図面[807-131-30]](https://www.threewave.co.jp/image?name=807-00131-Z002.jpg) 
                                                
                                                                                    ![図面[805-96-483]](https://www.threewave.co.jp/image?name=805-00096-Z021.jpg) 
                                                
                                                                                    ![図面[802-102-60]](https://www.threewave.co.jp/image?name=802-00102-Z001.jpg) 
                                                
                                                                                    ![図面[805-125-60]](https://www.threewave.co.jp/image?name=805-00125-Z007.jpg) 
                                                
                                                                                    ![図面[805-125-81]](https://www.threewave.co.jp/image?name=805-00125-Z01A.jpg) 
                                                
                                                                                    ![図面[805-145-11]](https://www.threewave.co.jp/image?name=805-00145-Z003.jpg) 
                                                
                                                                                    ![図面[805-426-2]](https://www.threewave.co.jp/image?name=805-00426-Z003.jpg) 
                                                
                                                                                    ![図面[810-31-35]](https://www.threewave.co.jp/image?name=810-00031-Z003.jpg) 
                                                
                                                                                    ![図面[191-94-1]](https://www.threewave.co.jp/image?name=191-00094-Z001.jpg) 
                                                
                                                                                    ![図面[802-39-30]](https://www.threewave.co.jp/image?name=802-00039-Z005.jpg) 
                                                
                                                                                    ![図面[807-8-40]](https://www.threewave.co.jp/image?name=807-00008-Z005.jpg) 
                                                
                                                                                    ![図面[805-280-122]](https://www.threewave.co.jp/image?name=805-00280-Z003.jpg) 
                                                
                                                                                    ![図面[798-46-70]](https://www.threewave.co.jp/image?name=798-00046-Z009.jpg) 
                                                
                                                                                    ![図面[798-46-80]](https://www.threewave.co.jp/image?name=798-00046-Z011.jpg) 
                                                
                                                                                    ![図面[805-149-50]](https://www.threewave.co.jp/image?name=805-00149-Z001.jpg) 
                                                
                                                                                    ![図面[802-33-40]](https://www.threewave.co.jp/image?name=802-00033-Z002.jpg) 
                                                
                                                                                    ![図面[802-33-70]](https://www.threewave.co.jp/image?name=802-00033-Z001.jpg) 
                                                
                                                                                    ![図面[807-151-41]](https://www.threewave.co.jp/image?name=807-00151-Z009.jpg) 
                                                
                                                                                    ![図面[798-233-18]](https://www.threewave.co.jp/image?name=798-00233-Z008.jpg) 
                                                
                                                                                    ![図面[798-233-16]](https://www.threewave.co.jp/image?name=798-00233-Z006.jpg) 
                                                
                                                                                    ![図面[798-233-6]](https://www.threewave.co.jp/image?name=798-00233-Z019.jpg) 
                                                
                                                                                    ![図面[798-233-5]](https://www.threewave.co.jp/image?name=798-00233-Z020.jpg) 
                                                
                                                                                    ![図面[798-233-4]](https://www.threewave.co.jp/image?name=798-00233-Z014.jpg) 
                                                
                                                                                    ![図面[798-233-3]](https://www.threewave.co.jp/image?name=798-00233-Z012.jpg) 
                                                
                                                                                    ![図面[798-233-2]](https://www.threewave.co.jp/image?name=798-00233-Z013.jpg) 
                                                
                                                                                    ![図面[798-233-1]](https://www.threewave.co.jp/image?name=798-00233-Z011.jpg) 
                                                
                                                                                    ![図面[807-205-10]](https://www.threewave.co.jp/image?name=807-00205-Z001.jpg) 
                                                
                                                                                    

