港区の貸事務所・賃貸オフィス
港区の特色
港区はエリアによって様々な特徴がある街です。まずオフィスエリアは虎ノ門・新橋・浜松町を中心に、品川や六本木も再開発地として活況を呈しています。虎ノ門周辺は裁判所や各省庁に近く、金融関係・弁護士関係からのリクエストも多いエリアです。赤坂周辺では大使館が数多く存在し、周辺の商業地も国際的な雰囲気です。白金・三田・高輪などは高級住宅地として需要が高く、品川駅周辺では超高層タワーマンションが乱立したので都心であるにもかかわらず人口は多い街です。日本国内において企業が本社を最も多く構える区で日本のビジネスの中心地と言っても過言ではないでしょう。大規模再開発が進み、本社機能を他区や他県から港区に移している企業が目立ちます。駐日大使館や外資系企業も数多く立地しており、外国人居住者も人口の約1割を占める特徴があります。
- 物件番号
- 133-00858
- 所在地
- 東京都港区赤坂2-17-69
- 物件番号
- 133-00858
- 竣工年
- 2008年1月
- 所在地
- 東京都港区赤坂2-17-69
- 竣工年
- 2008年1月
- 規模
- 地上7階
| 階数 | 面積 | 賃料+共益費 | 保証金 | 入居時期 | 検討 | 図面 | 詳細 |
|---|---|---|---|---|---|---|---|
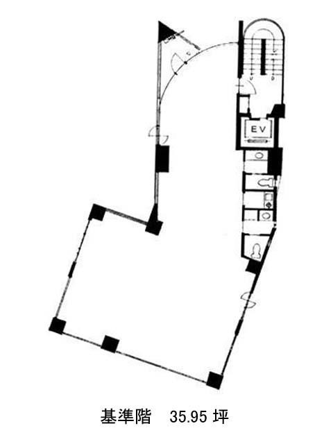
| 2 | 37.46坪 |
947,738円25,300円/坪
|
749万円
|
即 |
空室フロアリスト
| 階数 | 面積 | 賃料+共益費 | 保証金 | 入居時期 | 検討 | 図面 | 詳細 |
|---|---|---|---|---|---|---|---|
| 2 | 37.46坪 |
947,738円25,300円/坪
|
749万円
|
即 |
- 物件番号
- 137-01001
- 所在地
- 東京都港区南青山2-5-9
- 物件番号
- 137-01001
- 竣工年
- 2023年11月
- 所在地
- 東京都港区南青山2-5-9
- 竣工年
- 2023年11月
- 規模
- 地上5階
| 階数 | 面積 | 賃料+共益費 | 保証金 | 入居時期 | 検討 | 図面 | 詳細 |
|---|---|---|---|---|---|---|---|
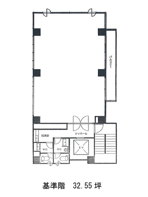
| 3 | 32.07坪 |
1,058,310円33,000円/坪
|
481万円
|
即 | |||
| 4 | 32.07坪 |
1,128,864円35,200円/坪
|
615万円
|
2026年2月中旬 |
空室フロアリスト
| 階数 | 面積 | 賃料+共益費 | 保証金 | 入居時期 | 検討 | 図面 | 詳細 |
|---|---|---|---|---|---|---|---|
| 3 | 32.07坪 |
1,058,310円33,000円/坪
|
481万円
|
即 | |||
| 4 | 32.07坪 |
1,128,864円35,200円/坪
|
615万円
|
2026年2月中旬 |
- 物件番号
- 130-00277
- 所在地
- 東京都港区新橋3-1-11
- 物件番号
- 130-00277
- 竣工年
- 1991年2月
- 所在地
- 東京都港区新橋3-1-11
- 竣工年
- 1991年2月
- 規模
- 地上9階
| 階数 | 面積 | 賃料+共益費 | 保証金 | 入居時期 | 検討 | 図面 | 詳細 |
|---|---|---|---|---|---|---|---|
| 3 | 67.15坪 |
1,625,030円24,200円/坪
|
1450万円
|
2026年4月上旬 | |||
| 8 | 67.15坪 |
1,625,030円24,200円/坪
|
1450万円
|
即 |
空室フロアリスト
| 階数 | 面積 | 賃料+共益費 | 保証金 | 入居時期 | 検討 | 図面 | 詳細 |
|---|---|---|---|---|---|---|---|
| 3 | 67.15坪 |
1,625,030円24,200円/坪
|
1450万円
|
2026年4月上旬 | |||
| 8 | 67.15坪 |
1,625,030円24,200円/坪
|
1450万円
|
即 |
- 物件番号
- 133-00403
- 所在地
- 東京都港区赤坂6-14-3
- 物件番号
- 133-00403
- 竣工年
- 1971年1月
- 所在地
- 東京都港区赤坂6-14-3
- 竣工年
- 1971年1月
- 規模
- 地上7階/地下1階
| 階数 | 面積 | 賃料+共益費 | 保証金 | 入居時期 | 検討 | 図面 | 詳細 |
|---|---|---|---|---|---|---|---|
| 地下1 | 33.80坪 |
371,800円11,000円/坪
|
101万円
|
即 | |||
| 4 | 81.75坪 |
1,618,650円19,800円/坪
|
1062万円
|
即 |
空室フロアリスト
| 階数 | 面積 | 賃料+共益費 | 保証金 | 入居時期 | 検討 | 図面 | 詳細 |
|---|---|---|---|---|---|---|---|
| 地下1 | 33.80坪 |
371,800円11,000円/坪
|
101万円
|
即 | |||
| 4 | 81.75坪 |
1,618,650円19,800円/坪
|
1062万円
|
即 |
- 物件番号
- 147-00356
- 所在地
- 東京都港区六本木2-4-9
- 物件番号
- 147-00356
- 竣工年
- 1983年6月
- 所在地
- 東京都港区六本木2-4-9
- 竣工年
- 1983年6月
- 規模
- 地上10階
| 階数 | 面積 | 賃料+共益費 | 保証金 | 入居時期 | 検討 | 図面 | 詳細 |
|---|---|---|---|---|---|---|---|
| 9 | 25.47坪 |
784,476円30,800円/坪
|
198万円
|
2025年11月下旬 |
空室フロアリスト
| 階数 | 面積 | 賃料+共益費 | 保証金 | 入居時期 | 検討 | 図面 | 詳細 |
|---|---|---|---|---|---|---|---|
| 9 | 25.47坪 |
784,476円30,800円/坪
|
198万円
|
2025年11月下旬 |
- 物件番号
- 126-00421
- 所在地
- 東京都港区芝5-23-1
- 物件番号
- 126-00421
- 竣工年
- 1990年3月
- 所在地
- 東京都港区芝5-23-1
- 竣工年
- 1990年3月
- 規模
- 地上5階
| 階数 | 面積 | 賃料+共益費 | 保証金 | 入居時期 | 検討 | 図面 | 詳細 |
|---|---|---|---|---|---|---|---|
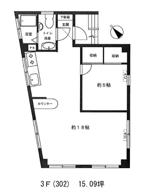
| 1 | 16.77坪 |
352,000円20,991円/坪
|
120万円
|
2026年1月上旬 |
空室フロアリスト
| 階数 | 面積 | 賃料+共益費 | 保証金 | 入居時期 | 検討 | 図面 | 詳細 |
|---|---|---|---|---|---|---|---|
| 1 | 16.77坪 |
352,000円20,991円/坪
|
120万円
|
2026年1月上旬 |
- 物件番号
- 128-00101
- 所在地
- 東京都港区芝公園1-7-7
- 物件番号
- 128-00101
- 竣工年
- 1971年12月
- 所在地
- 東京都港区芝公園1-7-7
- 竣工年
- 1971年12月
- 規模
- 地上4階
| 階数 | 面積 | 賃料+共益費 | 保証金 | 入居時期 | 検討 | 図面 | 詳細 |
|---|---|---|---|---|---|---|---|
| 2 | 22.08坪 |
275,000円12,455円/坪
|
75万円
|
即 | |||
| 3 | 22.08坪 |
275,000円12,455円/坪
|
75万円
|
即 |
空室フロアリスト
| 階数 | 面積 | 賃料+共益費 | 保証金 | 入居時期 | 検討 | 図面 | 詳細 |
|---|---|---|---|---|---|---|---|
| 2 | 22.08坪 |
275,000円12,455円/坪
|
75万円
|
即 | |||
| 3 | 22.08坪 |
275,000円12,455円/坪
|
75万円
|
即 |
- 物件番号
- 137-00141
- 所在地
- 東京都港区南青山5-11-2
- 物件番号
- 137-00141
- 竣工年
- 2012年2月
- 所在地
- 東京都港区南青山5-11-2
- 竣工年
- 2012年2月
- 規模
- 地上9階
| 階数 | 面積 | 賃料+共益費 | 保証金 | 入居時期 | 検討 | 図面 | 詳細 |
|---|---|---|---|---|---|---|---|
| 8 | 46.01坪 |
1,771,385円38,500円/坪
|
1739万円
|
即 |
空室フロアリスト
| 階数 | 面積 | 賃料+共益費 | 保証金 | 入居時期 | 検討 | 図面 | 詳細 |
|---|---|---|---|---|---|---|---|
| 8 | 46.01坪 |
1,771,385円38,500円/坪
|
1739万円
|
即 |
- 物件番号
- 144-00151
- 所在地
- 東京都港区麻布十番1-10-3
- 物件番号
- 144-00151
- 竣工年
- 1982年4月
- 所在地
- 東京都港区麻布十番1-10-3
- 竣工年
- 1982年4月
- 規模
- 地上10階/地下1階
| 階数 | 面積 | 賃料+共益費 | 保証金 | 入居時期 | 検討 | 図面 | 詳細 |
|---|---|---|---|---|---|---|---|
| 5 | 20.03坪 |
434,000円21,667円/坪
|
78万円
|
即 | |||
| 9 | 21.74坪 |
390,013円17,939円/坪
|
70万円
|
即 |
空室フロアリスト
| 階数 | 面積 | 賃料+共益費 | 保証金 | 入居時期 | 検討 | 図面 | 詳細 |
|---|---|---|---|---|---|---|---|
| 5 | 20.03坪 |
434,000円21,667円/坪
|
78万円
|
即 | |||
| 9 | 21.74坪 |
390,013円17,939円/坪
|
70万円
|
即 |
- 物件番号
- 147-00004
- 所在地
- 東京都港区六本木3-16-33
- 物件番号
- 147-00004
- 竣工年
- 1993年1月
- 所在地
- 東京都港区六本木3-16-33
- 竣工年
- 1993年1月
- 規模
- 地上11階/地下3階
| 階数 | 面積 | 賃料+共益費 | 保証金 | 入居時期 | 検討 | 図面 | 詳細 |
|---|---|---|---|---|---|---|---|
| 2 | 105.33坪 |
応相談応相談
|
応相談
|
2026年6月上旬 | |||
| 2 | 122.41坪 |
応相談応相談
|
応相談
|
即 | |||
| 3 | 194.05坪 |
応相談応相談
|
応相談
|
即 |
空室フロアリスト
| 階数 | 面積 | 賃料+共益費 | 保証金 | 入居時期 | 検討 | 図面 | 詳細 |
|---|---|---|---|---|---|---|---|
| 2 | 105.33坪 |
応相談応相談
|
応相談
|
2026年6月上旬 | |||
| 2 | 122.41坪 |
応相談応相談
|
応相談
|
即 | |||
| 3 | 194.05坪 |
応相談応相談
|
応相談
|
即 |
- 物件番号
- 147-00092
- 所在地
- 東京都港区六本木5-18-20
- 物件番号
- 147-00092
- 竣工年
- 1986年3月
- 所在地
- 東京都港区六本木5-18-20
- 竣工年
- 1986年3月
- 規模
- 地上6階/地下1階
| 階数 | 面積 | 賃料+共益費 | 保証金 | 入居時期 | 検討 | 図面 | 詳細 |
|---|---|---|---|---|---|---|---|
| 3 | 28.01坪 |
550,007円19,636円/坪
|
250万円
|
即 |
空室フロアリスト
| 階数 | 面積 | 賃料+共益費 | 保証金 | 入居時期 | 検討 | 図面 | 詳細 |
|---|---|---|---|---|---|---|---|
| 3 | 28.01坪 |
550,007円19,636円/坪
|
250万円
|
即 |
- 物件番号
- 122-00234
- 所在地
- 東京都港区虎ノ門2-5-4
- 物件番号
- 122-00234
- 竣工年
- 1971年1月
- 所在地
- 東京都港区虎ノ門2-5-4
- 竣工年
- 1971年1月
- 規模
- 地上10階/地下1階
| 階数 | 面積 | 賃料+共益費 | 保証金 | 入居時期 | 検討 | 図面 | 詳細 |
|---|---|---|---|---|---|---|---|
| 3 | 43.00坪 |
1,087,900円25,300円/坪
|
989万円
|
相談 | |||
| 5 | 43.00坪 |
1,087,900円25,300円/坪
|
989万円
|
2026年4月上旬 | |||
| 6 | 43.00坪 |
1,087,900円25,300円/坪
|
989万円
|
2026年4月上旬 |
空室フロアリスト
| 階数 | 面積 | 賃料+共益費 | 保証金 | 入居時期 | 検討 | 図面 | 詳細 |
|---|---|---|---|---|---|---|---|
| 3 | 43.00坪 |
1,087,900円25,300円/坪
|
989万円
|
相談 | |||
| 5 | 43.00坪 |
1,087,900円25,300円/坪
|
989万円
|
2026年4月上旬 | |||
| 6 | 43.00坪 |
1,087,900円25,300円/坪
|
989万円
|
2026年4月上旬 |
- 物件番号
- 127-00023
- 所在地
- 東京都港区芝浦1-7-14
- 物件番号
- 127-00023
- 竣工年
- 1990年9月
- 所在地
- 東京都港区芝浦1-7-14
- 竣工年
- 1990年9月
- 規模
- 地上6階
| 階数 | 面積 | 賃料+共益費 | 保証金 | 入居時期 | 検討 | 図面 | 詳細 |
|---|---|---|---|---|---|---|---|
| 2 | 62.95坪 |
1,107,920円17,600円/坪
|
818万円
|
即 |
空室フロアリスト
| 階数 | 面積 | 賃料+共益費 | 保証金 | 入居時期 | 検討 | 図面 | 詳細 |
|---|---|---|---|---|---|---|---|
| 2 | 62.95坪 |
1,107,920円17,600円/坪
|
818万円
|
即 |
- 物件番号
- 127-00214
- 所在地
- 東京都港区芝浦3-6-14
- 物件番号
- 127-00214
- 竣工年
- 2024年10月
- 所在地
- 東京都港区芝浦3-6-14
- 竣工年
- 2024年10月
- 規模
- 地上11階
| 階数 | 面積 | 賃料+共益費 | 保証金 | 入居時期 | 検討 | 図面 | 詳細 |
|---|---|---|---|---|---|---|---|
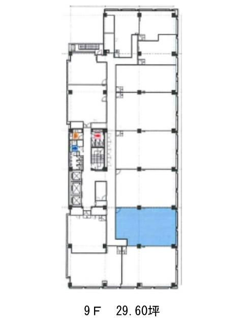
| 6 | 48.14坪 |
1,906,344円39,600円/坪
|
応相談
|
即 |
空室フロアリスト
| 階数 | 面積 | 賃料+共益費 | 保証金 | 入居時期 | 検討 | 図面 | 詳細 |
|---|---|---|---|---|---|---|---|
| 6 | 48.14坪 |
1,906,344円39,600円/坪
|
応相談
|
即 |
- 物件番号
- 131-00109
- 所在地
- 東京都港区西新橋2-39-3
- 物件番号
- 131-00109
- 竣工年
- 1978年3月
- 所在地
- 東京都港区西新橋2-39-3
- 竣工年
- 1978年3月
- 規模
- 地上8階/地下1階
| 階数 | 面積 | 賃料+共益費 | 保証金 | 入居時期 | 検討 | 図面 | 詳細 |
|---|---|---|---|---|---|---|---|
| 3 | 135.61坪 |
応相談応相談
|
応相談
|
即 | |||
| 4 | 135.61坪 |
応相談応相談
|
応相談
|
即 |
空室フロアリスト
| 階数 | 面積 | 賃料+共益費 | 保証金 | 入居時期 | 検討 | 図面 | 詳細 |
|---|---|---|---|---|---|---|---|
| 3 | 135.61坪 |
応相談応相談
|
応相談
|
即 | |||
| 4 | 135.61坪 |
応相談応相談
|
応相談
|
即 |
- 物件番号
- 134-00006
- 所在地
- 東京都港区台場2-6-1
- 物件番号
- 134-00006
- 竣工年
- 1998年2月
- 最寄駅
- 台場駅 2分 、 東京国際クルーズターミナル駅 9分 、 東京テレポート駅 11分 、 お台場海浜公園駅 11分 、 青海駅 17分
- 所在地
- 東京都港区台場2-6-1
- 竣工年
- 1998年2月
- 規模
- 地上29階/地下3階
| 階数 | 面積 | 賃料+共益費 | 保証金 | 入居時期 | 検討 | 図面 | 詳細 |
|---|---|---|---|---|---|---|---|
| 2 | 82.61坪 |
1,363,065円16,500円/坪
|
743万円
|
2026年7月 | |||
| 2 | 63.19坪 |
1,251,162円19,800円/坪
|
682万円
|
2026年7月 | |||
| 2 | 29.62坪 |
488,730円16,500円/坪
|
266万円
|
2026年7月 | |||
| 2 | 38.32坪 |
632,280円16,500円/坪
|
344万円
|
2026年7月 | |||
| 2 | 48.40坪 |
1,064,800円22,000円/坪
|
580万円
|
2026年7月上旬 | |||
| 3 | 30.98坪 |
511,170円16,500円/坪
|
278万円
|
2026年7月 | |||
| 3 | 34.45坪 |
568,425円16,500円/坪
|
310万円
|
2026年7月 |
空室フロアリスト
| 階数 | 面積 | 賃料+共益費 | 保証金 | 入居時期 | 検討 | 図面 | 詳細 |
|---|---|---|---|---|---|---|---|
| 2 | 82.61坪 |
1,363,065円16,500円/坪
|
743万円
|
2026年7月 | |||
| 2 | 63.19坪 |
1,251,162円19,800円/坪
|
682万円
|
2026年7月 | |||
| 2 | 29.62坪 |
488,730円16,500円/坪
|
266万円
|
2026年7月 | |||
| 2 | 38.32坪 |
632,280円16,500円/坪
|
344万円
|
2026年7月 | |||
| 2 | 48.40坪 |
1,064,800円22,000円/坪
|
580万円
|
2026年7月上旬 | |||
| 3 | 30.98坪 |
511,170円16,500円/坪
|
278万円
|
2026年7月 | |||
| 3 | 34.45坪 |
568,425円16,500円/坪
|
310万円
|
2026年7月 |
- 物件番号
- 137-00565
- 所在地
- 東京都港区南青山2-8-27
- 物件番号
- 137-00565
- 竣工年
- 1969年1月
- 所在地
- 東京都港区南青山2-8-27
- 竣工年
- 1969年1月
- 規模
- 地上7階
| 階数 | 面積 | 賃料+共益費 | 保証金 | 入居時期 | 検討 | 図面 | 詳細 |
|---|---|---|---|---|---|---|---|
| 6 | 16.72坪 |
280,018円16,747円/坪
|
76万円
|
2025年11月中旬 |
空室フロアリスト
| 階数 | 面積 | 賃料+共益費 | 保証金 | 入居時期 | 検討 | 図面 | 詳細 |
|---|---|---|---|---|---|---|---|
| 6 | 16.72坪 |
280,018円16,747円/坪
|
76万円
|
2025年11月中旬 |
- 物件番号
- 145-00100
- 所在地
- 東京都港区麻布台1-1-2
- 物件番号
- 145-00100
- 竣工年
- 2025年10月
- 所在地
- 東京都港区麻布台1-1-2
- 竣工年
- 2025年10月
- 規模
- 地上64階/地下5階
| 階数 | 面積 | 賃料+共益費 | 保証金 | 入居時期 | 検討 | 図面 | 詳細 |
|---|---|---|---|---|---|---|---|
| 3 | 29.40坪 |
応相談応相談
|
応相談
|
相談 | |||
| 3 | 28.00坪 |
応相談応相談
|
応相談
|
相談 | |||
| 3 | 19.00坪 |
応相談応相談
|
応相談
|
相談 | |||
| 3 | 19.10坪 |
応相談応相談
|
応相談
|
相談 | |||
| 3 | 23.00坪 |
応相談応相談
|
応相談
|
相談 | |||
| 3 | 31.00坪 |
応相談応相談
|
応相談
|
相談 | |||
| 3 | 17.00坪 |
応相談応相談
|
応相談
|
相談 | |||
| 3 | 16.00坪 |
応相談応相談
|
応相談
|
相談 | |||
| 3 | 31.00坪 |
応相談応相談
|
応相談
|
相談 | |||
| 3 | 23.00坪 |
応相談応相談
|
応相談
|
相談 | |||
| 3 | 19.10坪 |
応相談応相談
|
応相談
|
相談 | |||
| 3 | 29.00坪 |
応相談応相談
|
応相談
|
相談 | |||
| 3 | 26.00坪 |
応相談応相談
|
応相談
|
相談 | |||
| 3 | 18.00坪 |
応相談応相談
|
応相談
|
相談 | |||
| 3 | 22.30坪 |
応相談応相談
|
応相談
|
相談 | |||
| 3 | 15.00坪 |
応相談応相談
|
応相談
|
相談 | |||
| 4 | 29.77坪 |
応相談応相談
|
応相談
|
2025年11月上旬 | |||
| 4 | 31.92坪 |
応相談応相談
|
応相談
|
2025年11月上旬 | |||
| 4 | 16.89坪 |
応相談応相談
|
応相談
|
2025年11月上旬 | |||
| 4 | 19.35坪 |
応相談応相談
|
応相談
|
2025年11月上旬 | |||
| 4 | 17.00坪 |
応相談応相談
|
応相談
|
相談 | |||
| 4 | 19.00坪 |
応相談応相談
|
応相談
|
相談 | |||
| 5 | 29.40坪 |
応相談応相談
|
応相談
|
相談 | |||
| 5 | 28.00坪 |
応相談応相談
|
応相談
|
相談 | |||
| 5 | 19.10坪 |
応相談応相談
|
応相談
|
相談 | |||
| 5 | 19.10坪 |
応相談応相談
|
応相談
|
相談 | |||
| 5 | 23.00坪 |
応相談応相談
|
応相談
|
相談 | |||
| 5 | 31.00坪 |
応相談応相談
|
応相談
|
相談 | |||
| 5 | 17.00坪 |
応相談応相談
|
応相談
|
相談 | |||
| 5 | 16.00坪 |
応相談応相談
|
応相談
|
相談 | |||
| 5 | 29.00坪 |
応相談応相談
|
応相談
|
相談 | |||
| 5 | 26.00坪 |
応相談応相談
|
応相談
|
相談 | |||
| 5 | 22.30坪 |
応相談応相談
|
応相談
|
相談 | |||
| 5 | 15.00坪 |
応相談応相談
|
応相談
|
相談 | |||
| 5 | 31.00坪 |
応相談応相談
|
応相談
|
相談 | |||
| 5 | 19.00坪 |
応相談応相談
|
応相談
|
相談 |
空室フロアリスト
| 階数 | 面積 | 賃料+共益費 | 保証金 | 入居時期 | 検討 | 図面 | 詳細 |
|---|---|---|---|---|---|---|---|
| 3 | 29.40坪 |
応相談応相談
|
応相談
|
相談 | |||
| 3 | 28.00坪 |
応相談応相談
|
応相談
|
相談 | |||
| 3 | 19.00坪 |
応相談応相談
|
応相談
|
相談 | |||
| 3 | 19.10坪 |
応相談応相談
|
応相談
|
相談 | |||
| 3 | 23.00坪 |
応相談応相談
|
応相談
|
相談 | |||
| 3 | 31.00坪 |
応相談応相談
|
応相談
|
相談 | |||
| 3 | 17.00坪 |
応相談応相談
|
応相談
|
相談 | |||
| 3 | 16.00坪 |
応相談応相談
|
応相談
|
相談 | |||
| 3 | 31.00坪 |
応相談応相談
|
応相談
|
相談 | |||
| 3 | 23.00坪 |
応相談応相談
|
応相談
|
相談 | |||
| 3 | 19.10坪 |
応相談応相談
|
応相談
|
相談 | |||
| 3 | 29.00坪 |
応相談応相談
|
応相談
|
相談 | |||
| 3 | 26.00坪 |
応相談応相談
|
応相談
|
相談 | |||
| 3 | 18.00坪 |
応相談応相談
|
応相談
|
相談 | |||
| 3 | 22.30坪 |
応相談応相談
|
応相談
|
相談 | |||
| 3 | 15.00坪 |
応相談応相談
|
応相談
|
相談 | |||
| 4 | 29.77坪 |
応相談応相談
|
応相談
|
2025年11月上旬 | |||
| 4 | 31.92坪 |
応相談応相談
|
応相談
|
2025年11月上旬 | |||
| 4 | 16.89坪 |
応相談応相談
|
応相談
|
2025年11月上旬 | |||
| 4 | 19.35坪 |
応相談応相談
|
応相談
|
2025年11月上旬 | |||
| 4 | 17.00坪 |
応相談応相談
|
応相談
|
相談 | |||
| 4 | 19.00坪 |
応相談応相談
|
応相談
|
相談 | |||
| 5 | 29.40坪 |
応相談応相談
|
応相談
|
相談 | |||
| 5 | 28.00坪 |
応相談応相談
|
応相談
|
相談 | |||
| 5 | 19.10坪 |
応相談応相談
|
応相談
|
相談 | |||
| 5 | 19.10坪 |
応相談応相談
|
応相談
|
相談 | |||
| 5 | 23.00坪 |
応相談応相談
|
応相談
|
相談 | |||
| 5 | 31.00坪 |
応相談応相談
|
応相談
|
相談 | |||
| 5 | 17.00坪 |
応相談応相談
|
応相談
|
相談 | |||
| 5 | 16.00坪 |
応相談応相談
|
応相談
|
相談 | |||
| 5 | 29.00坪 |
応相談応相談
|
応相談
|
相談 | |||
| 5 | 26.00坪 |
応相談応相談
|
応相談
|
相談 | |||
| 5 | 22.30坪 |
応相談応相談
|
応相談
|
相談 | |||
| 5 | 15.00坪 |
応相談応相談
|
応相談
|
相談 | |||
| 5 | 31.00坪 |
応相談応相談
|
応相談
|
相談 | |||
| 5 | 19.00坪 |
応相談応相談
|
応相談
|
相談 |
- 物件番号
- 130-00211
- 所在地
- 東京都港区新橋5-25-3
- 物件番号
- 130-00211
- 竣工年
- 1983年10月
- 所在地
- 東京都港区新橋5-25-3
- 竣工年
- 1983年10月
- 規模
- 地上8階
| 階数 | 面積 | 賃料+共益費 | 保証金 | 入居時期 | 検討 | 図面 | 詳細 |
|---|---|---|---|---|---|---|---|
| 6 | 29.71坪 |
528,000円17,772円/坪
|
384万円
|
2026年4月上旬 |
空室フロアリスト
| 階数 | 面積 | 賃料+共益費 | 保証金 | 入居時期 | 検討 | 図面 | 詳細 |
|---|---|---|---|---|---|---|---|
| 6 | 29.71坪 |
528,000円17,772円/坪
|
384万円
|
2026年4月上旬 |
- 物件番号
- 130-00351
- 所在地
- 東京都港区新橋2-12-16
- 物件番号
- 130-00351
- 竣工年
- 1970年1月
- 所在地
- 東京都港区新橋2-12-16
- 竣工年
- 1970年1月
- 規模
- 地上10階/地下1階
| 階数 | 面積 | 賃料+共益費 | 保証金 | 入居時期 | 検討 | 図面 | 詳細 |
|---|---|---|---|---|---|---|---|
| 9 | 15.20坪 |
307,901円20,257円/坪
|
140万円
|
2026年4月下旬 |
空室フロアリスト
| 階数 | 面積 | 賃料+共益費 | 保証金 | 入居時期 | 検討 | 図面 | 詳細 |
|---|---|---|---|---|---|---|---|
| 9 | 15.20坪 |
307,901円20,257円/坪
|
140万円
|
2026年4月下旬 |
- 物件番号
- 132-00067
- 所在地
- 東京都港区西麻布3-24-20
- 物件番号
- 132-00067
- 竣工年
- 1973年11月
- 所在地
- 東京都港区西麻布3-24-20
- 竣工年
- 1973年11月
- 規模
- 地上9階/地下2階
| 階数 | 面積 | 賃料+共益費 | 保証金 | 入居時期 | 検討 | 図面 | 詳細 |
|---|---|---|---|---|---|---|---|
| 2 | 105.89坪 |
応相談応相談
|
応相談
|
2026年3月上旬 |
空室フロアリスト
| 階数 | 面積 | 賃料+共益費 | 保証金 | 入居時期 | 検討 | 図面 | 詳細 |
|---|---|---|---|---|---|---|---|
| 2 | 105.89坪 |
応相談応相談
|
応相談
|
2026年3月上旬 |
- 物件番号
- 137-00602
- 所在地
- 東京都港区南青山2-24-10
- 物件番号
- 137-00602
- 竣工年
- 2003年9月
- 所在地
- 東京都港区南青山2-24-10
- 竣工年
- 2003年9月
- 規模
- 地上8階
| 階数 | 面積 | 賃料+共益費 | 保証金 | 入居時期 | 検討 | 図面 | 詳細 |
|---|---|---|---|---|---|---|---|
| 1 | 36.36坪 |
858,000円23,598円/坪
|
624万円
|
相談 | |||
| 7 | 34.63坪 |
750,200円21,663円/坪
|
409万円
|
即 |
空室フロアリスト
| 階数 | 面積 | 賃料+共益費 | 保証金 | 入居時期 | 検討 | 図面 | 詳細 |
|---|---|---|---|---|---|---|---|
| 1 | 36.36坪 |
858,000円23,598円/坪
|
624万円
|
相談 | |||
| 7 | 34.63坪 |
750,200円21,663円/坪
|
409万円
|
即 |
- 物件番号
- 141-00039
- 所在地
- 東京都港区浜松町1-19-10
- 物件番号
- 141-00039
- 竣工年
- 1987年2月
- 所在地
- 東京都港区浜松町1-19-10
- 竣工年
- 1987年2月
- 規模
- 地上6階
| 階数 | 面積 | 賃料+共益費 | 保証金 | 入居時期 | 検討 | 図面 | 詳細 |
|---|---|---|---|---|---|---|---|
| 4 | 15.17坪 |
233,618円15,400円/坪
|
109万円
|
2026年3月中旬 |
空室フロアリスト
| 階数 | 面積 | 賃料+共益費 | 保証金 | 入居時期 | 検討 | 図面 | 詳細 |
|---|---|---|---|---|---|---|---|
| 4 | 15.17坪 |
233,618円15,400円/坪
|
109万円
|
2026年3月中旬 |
- 物件番号
- 122-00067
- 所在地
- 東京都港区虎ノ門1-1-21
- 物件番号
- 122-00067
- 竣工年
- 1965年6月
- 所在地
- 東京都港区虎ノ門1-1-21
- 竣工年
- 1965年6月
- 規模
- 地上9階/地下3階
| 階数 | 面積 | 賃料+共益費 | 保証金 | 入居時期 | 検討 | 図面 | 詳細 |
|---|---|---|---|---|---|---|---|
| 地下2 | 27.00坪 |
応相談応相談
|
応相談
|
即 | |||
| 地下1 | 54.60坪 |
応相談応相談
|
応相談
|
相談 | |||
| 8 | 96.25坪 |
応相談応相談
|
応相談
|
即 | |||
| 9 | 16.00坪 |
応相談応相談
|
応相談
|
即 | |||
| 9 | 47.00坪 |
応相談応相談
|
応相談
|
即 |
空室フロアリスト
| 階数 | 面積 | 賃料+共益費 | 保証金 | 入居時期 | 検討 | 図面 | 詳細 |
|---|---|---|---|---|---|---|---|
| 地下2 | 27.00坪 |
応相談応相談
|
応相談
|
即 | |||
| 地下1 | 54.60坪 |
応相談応相談
|
応相談
|
相談 | |||
| 8 | 96.25坪 |
応相談応相談
|
応相談
|
即 | |||
| 9 | 16.00坪 |
応相談応相談
|
応相談
|
即 | |||
| 9 | 47.00坪 |
応相談応相談
|
応相談
|
即 |
- 物件番号
- 122-00271
- 所在地
- 東京都港区虎ノ門5-3-14
- 物件番号
- 122-00271
- 竣工年
- 1985年
- 所在地
- 東京都港区虎ノ門5-3-14
- 竣工年
- 1985年
- 規模
- 地上4階/地下1階
| 階数 | 面積 | 賃料+共益費 | 保証金 | 入居時期 | 検討 | 図面 | 詳細 |
|---|---|---|---|---|---|---|---|
| 3 | 17.87坪 |
235,884円13,200円/坪
|
128万円
|
即 |
空室フロアリスト
| 階数 | 面積 | 賃料+共益費 | 保証金 | 入居時期 | 検討 | 図面 | 詳細 |
|---|---|---|---|---|---|---|---|
| 3 | 17.87坪 |
235,884円13,200円/坪
|
128万円
|
即 |
- 物件番号
- 124-00049
- 所在地
- 東京都港区高輪3-19-26
- 物件番号
- 124-00049
- 竣工年
- 2008年11月
- 所在地
- 東京都港区高輪3-19-26
- 竣工年
- 2008年11月
- 規模
- 地上9階
| 階数 | 面積 | 賃料+共益費 | 保証金 | 入居時期 | 検討 | 図面 | 詳細 |
|---|---|---|---|---|---|---|---|
| 4 | 79.46坪 |
2,185,150円27,500円/坪
|
2383万円
|
即 |
空室フロアリスト
| 階数 | 面積 | 賃料+共益費 | 保証金 | 入居時期 | 検討 | 図面 | 詳細 |
|---|---|---|---|---|---|---|---|
| 4 | 79.46坪 |
2,185,150円27,500円/坪
|
2383万円
|
即 |
- 物件番号
- 124-00175
- 所在地
- 東京都港区高輪3-4-1
- 物件番号
- 124-00175
- 竣工年
- 1993年11月
- 所在地
- 東京都港区高輪3-4-1
- 竣工年
- 1993年11月
- 規模
- 地上9階
| 階数 | 面積 | 賃料+共益費 | 保証金 | 入居時期 | 検討 | 図面 | 詳細 |
|---|---|---|---|---|---|---|---|
| 3 | 66.07坪 |
1,162,829円17,600円/坪
|
578万円
|
即 |
空室フロアリスト
| 階数 | 面積 | 賃料+共益費 | 保証金 | 入居時期 | 検討 | 図面 | 詳細 |
|---|---|---|---|---|---|---|---|
| 3 | 66.07坪 |
1,162,829円17,600円/坪
|
578万円
|
即 |
- 物件番号
- 125-00115
- 所在地
- 東京都港区三田2-10-6
- 物件番号
- 125-00115
- 竣工年
- 1991年11月
- 所在地
- 東京都港区三田2-10-6
- 竣工年
- 1991年11月
- 規模
- 地上11階/地下1階
| 階数 | 面積 | 賃料+共益費 | 保証金 | 入居時期 | 検討 | 図面 | 詳細 |
|---|---|---|---|---|---|---|---|
| 7 | 27.03坪 |
490,594円18,150円/坪
|
222万円
|
2026年1月上旬 |
空室フロアリスト
| 階数 | 面積 | 賃料+共益費 | 保証金 | 入居時期 | 検討 | 図面 | 詳細 |
|---|---|---|---|---|---|---|---|
| 7 | 27.03坪 |
490,594円18,150円/坪
|
222万円
|
2026年1月上旬 |
- 物件番号
- 129-00123
- 所在地
- 東京都港区芝大門2-8-9
- 物件番号
- 129-00123
- 竣工年
- 1982年11月
- 所在地
- 東京都港区芝大門2-8-9
- 竣工年
- 1982年11月
- 規模
- 地上5階
| 階数 | 面積 | 賃料+共益費 | 保証金 | 入居時期 | 検討 | 図面 | 詳細 |
|---|---|---|---|---|---|---|---|
| 4-5 | 22.57坪 |
285,197円12,636円/坪
|
74万円
|
即 |
空室フロアリスト
| 階数 | 面積 | 賃料+共益費 | 保証金 | 入居時期 | 検討 | 図面 | 詳細 |
|---|---|---|---|---|---|---|---|
| 4-5 | 22.57坪 |
285,197円12,636円/坪
|
74万円
|
即 |
- 物件番号
- 130-00100
- 所在地
- 東京都港区新橋5-8-3
- 物件番号
- 130-00100
- 竣工年
- 1991年9月
- 所在地
- 東京都港区新橋5-8-3
- 竣工年
- 1991年9月
- 規模
- 地上9階/地下1階
| 階数 | 面積 | 賃料+共益費 | 保証金 | 入居時期 | 検討 | 図面 | 詳細 |
|---|---|---|---|---|---|---|---|
| 4 | 38.61坪 |
637,065円16,500円/坪
|
463万円
|
即 |
空室フロアリスト
| 階数 | 面積 | 賃料+共益費 | 保証金 | 入居時期 | 検討 | 図面 | 詳細 |
|---|---|---|---|---|---|---|---|
| 4 | 38.61坪 |
637,065円16,500円/坪
|
463万円
|
即 |


