芝大門福原ビルの貸事務所・賃貸オフィス情報
芝大門福原ビルの貸事務所・賃貸オフィス情報
芝大門福原ビル
- エレベーター
- 個別空調
- 新耐震基準
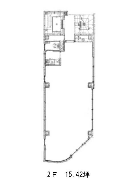
芝大門福原ビルの空室フロアリスト
| 階数 | 面積 | 賃料+共益費 | 保証金 | 入居時期 | 更新料 | 償却費 | 礼金 | 検討 | 平面図 | 詳細 |
|---|---|---|---|---|---|---|---|---|---|---|
| 2 | 15.42坪 |
305,316円19,800円/坪
|
127万円
|
2026年6月上旬 | 新1ケ月 | 1ケ月 | 1ケ月 |
芝大門福原ビルの物件情報
芝大門福原ビル(港区芝大門)は芝公園駅徒歩4分、大門駅徒歩5分、浜松町駅徒歩6分の賃貸オフィスです。
芝大門福原ビルのアクセス
芝大門福原ビルの条件に近い物件
芝大門福原ビルの募集終了区画
| 階数 | 面積 | 賃料+共益費 | 保証金 | 入居時期 | 更新料 | 償却費 | 礼金 | 平面図 | 詳細 |
|---|


