豊島区の貸事務所・賃貸オフィス
豊島区の貸事務所
豊島区の主な貸事務所エリアは、(1)JR山手線・埼京線の他たくさんの地下鉄乗り入れがある池袋駅を中心としたエリア(2)新宿区に隣接し、豊島区の南部に位置する目白駅を中心とした目白・高田エリア(3)豊島区中心よりやや南東のJR山手線の大塚駅周辺のエリア(4)北区及び文京区に隣接した東部の巣鴨・駒込エリアに大別されます。特に豊島区池袋駅は、日本の乗降者数ナンバー2の駅でJR各線および地下鉄各線の乗り入れがされており、東西に百貨店や電気街を形成する活気ある街です。新宿に続き貸事務所としては通常のオフィス利用の他にコールセンターや人材派遣会社様からのご要望の多いエリアでもあります。
- 物件番号
- 798-00083
- 所在地
- 東京都豊島区西池袋1-29-2
- 物件番号
- 798-00083
- 竣工年
- 1973年10月
- 所在地
- 東京都豊島区西池袋1-29-2
- 竣工年
- 1973年10月
- 規模
- 地上12階/地下3階
| 階数 | 面積 | 賃料+共益費 | 保証金 | 入居時期 | 検討 | 図面 | 詳細 |
|---|---|---|---|---|---|---|---|
| 7 | 22.00坪 |
411,400円18,700円/坪
|
308万円
|
相談 |
空室フロアリスト
| 階数 | 面積 | 賃料+共益費 | 保証金 | 入居時期 | 検討 | 図面 | 詳細 |
|---|---|---|---|---|---|---|---|
| 7 | 22.00坪 |
411,400円18,700円/坪
|
308万円
|
相談 |
- 物件番号
- 806-00086
- 所在地
- 東京都豊島区南大塚3-46-5
- 物件番号
- 806-00086
- 竣工年
- 1968年3月
- 所在地
- 東京都豊島区南大塚3-46-5
- 竣工年
- 1968年3月
- 規模
- 地上4階
| 階数 | 面積 | 賃料+共益費 | 保証金 | 入居時期 | 検討 | 図面 | 詳細 |
|---|---|---|---|---|---|---|---|
| 4 | 18.45坪 |
218,313円11,832円/坪
|
60万円
|
2026年4月上旬 |
空室フロアリスト
| 階数 | 面積 | 賃料+共益費 | 保証金 | 入居時期 | 検討 | 図面 | 詳細 |
|---|---|---|---|---|---|---|---|
| 4 | 18.45坪 |
218,313円11,832円/坪
|
60万円
|
2026年4月上旬 |
- 物件番号
- 807-00070
- 所在地
- 東京都豊島区南池袋2-30-11
- 物件番号
- 807-00070
- 竣工年
- 2014年4月
- 所在地
- 東京都豊島区南池袋2-30-11
- 竣工年
- 2014年4月
- 規模
- 地上10階/地下1階
| 階数 | 面積 | 賃料+共益費 | 保証金 | 入居時期 | 検討 | 図面 | 詳細 |
|---|---|---|---|---|---|---|---|
| 1 | 40.73坪 |
応相談応相談
|
応相談
|
2026年8月上旬 |
空室フロアリスト
| 階数 | 面積 | 賃料+共益費 | 保証金 | 入居時期 | 検討 | 図面 | 詳細 |
|---|---|---|---|---|---|---|---|
| 1 | 40.73坪 |
応相談応相談
|
応相談
|
2026年8月上旬 |
- 物件番号
- 794-00003
- 所在地
- 東京都豊島区高田3-11-14
- 物件番号
- 794-00003
- 竣工年
- 1983年1月
- 所在地
- 東京都豊島区高田3-11-14
- 竣工年
- 1983年1月
- 規模
- 地上10階
| 階数 | 面積 | 賃料+共益費 | 保証金 | 入居時期 | 検討 | 図面 | 詳細 |
|---|---|---|---|---|---|---|---|
| 5 | 18.51坪 |
330,000円17,829円/坪
|
87万円
|
相談 |
空室フロアリスト
| 階数 | 面積 | 賃料+共益費 | 保証金 | 入居時期 | 検討 | 図面 | 詳細 |
|---|---|---|---|---|---|---|---|
| 5 | 18.51坪 |
330,000円17,829円/坪
|
87万円
|
相談 |
- 物件番号
- 807-00192
- 所在地
- 東京都豊島区南池袋3-16-10
- 物件番号
- 807-00192
- 竣工年
- 2007年2月
- 所在地
- 東京都豊島区南池袋3-16-10
- 竣工年
- 2007年2月
- 規模
- 地上8階/地下1階
| 階数 | 面積 | 賃料+共益費 | 保証金 | 入居時期 | 検討 | 図面 | 詳細 |
|---|---|---|---|---|---|---|---|
| 7 | 16.48坪 |
299,200円18,156円/坪
|
78万円
|
即 |
空室フロアリスト
| 階数 | 面積 | 賃料+共益費 | 保証金 | 入居時期 | 検討 | 図面 | 詳細 |
|---|---|---|---|---|---|---|---|
| 7 | 16.48坪 |
299,200円18,156円/坪
|
78万円
|
即 |
- 物件番号
- 798-00233
- 所在地
- 東京都豊島区西池袋3-28-4
- 物件番号
- 798-00233
- 竣工年
- 2025年12月
- 所在地
- 東京都豊島区西池袋3-28-4
- 竣工年
- 2025年12月
- 規模
- 地上28階/地下4階
| 階数 | 面積 | 賃料+共益費 | 保証金 | 入居時期 | 検討 | 図面 | 詳細 |
|---|---|---|---|---|---|---|---|
| 8 | 289.00坪 |
応相談応相談
|
応相談
|
即 | |||
| 16 | 97.85坪 |
応相談応相談
|
応相談
|
即 | |||
| 22 | 102.10坪 |
応相談応相談
|
応相談
|
相談 | |||
| 23 | 289.00坪 |
応相談応相談
|
応相談
|
即 | |||
| 24 | 289.00坪 |
応相談応相談
|
応相談
|
即 | |||
| 25 | 289.00坪 |
応相談応相談
|
応相談
|
即 |
空室フロアリスト
| 階数 | 面積 | 賃料+共益費 | 保証金 | 入居時期 | 検討 | 図面 | 詳細 |
|---|---|---|---|---|---|---|---|
| 8 | 289.00坪 |
応相談応相談
|
応相談
|
即 | |||
| 16 | 97.85坪 |
応相談応相談
|
応相談
|
即 | |||
| 22 | 102.10坪 |
応相談応相談
|
応相談
|
相談 | |||
| 23 | 289.00坪 |
応相談応相談
|
応相談
|
即 | |||
| 24 | 289.00坪 |
応相談応相談
|
応相談
|
即 | |||
| 25 | 289.00坪 |
応相談応相談
|
応相談
|
即 |
- 物件番号
- 805-00378
- 所在地
- 東京都豊島区東池袋2-45-9
- 物件番号
- 805-00378
- 竣工年
- 1990年11月
- 所在地
- 東京都豊島区東池袋2-45-9
- 竣工年
- 1990年11月
- 規模
- 地上8階
| 階数 | 面積 | 賃料+共益費 | 保証金 | 入居時期 | 検討 | 図面 | 詳細 |
|---|---|---|---|---|---|---|---|
| 4 | 37.69坪 |
600,000円15,920円/坪
|
300万円
|
即 |
空室フロアリスト
| 階数 | 面積 | 賃料+共益費 | 保証金 | 入居時期 | 検討 | 図面 | 詳細 |
|---|---|---|---|---|---|---|---|
| 4 | 37.69坪 |
600,000円15,920円/坪
|
300万円
|
即 |
- 物件番号
- 805-00435
- 所在地
- 東京都豊島区東池袋2-13-9
- 物件番号
- 805-00435
- 竣工年
- 2026年2月
- 所在地
- 東京都豊島区東池袋2-13-9
- 竣工年
- 2026年2月
- 規模
- 地上8階
| 階数 | 面積 | 賃料+共益費 | 保証金 | 入居時期 | 検討 | 図面 | 詳細 |
|---|---|---|---|---|---|---|---|
| 2 | 16.01坪 |
385,000円24,048円/坪
|
192万円
|
即 | |||
| 3 | 16.01坪 |
352,000円21,986円/坪
|
116万円
|
即 | |||
| 4 | 16.01坪 |
352,000円21,986円/坪
|
116万円
|
即 | |||
| 5 | 16.01坪 |
352,000円21,986円/坪
|
116万円
|
即 | |||
| 6 | 16.01坪 |
352,000円21,986円/坪
|
116万円
|
即 | |||
| 7 | 16.01坪 |
352,000円21,986円/坪
|
116万円
|
即 | |||
| 8 | 16.01坪 |
352,000円21,986円/坪
|
116万円
|
即 |
空室フロアリスト
| 階数 | 面積 | 賃料+共益費 | 保証金 | 入居時期 | 検討 | 図面 | 詳細 |
|---|---|---|---|---|---|---|---|
| 2 | 16.01坪 |
385,000円24,048円/坪
|
192万円
|
即 | |||
| 3 | 16.01坪 |
352,000円21,986円/坪
|
116万円
|
即 | |||
| 4 | 16.01坪 |
352,000円21,986円/坪
|
116万円
|
即 | |||
| 5 | 16.01坪 |
352,000円21,986円/坪
|
116万円
|
即 | |||
| 6 | 16.01坪 |
352,000円21,986円/坪
|
116万円
|
即 | |||
| 7 | 16.01坪 |
352,000円21,986円/坪
|
116万円
|
即 | |||
| 8 | 16.01坪 |
352,000円21,986円/坪
|
116万円
|
即 |
- 物件番号
- 796-00002
- 所在地
- 東京都豊島区上池袋4-1-1
- 物件番号
- 796-00002
- 竣工年
- 1993年7月
- 所在地
- 東京都豊島区上池袋4-1-1
- 竣工年
- 1993年7月
- 規模
- 地上12階/地下2階
| 階数 | 面積 | 賃料+共益費 | 保証金 | 入居時期 | 検討 | 図面 | 詳細 |
|---|---|---|---|---|---|---|---|
| 7 | 33.29坪 |
462,006円13,878円/坪
|
228万円
|
2026年8月上旬 |
空室フロアリスト
| 階数 | 面積 | 賃料+共益費 | 保証金 | 入居時期 | 検討 | 図面 | 詳細 |
|---|---|---|---|---|---|---|---|
| 7 | 33.29坪 |
462,006円13,878円/坪
|
228万円
|
2026年8月上旬 |
- 物件番号
- 805-00148
- 所在地
- 東京都豊島区東池袋1-10-1
- 物件番号
- 805-00148
- 竣工年
- 1987年1月
- 所在地
- 東京都豊島区東池袋1-10-1
- 竣工年
- 1987年1月
- 規模
- 地上9階/地下2階
| 階数 | 面積 | 賃料+共益費 | 保証金 | 入居時期 | 検討 | 図面 | 詳細 |
|---|---|---|---|---|---|---|---|
| 3 | 75.12坪 |
応相談応相談
|
応相談
|
即 | |||
| 8 | 80.79坪 |
応相談応相談
|
応相談
|
即 | |||
| 9 | 240.34坪 |
応相談応相談
|
応相談
|
即 |
空室フロアリスト
| 階数 | 面積 | 賃料+共益費 | 保証金 | 入居時期 | 検討 | 図面 | 詳細 |
|---|---|---|---|---|---|---|---|
| 3 | 75.12坪 |
応相談応相談
|
応相談
|
即 | |||
| 8 | 80.79坪 |
応相談応相談
|
応相談
|
即 | |||
| 9 | 240.34坪 |
応相談応相談
|
応相談
|
即 |
- 物件番号
- 807-00295
- 所在地
- 東京都豊島区南池袋2-17-7
- 物件番号
- 807-00295
- 竣工年
- 2025年7月
- 所在地
- 東京都豊島区南池袋2-17-7
- 竣工年
- 2025年7月
- 規模
- 地上13階
| 階数 | 面積 | 賃料+共益費 | 保証金 | 入居時期 | 検討 | 図面 | 詳細 |
|---|---|---|---|---|---|---|---|
| 2 | 50.12坪 |
4,686,220円93,500円/坪
|
応相談
|
相談 | |||
| 3 | 69.50坪 |
5,325,735円76,629円/坪
|
応相談
|
相談 | |||
| 6 | 71.88坪 |
2,609,244円36,300円/坪
|
応相談
|
相談 | |||
| 10 | 71.88坪 |
2,609,244円36,300円/坪
|
応相談
|
相談 | |||
| 11 | 71.88坪 |
2,609,244円36,300円/坪
|
応相談
|
相談 |
空室フロアリスト
| 階数 | 面積 | 賃料+共益費 | 保証金 | 入居時期 | 検討 | 図面 | 詳細 |
|---|---|---|---|---|---|---|---|
| 2 | 50.12坪 |
4,686,220円93,500円/坪
|
応相談
|
相談 | |||
| 3 | 69.50坪 |
5,325,735円76,629円/坪
|
応相談
|
相談 | |||
| 6 | 71.88坪 |
2,609,244円36,300円/坪
|
応相談
|
相談 | |||
| 10 | 71.88坪 |
2,609,244円36,300円/坪
|
応相談
|
相談 | |||
| 11 | 71.88坪 |
2,609,244円36,300円/坪
|
応相談
|
相談 |
- 物件番号
- 808-00046
- 所在地
- 東京都豊島区南長崎5-1-30
- 物件番号
- 808-00046
- 竣工年
- 1994年4月
- 所在地
- 東京都豊島区南長崎5-1-30
- 竣工年
- 1994年4月
- 規模
- 地上5階
| 階数 | 面積 | 賃料+共益費 | 保証金 | 入居時期 | 検討 | 図面 | 詳細 |
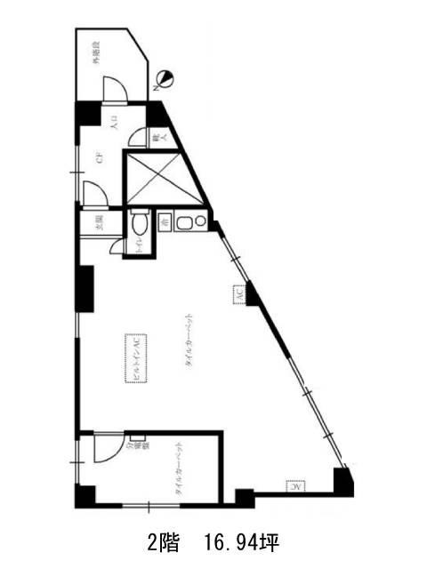
|---|---|---|---|---|---|---|---|
| 2 | 16.94坪 |
165,000円9,740円/坪
|
30万円
|
即 |
空室フロアリスト
| 階数 | 面積 | 賃料+共益費 | 保証金 | 入居時期 | 検討 | 図面 | 詳細 |
|---|---|---|---|---|---|---|---|
| 2 | 16.94坪 |
165,000円9,740円/坪
|
30万円
|
即 |
- 物件番号
- 804-00037
- 所在地
- 東京都豊島区長崎1-17-8
- 物件番号
- 804-00037
- 竣工年
- 2004年8月
- 所在地
- 東京都豊島区長崎1-17-8
- 竣工年
- 2004年8月
- 規模
- 地上5階
| 階数 | 面積 | 賃料+共益費 | 保証金 | 入居時期 | 検討 | 図面 | 詳細 |
|---|---|---|---|---|---|---|---|
| 1-5F | 75.90坪 |
850,012円11,199円/坪
|
363万円
|
即 |
空室フロアリスト
| 階数 | 面積 | 賃料+共益費 | 保証金 | 入居時期 | 検討 | 図面 | 詳細 |
|---|---|---|---|---|---|---|---|
| 1-5F | 75.90坪 |
850,012円11,199円/坪
|
363万円
|
即 |
- 物件番号
- 810-00066
- 所在地
- 東京都豊島区目白4-1-20
- 物件番号
- 810-00066
- 竣工年
- 1974年1月
- 所在地
- 東京都豊島区目白4-1-20
- 竣工年
- 1974年1月
- 規模
- 地上3階/地下1階
| 階数 | 面積 | 賃料+共益費 | 保証金 | 入居時期 | 検討 | 図面 | 詳細 |
|---|---|---|---|---|---|---|---|
| 1 | 19.00坪 |
350,000円18,421円/坪
|
92万円
|
2026年4月上旬 |
空室フロアリスト
| 階数 | 面積 | 賃料+共益費 | 保証金 | 入居時期 | 検討 | 図面 | 詳細 |
|---|---|---|---|---|---|---|---|
| 1 | 19.00坪 |
350,000円18,421円/坪
|
92万円
|
2026年4月上旬 |
- 物件番号
- 802-00084
- 所在地
- 東京都豊島区池袋2-60-6
- 物件番号
- 802-00084
- 竣工年
- 1985年10月
- 所在地
- 東京都豊島区池袋2-60-6
- 竣工年
- 1985年10月
- 規模
- 地上12階
| 階数 | 面積 | 賃料+共益費 | 保証金 | 入居時期 | 検討 | 図面 | 詳細 |
|---|---|---|---|---|---|---|---|
| 8 | 20.53坪 |
275,000円13,395円/坪
|
50万円
|
即 |
空室フロアリスト
| 階数 | 面積 | 賃料+共益費 | 保証金 | 入居時期 | 検討 | 図面 | 詳細 |
|---|---|---|---|---|---|---|---|
| 8 | 20.53坪 |
275,000円13,395円/坪
|
50万円
|
即 |
- 物件番号
- 807-00044
- 所在地
- 東京都豊島区南池袋2-5-2
- 物件番号
- 807-00044
- 竣工年
- 1990年7月
- 所在地
- 東京都豊島区南池袋2-5-2
- 竣工年
- 1990年7月
- 規模
- 地上5階/地下1階
| 階数 | 面積 | 賃料+共益費 | 保証金 | 入居時期 | 検討 | 図面 | 詳細 |
|---|---|---|---|---|---|---|---|
| 1 | 30.51坪 |
935,000円30,646円/坪
|
510万円
|
2026年2月中旬 | |||
| 1 | 22.57坪 |
770,000円34,116円/坪
|
420万円
|
2026年2月中旬 | |||
| 3 | 20.88坪 |
応相談応相談
|
応相談
|
2026年2月中旬 | |||
| 3 | 18.28坪 |
応相談応相談
|
応相談
|
2026年2月中旬 | |||
| 4 | 43.48坪 |
応相談応相談
|
応相談
|
2026年2月中旬 |
空室フロアリスト
| 階数 | 面積 | 賃料+共益費 | 保証金 | 入居時期 | 検討 | 図面 | 詳細 |
|---|---|---|---|---|---|---|---|
| 1 | 30.51坪 |
935,000円30,646円/坪
|
510万円
|
2026年2月中旬 | |||
| 1 | 22.57坪 |
770,000円34,116円/坪
|
420万円
|
2026年2月中旬 | |||
| 3 | 20.88坪 |
応相談応相談
|
応相談
|
2026年2月中旬 | |||
| 3 | 18.28坪 |
応相談応相談
|
応相談
|
2026年2月中旬 | |||
| 4 | 43.48坪 |
応相談応相談
|
応相談
|
2026年2月中旬 |
- 物件番号
- 805-00174
- 所在地
- 東京都豊島区東池袋1-25-9
- 物件番号
- 805-00174
- 竣工年
- 1983年5月
- 所在地
- 東京都豊島区東池袋1-25-9
- 竣工年
- 1983年5月
- 規模
- 地上9階/地下1階
| 階数 | 面積 | 賃料+共益費 | 保証金 | 入居時期 | 検討 | 図面 | 詳細 |
|---|---|---|---|---|---|---|---|
| 6 | 50.22坪 |
950,162円18,920円/坪
|
753万円
|
即 |
空室フロアリスト
| 階数 | 面積 | 賃料+共益費 | 保証金 | 入居時期 | 検討 | 図面 | 詳細 |
|---|---|---|---|---|---|---|---|
| 6 | 50.22坪 |
950,162円18,920円/坪
|
753万円
|
即 |
- 物件番号
- 802-00160
- 所在地
- 東京都豊島区池袋2-67-1
- 物件番号
- 802-00160
- 竣工年
- 1984年11月
- 所在地
- 東京都豊島区池袋2-67-1
- 竣工年
- 1984年11月
- 規模
- 地上12階
| 階数 | 面積 | 賃料+共益費 | 保証金 | 入居時期 | 検討 | 図面 | 詳細 |
|---|---|---|---|---|---|---|---|
| 3 | 15.61坪 |
220,013円14,094円/坪
|
73万円
|
即 | |||
| 4 | 16.73坪 |
231,000円13,808円/坪
|
77万円
|
即 | |||
| 4 | 15.61坪 |
220,012円14,094円/坪
|
73万円
|
即 |
空室フロアリスト
| 階数 | 面積 | 賃料+共益費 | 保証金 | 入居時期 | 検討 | 図面 | 詳細 |
|---|---|---|---|---|---|---|---|
| 3 | 15.61坪 |
220,013円14,094円/坪
|
73万円
|
即 | |||
| 4 | 16.73坪 |
231,000円13,808円/坪
|
77万円
|
即 | |||
| 4 | 15.61坪 |
220,012円14,094円/坪
|
73万円
|
即 |
- 物件番号
- 805-00096
- 所在地
- 東京都豊島区東池袋3-1-1
- 物件番号
- 805-00096
- 竣工年
- 1978年4月
- 所在地
- 東京都豊島区東池袋3-1-1
- 竣工年
- 1978年4月
- 規模
- 地上60階/地下4階
| 階数 | 面積 | 賃料+共益費 | 保証金 | 入居時期 | 検討 | 図面 | 詳細 |
|---|---|---|---|---|---|---|---|
| 20 | 293.97坪 |
応相談応相談
|
応相談
|
即 |
空室フロアリスト
| 階数 | 面積 | 賃料+共益費 | 保証金 | 入居時期 | 検討 | 図面 | 詳細 |
|---|---|---|---|---|---|---|---|
| 20 | 293.97坪 |
応相談応相談
|
応相談
|
即 |
- 物件番号
- 806-00018
- 所在地
- 東京都豊島区南大塚2-25-15
- 物件番号
- 806-00018
- 竣工年
- 1993年7月
- 所在地
- 東京都豊島区南大塚2-25-15
- 竣工年
- 1993年7月
- 規模
- 地上12階/地下1階
| 階数 | 面積 | 賃料+共益費 | 保証金 | 入居時期 | 検討 | 図面 | 詳細 |
|---|---|---|---|---|---|---|---|
| 2 | 183.09坪 |
応相談応相談
|
応相談
|
即 | |||
| 5 | 106.38坪 |
応相談応相談
|
応相談
|
2026年7月下旬 | |||
| 8 | 106.38坪 |
応相談応相談
|
応相談
|
2026年7月上旬 |
空室フロアリスト
| 階数 | 面積 | 賃料+共益費 | 保証金 | 入居時期 | 検討 | 図面 | 詳細 |
|---|---|---|---|---|---|---|---|
| 2 | 183.09坪 |
応相談応相談
|
応相談
|
即 | |||
| 5 | 106.38坪 |
応相談応相談
|
応相談
|
2026年7月下旬 | |||
| 8 | 106.38坪 |
応相談応相談
|
応相談
|
2026年7月上旬 |
- 物件番号
- 801-00021
- 所在地
- 東京都豊島区巣鴨3-25-2
- 物件番号
- 801-00021
- 竣工年
- 1991年7月
- 所在地
- 東京都豊島区巣鴨3-25-2
- 竣工年
- 1991年7月
- 規模
- 地上7階
| 階数 | 面積 | 賃料+共益費 | 保証金 | 入居時期 | 検討 | 図面 | 詳細 |
|---|---|---|---|---|---|---|---|
| 3 | 27.45坪 |
346,500円12,623円/坪
|
116万円
|
相談 | |||
| 5 | 27.43坪 |
357,500円13,033円/坪
|
116万円
|
相談 |
空室フロアリスト
| 階数 | 面積 | 賃料+共益費 | 保証金 | 入居時期 | 検討 | 図面 | 詳細 |
|---|---|---|---|---|---|---|---|
| 3 | 27.45坪 |
346,500円12,623円/坪
|
116万円
|
相談 | |||
| 5 | 27.43坪 |
357,500円13,033円/坪
|
116万円
|
相談 |
- 物件番号
- 805-00348
- 所在地
- 東京都豊島区東池袋1-2-11
- 物件番号
- 805-00348
- 竣工年
- 1969年9月
- 所在地
- 東京都豊島区東池袋1-2-11
- 竣工年
- 1969年9月
- 規模
- 地上4階
| 階数 | 面積 | 賃料+共益費 | 保証金 | 入居時期 | 検討 | 図面 | 詳細 |
|---|---|---|---|---|---|---|---|
| 4 | 15.07坪 |
539,000円35,767円/坪
|
384万円
|
即 |
空室フロアリスト
| 階数 | 面積 | 賃料+共益費 | 保証金 | 入居時期 | 検討 | 図面 | 詳細 |
|---|---|---|---|---|---|---|---|
| 4 | 15.07坪 |
539,000円35,767円/坪
|
384万円
|
即 |
- 物件番号
- 807-00205
- 所在地
- 東京都豊島区南池袋1-20-9
- 物件番号
- 807-00205
- 竣工年
- 1963年1月
- 所在地
- 東京都豊島区南池袋1-20-9
- 竣工年
- 1963年1月
- 規模
- 地上7階
| 階数 | 面積 | 賃料+共益費 | 保証金 | 入居時期 | 検討 | 図面 | 詳細 |
|---|---|---|---|---|---|---|---|
| 6 | 35.00坪 |
712,250円20,350円/坪
|
770万円
|
即 |
空室フロアリスト
| 階数 | 面積 | 賃料+共益費 | 保証金 | 入居時期 | 検討 | 図面 | 詳細 |
|---|---|---|---|---|---|---|---|
| 6 | 35.00坪 |
712,250円20,350円/坪
|
770万円
|
即 |
- 物件番号
- 801-00188
- 所在地
- 東京都豊島区巣鴨1-18-10
- 物件番号
- 801-00188
- 竣工年
- 1974年3月
- 所在地
- 東京都豊島区巣鴨1-18-10
- 竣工年
- 1974年3月
- 規模
- 地上8階/地下1階
| 階数 | 面積 | 賃料+共益費 | 保証金 | 入居時期 | 検討 | 図面 | 詳細 |
|---|---|---|---|---|---|---|---|
| 6 | 48.39坪 |
633,600円13,094円/坪
|
192万円
|
即 |
空室フロアリスト
| 階数 | 面積 | 賃料+共益費 | 保証金 | 入居時期 | 検討 | 図面 | 詳細 |
|---|---|---|---|---|---|---|---|
| 6 | 48.39坪 |
633,600円13,094円/坪
|
192万円
|
即 |
- 物件番号
- 805-00289
- 所在地
- 東京都豊島区東池袋2-62-10
- 物件番号
- 805-00289
- 竣工年
- 2006年3月
- 所在地
- 東京都豊島区東池袋2-62-10
- 竣工年
- 2006年3月
- 規模
- 地上12階
| 階数 | 面積 | 賃料+共益費 | 保証金 | 入居時期 | 検討 | 図面 | 詳細 |
|---|---|---|---|---|---|---|---|
| 6 | 16.02坪 |
319,000円19,913円/坪
|
232万円
|
2026年7月下旬 | |||
| 10 | 16.02坪 |
330,000円20,599円/坪
|
240万円
|
2026年4月上旬 |
空室フロアリスト
| 階数 | 面積 | 賃料+共益費 | 保証金 | 入居時期 | 検討 | 図面 | 詳細 |
|---|---|---|---|---|---|---|---|
| 6 | 16.02坪 |
319,000円19,913円/坪
|
232万円
|
2026年7月下旬 | |||
| 10 | 16.02坪 |
330,000円20,599円/坪
|
240万円
|
2026年4月上旬 |
- 物件番号
- 810-00068
- 所在地
- 東京都豊島区目白1-7-13
- 物件番号
- 810-00068
- 竣工年
- 2006年4月
- 所在地
- 東京都豊島区目白1-7-13
- 竣工年
- 2006年4月
- 規模
- 地上7階
| 階数 | 面積 | 賃料+共益費 | 保証金 | 入居時期 | 検討 | 図面 | 詳細 |
|---|---|---|---|---|---|---|---|
| 3 | 22.25坪 |
385,000円17,304円/坪
|
93万円
|
即 | |||
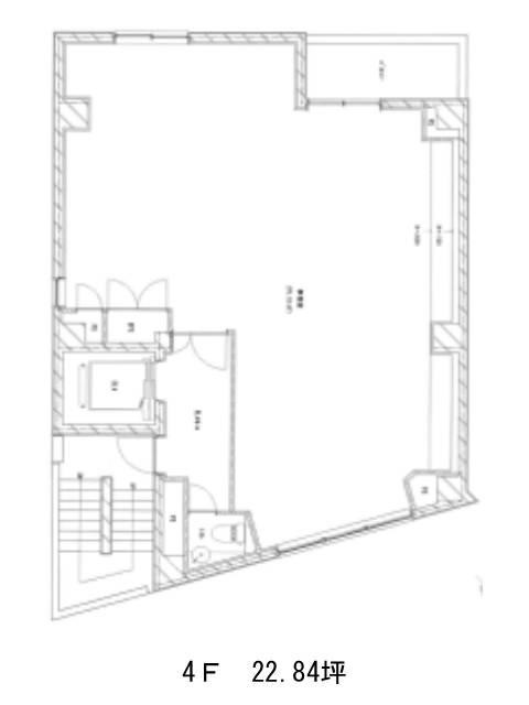
| 4 | 22.84坪 |
385,000円16,857円/坪
|
93万円
|
即 |
空室フロアリスト
| 階数 | 面積 | 賃料+共益費 | 保証金 | 入居時期 | 検討 | 図面 | 詳細 |
|---|---|---|---|---|---|---|---|
| 3 | 22.25坪 |
385,000円17,304円/坪
|
93万円
|
即 | |||
| 4 | 22.84坪 |
385,000円16,857円/坪
|
93万円
|
即 |
- 物件番号
- 801-00070
- 所在地
- 東京都豊島区巣鴨1-48-3
- 物件番号
- 801-00070
- 竣工年
- 1980年4月
- 所在地
- 東京都豊島区巣鴨1-48-3
- 竣工年
- 1980年4月
- 規模
- 地上4階
| 階数 | 面積 | 賃料+共益費 | 保証金 | 入居時期 | 検討 | 図面 | 詳細 |
|---|---|---|---|---|---|---|---|
| 2 | 21.29坪 |
214,500円10,076円/坪
|
76万円
|
即 | |||
| 3 | 16.00坪 |
165,000円10,313円/坪
|
58万円
|
即 |
空室フロアリスト
| 階数 | 面積 | 賃料+共益費 | 保証金 | 入居時期 | 検討 | 図面 | 詳細 |
|---|---|---|---|---|---|---|---|
| 2 | 21.29坪 |
214,500円10,076円/坪
|
76万円
|
即 | |||
| 3 | 16.00坪 |
165,000円10,313円/坪
|
58万円
|
即 |
- 物件番号
- 802-00001
- 所在地
- 東京都豊島区池袋2-52-8
- 物件番号
- 802-00001
- 竣工年
- 1991年6月
- 所在地
- 東京都豊島区池袋2-52-8
- 竣工年
- 1991年6月
- 規模
- 地上9階/地下2階
| 階数 | 面積 | 賃料+共益費 | 保証金 | 入居時期 | 検討 | 図面 | 詳細 |
|---|---|---|---|---|---|---|---|
| 2 | 138.70坪 |
応相談応相談
|
応相談
|
即 | |||
| 6 | 102.00坪 |
応相談応相談
|
応相談
|
即 |
空室フロアリスト
| 階数 | 面積 | 賃料+共益費 | 保証金 | 入居時期 | 検討 | 図面 | 詳細 |
|---|---|---|---|---|---|---|---|
| 2 | 138.70坪 |
応相談応相談
|
応相談
|
即 | |||
| 6 | 102.00坪 |
応相談応相談
|
応相談
|
即 |
- 物件番号
- 806-00251
- 所在地
- 東京都豊島区南大塚2-35-11
- 物件番号
- 806-00251
- 竣工年
- 2024年4月
- 所在地
- 東京都豊島区南大塚2-35-11
- 竣工年
- 2024年4月
- 規模
- 地上5階
| 階数 | 面積 | 賃料+共益費 | 保証金 | 入居時期 | 検討 | 図面 | 詳細 |
|---|---|---|---|---|---|---|---|
| 10 | 19.06坪 |
401,520円21,066円/坪
|
103万円
|
即 |
空室フロアリスト
| 階数 | 面積 | 賃料+共益費 | 保証金 | 入居時期 | 検討 | 図面 | 詳細 |
|---|---|---|---|---|---|---|---|
| 10 | 19.06坪 |
401,520円21,066円/坪
|
103万円
|
即 |
- 物件番号
- 807-00045
- 所在地
- 東京都豊島区南池袋2-29-10
- 物件番号
- 807-00045
- 竣工年
- 1973年4月
- 所在地
- 東京都豊島区南池袋2-29-10
- 竣工年
- 1973年4月
- 規模
- 地上10階
| 階数 | 面積 | 賃料+共益費 | 保証金 | 入居時期 | 検討 | 図面 | 詳細 |
|---|---|---|---|---|---|---|---|
| 9 | 28.01坪 |
431,200円15,394円/坪
|
235万円
|
相談 |
空室フロアリスト
| 階数 | 面積 | 賃料+共益費 | 保証金 | 入居時期 | 検討 | 図面 | 詳細 |
|---|---|---|---|---|---|---|---|
| 9 | 28.01坪 |
431,200円15,394円/坪
|
235万円
|
相談 |


