浅草橋駅の貸事務所・賃貸オフィス
浅草橋駅(総武線)の基本情報
浅草橋駅と言えば「久月」や「吉徳」などの人形問屋が有名で、貸事務所や賃貸オフィスのメイン通りである江戸通り(国道6号線)にも多くの問屋さんがあります。台東区では上野・御徒町についで浅草橋周辺が第二の貸事務所エリアとなります。周辺では賃貸面積が50坪以下のオフィスビルが75%前後になっており、比較的中小規模について選択肢の多い駅です。100坪を超える物件が少ないエリアなので、大型物件をお探しでしたらある程度早めに動くのが良いでしょう。
- 物件番号
- 560-00026
- 所在地
- 東京都台東区蔵前2-6-4
- 物件番号
- 560-00026
- 竣工年
- 1989年5月
- 所在地
- 東京都台東区蔵前2-6-4
- 竣工年
- 1989年5月
- 規模
- 地上9階/地下1階
| 階数 | 面積 | 賃料+共益費 | 保証金 | 入居時期 | 検討 | 図面 | 詳細 |
|---|---|---|---|---|---|---|---|
| 2 | 134.09坪 |
2,654,982円19,800円/坪
|
2413万円
|
2026年10月 |
空室フロアリスト
| 階数 | 面積 | 賃料+共益費 | 保証金 | 入居時期 | 検討 | 図面 | 詳細 |
|---|---|---|---|---|---|---|---|
| 2 | 134.09坪 |
2,654,982円19,800円/坪
|
2413万円
|
2026年10月 |
- 物件番号
- 655-00094
- 所在地
- 東京都中央区日本橋馬喰町1-6-8
- 物件番号
- 655-00094
- 竣工年
- 1995年3月
- 所在地
- 東京都中央区日本橋馬喰町1-6-8
- 竣工年
- 1995年3月
- 規模
- 地上9階
| 階数 | 面積 | 賃料+共益費 | 保証金 | 入居時期 | 検討 | 図面 | 詳細 |
|---|---|---|---|---|---|---|---|
| 7 | 33.86坪 |
521,444円15,400円/坪
|
325万円
|
2026年5月中旬 |
空室フロアリスト
| 階数 | 面積 | 賃料+共益費 | 保証金 | 入居時期 | 検討 | 図面 | 詳細 |
|---|---|---|---|---|---|---|---|
| 7 | 33.86坪 |
521,444円15,400円/坪
|
325万円
|
2026年5月中旬 |
- 物件番号
- 845-00026
- 所在地
- 東京都墨田区亀沢1-8-13
- 物件番号
- 845-00026
- 竣工年
- 1976年4月
- 所在地
- 東京都墨田区亀沢1-8-13
- 竣工年
- 1976年4月
- 規模
- 地上4階
| 階数 | 面積 | 賃料+共益費 | 保証金 | 入居時期 | 検討 | 図面 | 詳細 |
|---|---|---|---|---|---|---|---|
| 1-4F | 123.10坪 |
1,375,089円11,170円/坪
|
625万円
|
相談 | |||
| 1-3F | 90.40坪 |
891,082円9,857円/坪
|
405万円
|
相談 |
空室フロアリスト
| 階数 | 面積 | 賃料+共益費 | 保証金 | 入居時期 | 検討 | 図面 | 詳細 |
|---|---|---|---|---|---|---|---|
| 1-4F | 123.10坪 |
1,375,089円11,170円/坪
|
625万円
|
相談 | |||
| 1-3F | 90.40坪 |
891,082円9,857円/坪
|
405万円
|
相談 |
- 物件番号
- 866-00055
- 所在地
- 東京都墨田区両国2-13-8
- 物件番号
- 866-00055
- 竣工年
- 1995年5月
- 所在地
- 東京都墨田区両国2-13-8
- 竣工年
- 1995年5月
- 規模
- 地上8階
| 階数 | 面積 | 賃料+共益費 | 保証金 | 入居時期 | 検討 | 図面 | 詳細 |
|---|---|---|---|---|---|---|---|
| 6 | 23.82坪 |
471,636円19,800円/坪
|
257万円
|
2026年7月上旬 |
空室フロアリスト
| 階数 | 面積 | 賃料+共益費 | 保証金 | 入居時期 | 検討 | 図面 | 詳細 |
|---|---|---|---|---|---|---|---|
| 6 | 23.82坪 |
471,636円19,800円/坪
|
257万円
|
2026年7月上旬 |
- 物件番号
- 866-00236
- 所在地
- 東京都墨田区両国4-27-8
- 物件番号
- 866-00236
- 竣工年
- 2008年7月
- 所在地
- 東京都墨田区両国4-27-8
- 竣工年
- 2008年7月
- 規模
- 地上5階
| 階数 | 面積 | 賃料+共益費 | 保証金 | 入居時期 | 検討 | 図面 | 詳細 |
|---|---|---|---|---|---|---|---|
| 4 | 45.58坪 |
802,208円17,600円/坪
|
437万円
|
即 | |||
| 5 | 45.58坪 |
802,208円17,600円/坪
|
437万円
|
即 |
空室フロアリスト
| 階数 | 面積 | 賃料+共益費 | 保証金 | 入居時期 | 検討 | 図面 | 詳細 |
|---|---|---|---|---|---|---|---|
| 4 | 45.58坪 |
802,208円17,600円/坪
|
437万円
|
即 | |||
| 5 | 45.58坪 |
802,208円17,600円/坪
|
437万円
|
即 |
- 物件番号
- 642-00121
- 所在地
- 東京都中央区東日本橋2-18-6
- 物件番号
- 642-00121
- 竣工年
- 1989年11月
- 所在地
- 東京都中央区東日本橋2-18-6
- 竣工年
- 1989年11月
- 規模
- 地上6階/地下1階
| 階数 | 面積 | 賃料+共益費 | 保証金 | 入居時期 | 検討 | 図面 | 詳細 |
|---|---|---|---|---|---|---|---|
| 6 | 16.14坪 |
230,802円14,300円/坪
|
125万円
|
即 |
空室フロアリスト
| 階数 | 面積 | 賃料+共益費 | 保証金 | 入居時期 | 検討 | 図面 | 詳細 |
|---|---|---|---|---|---|---|---|
| 6 | 16.14坪 |
230,802円14,300円/坪
|
125万円
|
即 |
- 物件番号
- 644-00025
- 所在地
- 東京都中央区日本橋横山町9-13
- 物件番号
- 644-00025
- 竣工年
- 1991年3月
- 所在地
- 東京都中央区日本橋横山町9-13
- 竣工年
- 1991年3月
- 規模
- 地上9階
| 階数 | 面積 | 賃料+共益費 | 保証金 | 入居時期 | 検討 | 図面 | 詳細 |
|---|---|---|---|---|---|---|---|
| 6 | 25.00坪 |
330,000円13,200円/坪
|
150万円
|
2026年8月上旬 |
空室フロアリスト
| 階数 | 面積 | 賃料+共益費 | 保証金 | 入居時期 | 検討 | 図面 | 詳細 |
|---|---|---|---|---|---|---|---|
| 6 | 25.00坪 |
330,000円13,200円/坪
|
150万円
|
2026年8月上旬 |
- 物件番号
- 642-00302
- 所在地
- 東京都中央区東日本橋2-22-1
- 物件番号
- 642-00302
- 竣工年
- 2021年4月
- 所在地
- 東京都中央区東日本橋2-22-1
- 竣工年
- 2021年4月
- 規模
- 地上8階
| 階数 | 面積 | 賃料+共益費 | 保証金 | 入居時期 | 検討 | 図面 | 詳細 |
|---|---|---|---|---|---|---|---|
| 1 | 48.56坪 |
応相談応相談
|
応相談
|
2026年6月上旬 |
空室フロアリスト
| 階数 | 面積 | 賃料+共益費 | 保証金 | 入居時期 | 検討 | 図面 | 詳細 |
|---|---|---|---|---|---|---|---|
| 1 | 48.56坪 |
応相談応相談
|
応相談
|
2026年6月上旬 |
- 物件番号
- 642-00014
- 所在地
- 東京都中央区東日本橋2-16-4
- 物件番号
- 642-00014
- 竣工年
- 1987年9月
- 所在地
- 東京都中央区東日本橋2-16-4
- 竣工年
- 1987年9月
- 規模
- 地上10階
| 階数 | 面積 | 賃料+共益費 | 保証金 | 入居時期 | 検討 | 図面 | 詳細 |
|---|---|---|---|---|---|---|---|
| 5 | 28.07坪 |
416,839円14,850円/坪
|
185万円
|
2026年7月下旬 |
空室フロアリスト
| 階数 | 面積 | 賃料+共益費 | 保証金 | 入居時期 | 検討 | 図面 | 詳細 |
|---|---|---|---|---|---|---|---|
| 5 | 28.07坪 |
416,839円14,850円/坪
|
185万円
|
2026年7月下旬 |
- 物件番号
- 655-00009
- 所在地
- 東京都中央区日本橋馬喰町2-3-2
- 物件番号
- 655-00009
- 竣工年
- 1982年11月
- 所在地
- 東京都中央区日本橋馬喰町2-3-2
- 竣工年
- 1982年11月
- 規模
- 地上10階/地下1階
| 階数 | 面積 | 賃料+共益費 | 保証金 | 入居時期 | 検討 | 図面 | 詳細 |
|---|---|---|---|---|---|---|---|
| 6 | 94.34坪 |
1,660,384円17,600円/坪
|
1509万円
|
即 | |||
| 8 | 94.48坪 |
1,662,848円17,600円/坪
|
1511万円
|
即 | |||
| 9 | 94.48坪 |
1,662,848円17,600円/坪
|
1511万円
|
即 |
空室フロアリスト
| 階数 | 面積 | 賃料+共益費 | 保証金 | 入居時期 | 検討 | 図面 | 詳細 |
|---|---|---|---|---|---|---|---|
| 6 | 94.34坪 |
1,660,384円17,600円/坪
|
1509万円
|
即 | |||
| 8 | 94.48坪 |
1,662,848円17,600円/坪
|
1511万円
|
即 | |||
| 9 | 94.48坪 |
1,662,848円17,600円/坪
|
1511万円
|
即 |
- 物件番号
- 421-00053
- 所在地
- 東京都千代田区東神田2-5-12
- 物件番号
- 421-00053
- 竣工年
- 1991年11月
- 所在地
- 東京都千代田区東神田2-5-12
- 竣工年
- 1991年11月
- 規模
- 地上9階/地下1階
| 階数 | 面積 | 賃料+共益費 | 保証金 | 入居時期 | 検討 | 図面 | 詳細 |
|---|---|---|---|---|---|---|---|
| 7 | 85.99坪 |
応相談応相談
|
応相談
|
2026年10月上旬 |
空室フロアリスト
| 階数 | 面積 | 賃料+共益費 | 保証金 | 入居時期 | 検討 | 図面 | 詳細 |
|---|---|---|---|---|---|---|---|
| 7 | 85.99坪 |
応相談応相談
|
応相談
|
2026年10月上旬 |
- 物件番号
- 866-00085
- 所在地
- 東京都墨田区両国2-6-12
- 物件番号
- 866-00085
- 竣工年
- 1988年12月
- 所在地
- 東京都墨田区両国2-6-12
- 竣工年
- 1988年12月
- 規模
- 地上7階
| 階数 | 面積 | 賃料+共益費 | 保証金 | 入居時期 | 検討 | 図面 | 詳細 |
|---|---|---|---|---|---|---|---|
| 2 | 35.86坪 |
429,000円11,964円/坪
|
144万円
|
2026年7月中旬 |
空室フロアリスト
| 階数 | 面積 | 賃料+共益費 | 保証金 | 入居時期 | 検討 | 図面 | 詳細 |
|---|---|---|---|---|---|---|---|
| 2 | 35.86坪 |
429,000円11,964円/坪
|
144万円
|
2026年7月中旬 |
- 物件番号
- 559-00290
- 所在地
- 東京都台東区浅草橋1-1-14
- 物件番号
- 559-00290
- 竣工年
- 1988年
- 所在地
- 東京都台東区浅草橋1-1-14
- 竣工年
- 1988年
- 規模
- 地上8階
| 階数 | 面積 | 賃料+共益費 | 保証金 | 入居時期 | 検討 | 図面 | 詳細 |
|---|---|---|---|---|---|---|---|
| 6 | 23.11坪 |
330,473円14,300円/坪
|
150万円
|
相談 |
空室フロアリスト
| 階数 | 面積 | 賃料+共益費 | 保証金 | 入居時期 | 検討 | 図面 | 詳細 |
|---|---|---|---|---|---|---|---|
| 6 | 23.11坪 |
330,473円14,300円/坪
|
150万円
|
相談 |
- 物件番号
- 421-00078
- 所在地
- 東京都千代田区東神田1-10-4
- 物件番号
- 421-00078
- 竣工年
- 1972年4月
- 所在地
- 東京都千代田区東神田1-10-4
- 竣工年
- 1972年4月
- 規模
- 地上10階/地下1階
| 階数 | 面積 | 賃料+共益費 | 保証金 | 入居時期 | 検討 | 図面 | 詳細 |
|---|---|---|---|---|---|---|---|
| 2 | 51.61坪 |
800,473円15,510円/坪
|
273万円
|
2026年7月 |
空室フロアリスト
| 階数 | 面積 | 賃料+共益費 | 保証金 | 入居時期 | 検討 | 図面 | 詳細 |
|---|---|---|---|---|---|---|---|
| 2 | 51.61坪 |
800,473円15,510円/坪
|
273万円
|
2026年7月 |
- 物件番号
- 559-00164
- 所在地
- 東京都台東区浅草橋3-19-1
- 物件番号
- 559-00164
- 竣工年
- 1994年
- 所在地
- 東京都台東区浅草橋3-19-1
- 竣工年
- 1994年
- 規模
- 地上7階
| 階数 | 面積 | 賃料+共益費 | 保証金 | 入居時期 | 検討 | 図面 | 詳細 |
|---|---|---|---|---|---|---|---|
| 1 | 32.20坪 |
880,000円27,329円/坪
|
704万円
|
即 |
空室フロアリスト
| 階数 | 面積 | 賃料+共益費 | 保証金 | 入居時期 | 検討 | 図面 | 詳細 |
|---|---|---|---|---|---|---|---|
| 1 | 32.20坪 |
880,000円27,329円/坪
|
704万円
|
即 |
- 物件番号
- 421-00013
- 所在地
- 東京都千代田区東神田2-10-16
- 物件番号
- 421-00013
- 竣工年
- 1992年6月
- 所在地
- 東京都千代田区東神田2-10-16
- 竣工年
- 1992年6月
- 規模
- 地上9階
| 階数 | 面積 | 賃料+共益費 | 保証金 | 入居時期 | 検討 | 図面 | 詳細 |
|---|---|---|---|---|---|---|---|
| 8 | 29.46坪 |
842,556円28,600円/坪
|
応相談
|
2026年8月上旬 | |||
| 8 | 29.46坪 |
842,556円28,600円/坪
|
応相談
|
2026年8月上旬 |
空室フロアリスト
| 階数 | 面積 | 賃料+共益費 | 保証金 | 入居時期 | 検討 | 図面 | 詳細 |
|---|---|---|---|---|---|---|---|
| 8 | 29.46坪 |
842,556円28,600円/坪
|
応相談
|
2026年8月上旬 | |||
| 8 | 29.46坪 |
842,556円28,600円/坪
|
応相談
|
2026年8月上旬 |
- 物件番号
- 564-00042
- 所在地
- 東京都台東区鳥越2-9-6
- 物件番号
- 564-00042
- 竣工年
- 1988年7月
- 所在地
- 東京都台東区鳥越2-9-6
- 竣工年
- 1988年7月
- 規模
- 地上6階
| 階数 | 面積 | 賃料+共益費 | 保証金 | 入居時期 | 検討 | 図面 | 詳細 |
|---|---|---|---|---|---|---|---|
| 3 | 24.99坪 |
応相談応相談
|
応相談
|
相談 |
空室フロアリスト
| 階数 | 面積 | 賃料+共益費 | 保証金 | 入居時期 | 検討 | 図面 | 詳細 |
|---|---|---|---|---|---|---|---|
| 3 | 24.99坪 |
応相談応相談
|
応相談
|
相談 |
- 物件番号
- 421-00139
- 所在地
- 東京都千代田区東神田2-3-10
- 物件番号
- 421-00139
- 竣工年
- 2011年1月
- 所在地
- 東京都千代田区東神田2-3-10
- 竣工年
- 2011年1月
- 規模
- 地上7階
| 階数 | 面積 | 賃料+共益費 | 保証金 | 入居時期 | 検討 | 図面 | 詳細 |
|---|---|---|---|---|---|---|---|
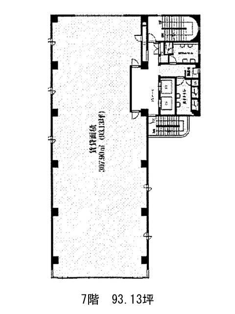
| 7 | 136.14坪 |
応相談応相談
|
応相談
|
2026年9月上旬 |
空室フロアリスト
| 階数 | 面積 | 賃料+共益費 | 保証金 | 入居時期 | 検討 | 図面 | 詳細 |
|---|---|---|---|---|---|---|---|
| 7 | 136.14坪 |
応相談応相談
|
応相談
|
2026年9月上旬 |
- 物件番号
- 642-00242
- 所在地
- 東京都中央区東日本橋2-15-4
- 物件番号
- 642-00242
- 竣工年
- 2009年10月
- 所在地
- 東京都中央区東日本橋2-15-4
- 竣工年
- 2009年10月
- 規模
- 地上9階
| 階数 | 面積 | 賃料+共益費 | 保証金 | 入居時期 | 検討 | 図面 | 詳細 |
|---|---|---|---|---|---|---|---|
| 5 | 70.33坪 |
応相談応相談
|
応相談
|
即 |
空室フロアリスト
| 階数 | 面積 | 賃料+共益費 | 保証金 | 入居時期 | 検討 | 図面 | 詳細 |
|---|---|---|---|---|---|---|---|
| 5 | 70.33坪 |
応相談応相談
|
応相談
|
即 |
- 物件番号
- 414-00002
- 所在地
- 東京都千代田区神田平河町1
- 物件番号
- 414-00002
- 竣工年
- 1969年11月
- 所在地
- 東京都千代田区神田平河町1
- 竣工年
- 1969年11月
- 規模
- 地上11階/地下1階
| 階数 | 面積 | 賃料+共益費 | 保証金 | 入居時期 | 検討 | 図面 | 詳細 |
|---|---|---|---|---|---|---|---|
| 2 | 16.00坪 |
228,800円14,300円/坪
|
128万円
|
即 |
空室フロアリスト
| 階数 | 面積 | 賃料+共益費 | 保証金 | 入居時期 | 検討 | 図面 | 詳細 |
|---|---|---|---|---|---|---|---|
| 2 | 16.00坪 |
228,800円14,300円/坪
|
128万円
|
即 |
- 物件番号
- 421-00181
- 所在地
- 東京都千代田区東神田2-8-16
- 物件番号
- 421-00181
- 竣工年
- 2026年5月
- 所在地
- 東京都千代田区東神田2-8-16
- 竣工年
- 2026年5月
- 規模
- 地上9階
| 階数 | 面積 | 賃料+共益費 | 保証金 | 入居時期 | 検討 | 図面 | 詳細 |
|---|---|---|---|---|---|---|---|
| 3 | 30.73坪 |
応相談応相談
|
応相談
|
2026年7月上旬 | |||
| 4 | 30.73坪 |
応相談応相談
|
応相談
|
2026年7月上旬 | |||
| 5 | 30.73坪 |
応相談応相談
|
応相談
|
2026年7月上旬 | |||
| 6 | 30.73坪 |
応相談応相談
|
応相談
|
2026年7月上旬 | |||
| 7 | 30.73坪 |
応相談応相談
|
応相談
|
2026年7月上旬 | |||
| 8 | 30.73坪 |
応相談応相談
|
応相談
|
2026年7月上旬 | |||
| 9 | 30.84坪 |
応相談応相談
|
応相談
|
2026年7月上旬 |
空室フロアリスト
| 階数 | 面積 | 賃料+共益費 | 保証金 | 入居時期 | 検討 | 図面 | 詳細 |
|---|---|---|---|---|---|---|---|
| 3 | 30.73坪 |
応相談応相談
|
応相談
|
2026年7月上旬 | |||
| 4 | 30.73坪 |
応相談応相談
|
応相談
|
2026年7月上旬 | |||
| 5 | 30.73坪 |
応相談応相談
|
応相談
|
2026年7月上旬 | |||
| 6 | 30.73坪 |
応相談応相談
|
応相談
|
2026年7月上旬 | |||
| 7 | 30.73坪 |
応相談応相談
|
応相談
|
2026年7月上旬 | |||
| 8 | 30.73坪 |
応相談応相談
|
応相談
|
2026年7月上旬 | |||
| 9 | 30.84坪 |
応相談応相談
|
応相談
|
2026年7月上旬 |
- 物件番号
- 642-00007
- 所在地
- 東京都中央区東日本橋2-9-2
- 物件番号
- 642-00007
- 竣工年
- 1973年9月
- 所在地
- 東京都中央区東日本橋2-9-2
- 竣工年
- 1973年9月
- 規模
- 地上7階/地下1階
| 階数 | 面積 | 賃料+共益費 | 保証金 | 入居時期 | 検討 | 図面 | 詳細 |
|---|---|---|---|---|---|---|---|
| 6 | 27.00坪 |
386,100円14,300円/坪
|
237万円
|
2026年5月中旬 |
空室フロアリスト
| 階数 | 面積 | 賃料+共益費 | 保証金 | 入居時期 | 検討 | 図面 | 詳細 |
|---|---|---|---|---|---|---|---|
| 6 | 27.00坪 |
386,100円14,300円/坪
|
237万円
|
2026年5月中旬 |
- 物件番号
- 559-00274
- 所在地
- 東京都台東区浅草橋3-31-1
- 物件番号
- 559-00274
- 竣工年
- 1976年10月
- 所在地
- 東京都台東区浅草橋3-31-1
- 竣工年
- 1976年10月
- 規模
- 地上6階
| 階数 | 面積 | 賃料+共益費 | 保証金 | 入居時期 | 検討 | 図面 | 詳細 |
|---|---|---|---|---|---|---|---|
| 1 | 131.36坪 |
1,050,632円7,998円/坪
|
534万円
|
2026年9月上旬 |
空室フロアリスト
| 階数 | 面積 | 賃料+共益費 | 保証金 | 入居時期 | 検討 | 図面 | 詳細 |
|---|---|---|---|---|---|---|---|
| 1 | 131.36坪 |
1,050,632円7,998円/坪
|
534万円
|
2026年9月上旬 |
- 物件番号
- 866-00230
- 所在地
- 東京都墨田区両国3-5-7
- 物件番号
- 866-00230
- 竣工年
- 2000年11月
- 所在地
- 東京都墨田区両国3-5-7
- 竣工年
- 2000年11月
- 規模
- 地上7階
| 階数 | 面積 | 賃料+共益費 | 保証金 | 入居時期 | 検討 | 図面 | 詳細 |
|---|---|---|---|---|---|---|---|
| 1 | 27.29坪 |
764,013円27,996円/坪
|
833万円
|
即 | |||
| 2 | 37.68坪 |
705,114円18,713円/坪
|
769万円
|
即 | |||
| 3 | 38.71坪 |
658,004円16,998円/坪
|
717万円
|
即 | |||
| 7 | 20.89坪 |
355,003円16,993円/坪
|
387万円
|
即 |
空室フロアリスト
| 階数 | 面積 | 賃料+共益費 | 保証金 | 入居時期 | 検討 | 図面 | 詳細 |
|---|---|---|---|---|---|---|---|
| 1 | 27.29坪 |
764,013円27,996円/坪
|
833万円
|
即 | |||
| 2 | 37.68坪 |
705,114円18,713円/坪
|
769万円
|
即 | |||
| 3 | 38.71坪 |
658,004円16,998円/坪
|
717万円
|
即 | |||
| 7 | 20.89坪 |
355,003円16,993円/坪
|
387万円
|
即 |
- 物件番号
- 866-00106
- 所在地
- 東京都墨田区両国3-21-16
- 物件番号
- 866-00106
- 竣工年
- 1999年12月
- 所在地
- 東京都墨田区両国3-21-16
- 竣工年
- 1999年12月
- 規模
- 地上10階
| 階数 | 面積 | 賃料+共益費 | 保証金 | 入居時期 | 検討 | 図面 | 詳細 |
|---|---|---|---|---|---|---|---|
| 6 | 32.65坪 |
538,725円16,500円/坪
|
587万円
|
2026年9月中旬 |
空室フロアリスト
| 階数 | 面積 | 賃料+共益費 | 保証金 | 入居時期 | 検討 | 図面 | 詳細 |
|---|---|---|---|---|---|---|---|
| 6 | 32.65坪 |
538,725円16,500円/坪
|
587万円
|
2026年9月中旬 |
- 物件番号
- 564-00014
- 所在地
- 東京都台東区鳥越2-7-12
- 物件番号
- 564-00014
- 竣工年
- 1990年7月
- 所在地
- 東京都台東区鳥越2-7-12
- 竣工年
- 1990年7月
- 規模
- 地上6階
| 階数 | 面積 | 賃料+共益費 | 保証金 | 入居時期 | 検討 | 図面 | 詳細 |
|---|---|---|---|---|---|---|---|
| 4 | 35.22坪 |
426,162円12,100円/坪
|
253万円
|
2026年5月中旬 |
空室フロアリスト
| 階数 | 面積 | 賃料+共益費 | 保証金 | 入居時期 | 検討 | 図面 | 詳細 |
|---|---|---|---|---|---|---|---|
| 4 | 35.22坪 |
426,162円12,100円/坪
|
253万円
|
2026年5月中旬 |
- 物件番号
- 655-00008
- 所在地
- 東京都中央区日本橋馬喰町1-6-6
- 物件番号
- 655-00008
- 竣工年
- 1992年1月
- 所在地
- 東京都中央区日本橋馬喰町1-6-6
- 竣工年
- 1992年1月
- 規模
- 地上9階
| 階数 | 面積 | 賃料+共益費 | 保証金 | 入居時期 | 検討 | 図面 | 詳細 |
|---|---|---|---|---|---|---|---|
| 1 | 31.92坪 |
807,576円25,300円/坪
|
638万円
|
2026年8月上旬 | |||
| 7 | 41.44坪 |
592,592円14,300円/坪
|
414万円
|
2026年8月上旬 |
空室フロアリスト
| 階数 | 面積 | 賃料+共益費 | 保証金 | 入居時期 | 検討 | 図面 | 詳細 |
|---|---|---|---|---|---|---|---|
| 1 | 31.92坪 |
807,576円25,300円/坪
|
638万円
|
2026年8月上旬 | |||
| 7 | 41.44坪 |
592,592円14,300円/坪
|
414万円
|
2026年8月上旬 |
- 物件番号
- 559-00042
- 所在地
- 東京都台東区浅草橋1-25-10
- 物件番号
- 559-00042
- 竣工年
- 1988年5月
- 所在地
- 東京都台東区浅草橋1-25-10
- 竣工年
- 1988年5月
- 規模
- 地上5階/地下1階
| 階数 | 面積 | 賃料+共益費 | 保証金 | 入居時期 | 検討 | 図面 | 詳細 |
|---|---|---|---|---|---|---|---|
| 2 | 27.18坪 |
407,000円14,974円/坪
|
74万円
|
相談 |
空室フロアリスト
| 階数 | 面積 | 賃料+共益費 | 保証金 | 入居時期 | 検討 | 図面 | 詳細 |
|---|---|---|---|---|---|---|---|
| 2 | 27.18坪 |
407,000円14,974円/坪
|
74万円
|
相談 |
- 物件番号
- 559-00127
- 所在地
- 東京都台東区浅草橋1-7-2
- 物件番号
- 559-00127
- 竣工年
- 1991年11月
- 所在地
- 東京都台東区浅草橋1-7-2
- 竣工年
- 1991年11月
- 規模
- 地上10階
| 階数 | 面積 | 賃料+共益費 | 保証金 | 入居時期 | 検討 | 図面 | 詳細 |
|---|---|---|---|---|---|---|---|
| 5 | 47.32坪 |
728,728円15,400円/坪
|
662万円
|
即 |
空室フロアリスト
| 階数 | 面積 | 賃料+共益費 | 保証金 | 入居時期 | 検討 | 図面 | 詳細 |
|---|---|---|---|---|---|---|---|
| 5 | 47.32坪 |
728,728円15,400円/坪
|
662万円
|
即 |
- 物件番号
- 561-00094
- 所在地
- 東京都台東区台東1-21-4
- 物件番号
- 561-00094
- 竣工年
- 1991年7月
- 所在地
- 東京都台東区台東1-21-4
- 竣工年
- 1991年7月
- 規模
- 地上8階
| 階数 | 面積 | 賃料+共益費 | 保証金 | 入居時期 | 検討 | 図面 | 詳細 |
|---|---|---|---|---|---|---|---|
| 7 | 16.33坪 |
217,352円13,310円/坪
|
107万円
|
即 |
空室フロアリスト
| 階数 | 面積 | 賃料+共益費 | 保証金 | 入居時期 | 検討 | 図面 | 詳細 |
|---|---|---|---|---|---|---|---|
| 7 | 16.33坪 |
217,352円13,310円/坪
|
107万円
|
即 |


