吉川ビルディングの貸事務所・賃貸オフィス情報
- 物件番号
- 569-00012
吉川ビルディングの貸事務所・賃貸オフィス情報
吉川ビルディングの物件情報
吉川ビルディング(台東区北上野)は入谷駅徒歩7分、上野駅徒歩8分、稲荷町駅徒歩9分の賃貸オフィスです。
- 所在地
- 東京都台東区北上野1-1-12
- 規模
- 地上8階
- 竣工
- 1993年
- エレベーター
- 個別空調
- 新耐震基準
吉川ビルディングの空室フロアリスト
階数 | 面積 | 賃料+共益費 | 保証金 | 入居時期 | 更新料 | 償却費 | 礼金 | 検討 | 平面図 | 詳細 |
---|---|---|---|---|---|---|---|---|---|---|
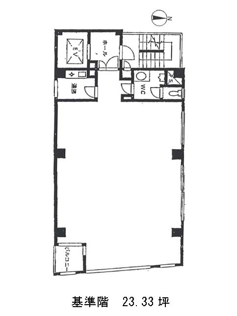
3 | 23.33坪 |
220,001円9,430円/坪
|
64万円
|
即 | 新1ケ月 | 2ケ月 | なし |
吉川ビルディングの募集終了区画
階数 | 面積 | 賃料+共益費 | 保証金 | 入居時期 | 更新料 | 償却費 | 礼金 | 平面図 | 詳細 |
---|---|---|---|---|---|---|---|---|---|
2 | 23.33坪 | − | − | 募集終了 | − | − | − | ||
4 | 23.33坪 | − | − | 募集終了 | − | − | − | ||
5 | 23.33坪 | − | − | 募集終了 | − | − | − | ||
6 | 23.33坪 | − | − | 募集終了 | − | − | − | ||
7 | 23.33坪 | − | − | 募集終了 | − | − | − | ||
8 | 23.33坪 | − | − | 募集終了 | − | − | − |