新着双英ビルの貸事務所・賃貸オフィス情報
- 物件番号
- 237-00477
新着双英ビルの貸事務所・賃貸オフィス情報
双英ビルの物件情報
双英ビル(新宿区西新宿)は西新宿駅徒歩3分、都庁前駅徒歩7分、新宿駅徒歩9分の賃貸オフィスです。
- 所在地
- 東京都新宿区西新宿8-14-21
- 規模
- 地上9階/地下1階
- 竣工
- 1993年5月
- エレベーター
- 個別空調
- 新耐震基準
双英ビルの空室フロアリスト
| 階数 | 面積 | 賃料+共益費 | 保証金 | 入居時期 | 更新料 | 償却費 | 礼金 | 検討 | 平面図 | 詳細 |
|---|---|---|---|---|---|---|---|---|---|---|
| 4 | 36.18坪 |
616,869円17,050円/坪
|
448万円
|
2026年3月上旬 | 新1ケ月 | 1ケ月 | なし |
双英ビルの募集終了区画
| 階数 | 面積 | 賃料+共益費 | 保証金 | 入居時期 | 更新料 | 償却費 | 礼金 | 平面図 | 詳細 |
|---|---|---|---|---|---|---|---|---|---|
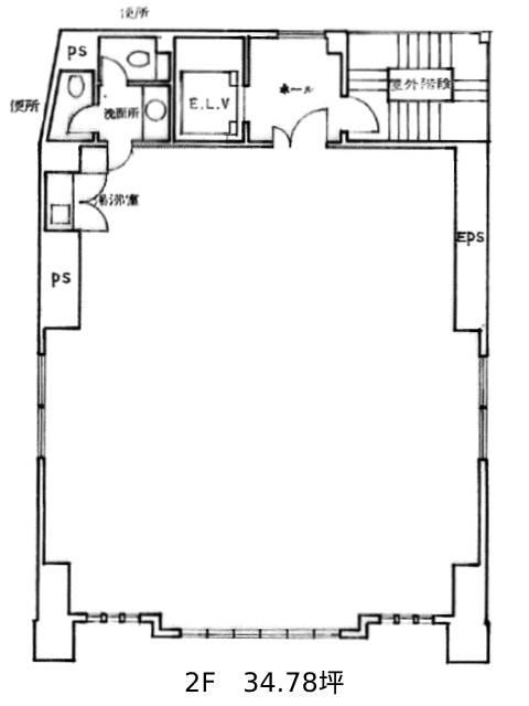
| 2 | 34.78坪 | − | − | 募集終了 | − | − | − | ||
| 3 | 36.18坪 | − | − | 募集終了 | − | − | − | ||
| 5 | 36.18坪 | − | − | 募集終了 | − | − | − | ||
| 7 | 33.23坪 | − | − | 募集終了 | − | − | − | ||
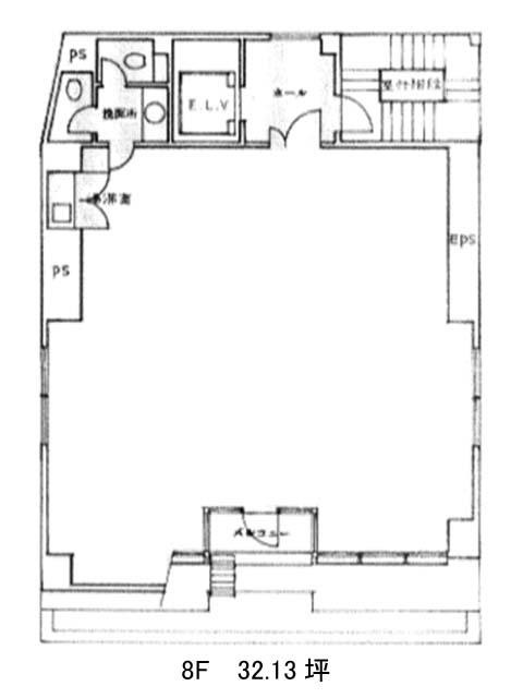
| 8 | 32.13坪 | − | − | 募集終了 | − | − | − | ||
| 9 | 25.02坪 | − | − | 募集終了 | − | − | − | ||
| 9 | 25.01坪 | − | − | 募集終了 | − | − | − |


