サワビルの貸事務所・賃貸オフィス情報
- 物件番号
- 561-00085
サワビルの貸事務所・賃貸オフィス情報
サワビルの物件情報
サワビル(台東区台東)は秋葉原駅徒歩5分、仲御徒町駅徒歩6分、末広町駅徒歩7分の賃貸オフィスです。
- 所在地
- 東京都台東区台東1-10-6
- 規模
- 地上9階
- 竣工
- 1983年12月
- エレベーター
- 個別空調
- 新耐震基準
サワビルの空室フロアリスト
階数 | 面積 | 賃料+共益費 | 保証金 | 入居時期 | 更新料 | 償却費 | 礼金 | 検討 | 平面図 | 詳細 |
---|---|---|---|---|---|---|---|---|---|---|
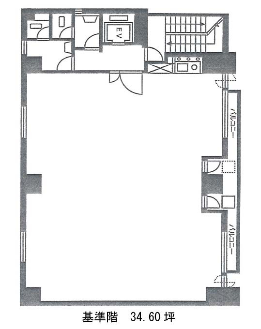
7 | 34.60坪 |
570,900円16,500円/坪
|
269万円
|
即 | 新1ケ月 | 2ケ月 | なし |
サワビルの募集終了区画
階数 | 面積 | 賃料+共益費 | 保証金 | 入居時期 | 更新料 | 償却費 | 礼金 | 平面図 | 詳細 |
---|---|---|---|---|---|---|---|---|---|
2 | 34.60坪 | − | − | 募集終了 | − | − | − | ||
3 | 34.60坪 | − | − | 募集終了 | − | − | − | ||
4 | 34.60坪 | − | − | 募集終了 | − | − | − | ||
5 | 34.60坪 | − | − | 募集終了 | − | − | − | ||
6 | 34.60坪 | − | − | 募集終了 | − | − | − | ||
8 | 34.60坪 | − | − | 募集終了 | − | − | − | ||
9 | 34.60坪 | − | − | 募集終了 | − | − | − |