丁子屋ビルの貸事務所・賃貸オフィス情報
- 物件番号
- 230-00196
丁子屋ビルの貸事務所・賃貸オフィス情報
丁子屋ビルの物件情報
丁子屋ビル(新宿区新宿)は新宿御苑前駅徒歩4分、新宿三丁目駅徒歩5分、新宿駅徒歩12分の賃貸オフィスです。
- 所在地
- 東京都新宿区新宿1-36-4
- 規模
- 地上9階/地下1階
- 竣工
- 1991年5月
- エレベーター
- 個別空調
- 新耐震基準
丁子屋ビルの空室フロアリスト
階数 | 面積 | 賃料+共益費 | 保証金 | 入居時期 | 更新料 | 償却費 | 礼金 | 検討 | 平面図 | 詳細 |
---|---|---|---|---|---|---|---|---|---|---|
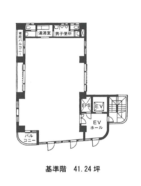
7 | 41.24坪 |
725,824円17,600円/坪
|
659万円
|
即 | 新1ケ月 | 1ケ月 | なし |
丁子屋ビルの募集終了区画
階数 | 面積 | 賃料+共益費 | 保証金 | 入居時期 | 更新料 | 償却費 | 礼金 | 平面図 | 詳細 |
---|---|---|---|---|---|---|---|---|---|
地下1 | 29.67坪 | − | − | 募集終了 | − | − | − | ||
3 | 41.24坪 | − | − | 募集終了 | − | − | − | ||
5 | 41.24坪 | − | − | 募集終了 | − | − | − | ||
6 | 41.24坪 | − | − | 募集終了 | − | − | − | ||
8 | 41.24坪 | − | − | 募集終了 | − | − | − |