霜ビル1の貸事務所・賃貸オフィス情報
霜ビル1の貸事務所・賃貸オフィス情報
霜ビル1
- エレベーター
- 個別空調
- 駐車場
- 旧耐震基準
霜ビル1の空室フロアリスト
| 階数 | 面積 | 賃料+共益費 | 保証金 | 入居時期 | 更新料 | 償却費 | 礼金 | 検討 | 平面図 | 詳細 |
|---|---|---|---|---|---|---|---|---|---|---|
| 2 | 34.94坪 |
440,000円12,593円/坪
|
180万円
|
2026年1月中旬 | 新1ケ月 | なし | 2ケ月 | |||
| 4 | 34.94坪 |
440,000円12,593円/坪
|
180万円
|
2026年1月上旬 | 新1ケ月 | なし | 2ケ月 | |||
| 4 | 38.50坪 |
473,000円12,287円/坪
|
200万円
|
2026年1月上旬 | 新1ケ月 | なし | 2ケ月 |
霜ビル1の物件情報
霜ビル1(江東区福住)は門前仲町駅徒歩6分、清澄白河駅徒歩13分、水天宮前駅徒歩13分の賃貸オフィスです。
霜ビル1のアクセス
霜ビル1の募集終了区画
| 階数 | 面積 | 賃料+共益費 | 保証金 | 入居時期 | 更新料 | 償却費 | 礼金 | 平面図 | 詳細 |
|---|---|---|---|---|---|---|---|---|---|
| 1 | 21.69坪 | − | − | 募集終了 | − | − | − | ||
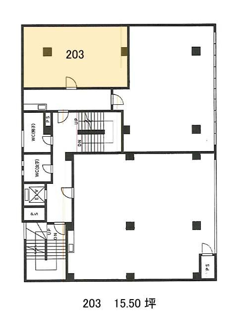
| 2 | 15.50坪 | − | − | 募集終了 | − | − | − | ||
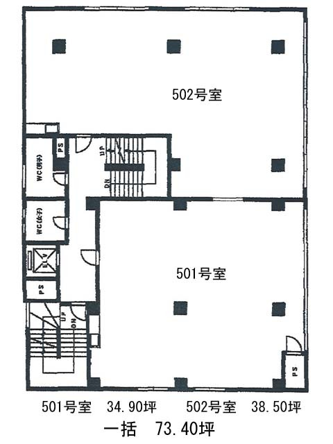
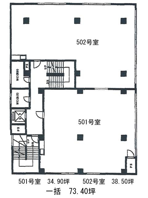
| 5 | 33.62坪 | − | − | 募集終了 | − | − | − | ||
| 5 | 34.90坪 | − | − | 募集終了 | − | − | − | ||
| 5 | 38.50坪 | − | − | 募集終了 | − | − | − |


