宮崎ビルの貸事務所・賃貸オフィス情報
宮崎ビルの貸事務所・賃貸オフィス情報
宮崎ビル
- エレベーター
- 新耐震基準
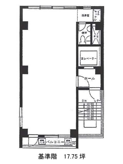
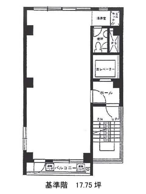
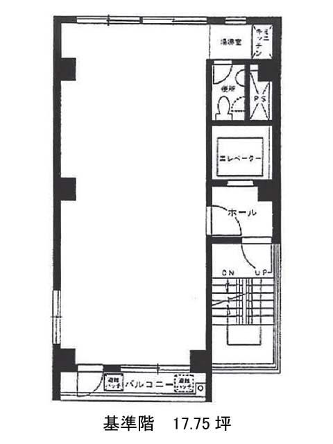
宮崎ビルの空室フロアリスト
| 階数 | 面積 | 賃料+共益費 | 保証金 | 入居時期 | 更新料 | 償却費 | 礼金 | 検討 | 平面図 | 詳細 |
|---|---|---|---|---|---|---|---|---|---|---|
| 5 | 17.75坪 |
292,875円16,500円/坪
|
159万円
|
相談 | 新1ケ月 | 2ケ月 | なし |
宮崎ビルの物件情報
宮崎ビル(港区海岸)は竹芝駅徒歩3分、大門駅徒歩6分、浜松町駅徒歩7分の賃貸オフィスです。
宮崎ビルのアクセス
宮崎ビルの募集終了区画
| 階数 | 面積 | 賃料+共益費 | 保証金 | 入居時期 | 更新料 | 償却費 | 礼金 | 平面図 | 詳細 |
|---|---|---|---|---|---|---|---|---|---|
| 2 | 17.75坪 | − | − | 募集終了 | − | − | − | ||
| 3 | 17.75坪 | − | − | 募集終了 | − | − | − | ||
| 4 | 17.75坪 | − | − | 募集終了 | − | − | − |


