第一榎ビルの貸事務所・賃貸オフィス情報
第一榎ビルの貸事務所・賃貸オフィス情報
第一榎ビル
- 物件番号
- 122-00270
- 所在地
- 東京都港区虎ノ門5-3-1
- 竣工
- 1975年10月
- 規模
- 地上5階
- エレベーター
- 個別空調
- 駐車場
- 旧耐震基準
第一榎ビルの空室フロアリスト
| 階数 | 面積 | 賃料+共益費 | 保証金 | 入居時期 | 更新料 | 償却費 | 礼金 | 検討 | 平面図 | 詳細 |
|---|---|---|---|---|---|---|---|---|---|---|
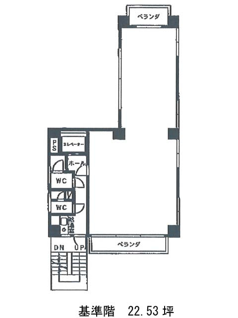
| 4 | 22.53坪 |
408,919円18,150円/坪
|
310万円
|
即 | 新1ケ月 | 2ケ月 | なし |
第一榎ビルの物件情報
第一榎ビル(港区虎ノ門)は神谷町駅徒歩2分、虎ノ門ヒルズ駅徒歩8分、六本木一丁目駅徒歩9分の賃貸オフィスです。
第一榎ビルのアクセス
第一榎ビルの募集終了区画
| 階数 | 面積 | 賃料+共益費 | 保証金 | 入居時期 | 更新料 | 償却費 | 礼金 | 平面図 | 詳細 |
|---|---|---|---|---|---|---|---|---|---|
| 1 | 18.61坪 | − | − | 募集終了 | − | − | − | ||
| 2 | 22.53坪 | − | − | 募集終了 | − | − | − | ||
| 3 | 22.53坪 | − | − | 募集終了 | − | − | − | ||
| 5 | 18.09坪 | − | − | 募集終了 | − | − | − |


