WATANABEビルの貸事務所・賃貸オフィス情報
WATANABEビルの貸事務所・賃貸オフィス情報
WATANABEビル
- エレベーター
- 新耐震基準
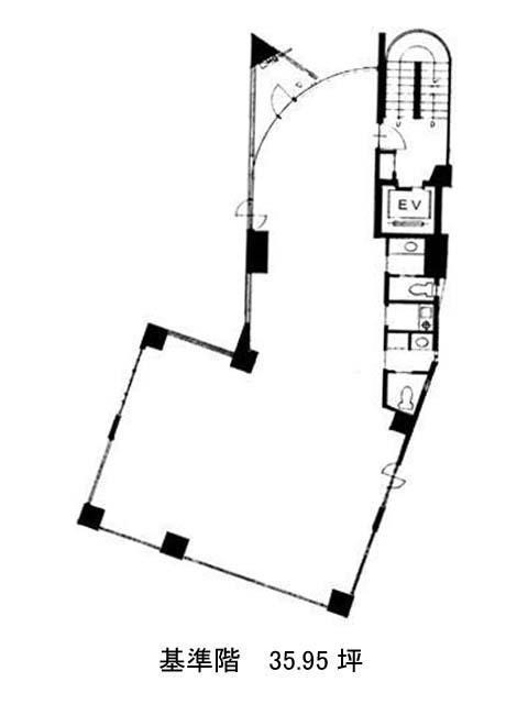
WATANABEビルの空室フロアリスト
| 階数 | 面積 | 賃料+共益費 | 保証金 | 入居時期 | 更新料 | 償却費 | 礼金 | 検討 | 平面図 | 詳細 |
|---|---|---|---|---|---|---|---|---|---|---|
| 3 | 35.95坪 |
612,947円17,050円/坪
|
215万円
|
即 | 新1ケ月 | なし | 1ケ月 |
WATANABEビルの物件情報
WATANABEビル(港区三田)は麻布十番駅徒歩5分、赤羽橋駅徒歩5分、芝公園駅徒歩11分の賃貸オフィスです。
WATANABEビルのアクセス
WATANABEビルの条件に近い物件
WATANABEビルの募集終了区画
| 階数 | 面積 | 賃料+共益費 | 保証金 | 入居時期 | 更新料 | 償却費 | 礼金 | 平面図 | 詳細 |
|---|---|---|---|---|---|---|---|---|---|
| 1 | 43.92坪 | − | − | 募集終了 | − | − | − | ||
| 4 | 35.95坪 | − | − | 募集終了 | − | − | − | ||
| 5 | 35.95坪 | − | − | 募集終了 | − | − | − |


