現在、空室がございません。
望月ビルの貸事務所・賃貸オフィス情報
望月ビルの貸事務所・賃貸オフィス情報
望月ビル
- エレベーター
- 個別空調
- 新耐震基準
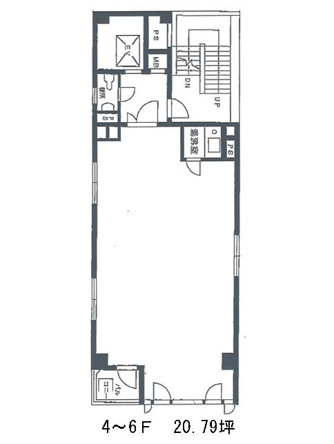
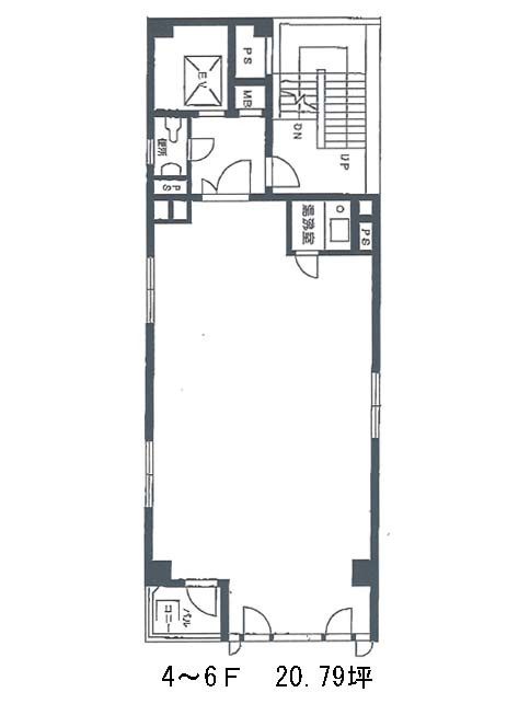
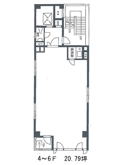
望月ビルの空室フロアリスト
現在、空室がございません。
望月ビルの物件情報
望月ビル(港区芝)は三田駅徒歩5分、田町駅徒歩7分、赤羽橋駅徒歩10分の賃貸オフィスです。
望月ビルのアクセス
望月ビルの募集終了区画
| 階数 | 面積 | 賃料+共益費 | 保証金 | 入居時期 | 更新料 | 償却費 | 礼金 | 平面図 | 詳細 |
|---|---|---|---|---|---|---|---|---|---|
| 3 | 20.79坪 | − | − | 募集終了 | − | − | − | ||
| 4 | 20.79坪 | − | − | 募集終了 | − | − | − | ||
| 5 | 20.79坪 | − | − | 募集終了 | − | − | − | ||
| 6 | 20.79坪 | − | − | 募集終了 | − | − | − |


