現在、空室がございません。
芝公園STKビルの貸事務所・賃貸オフィス情報
芝公園STKビルの貸事務所・賃貸オフィス情報
芝公園STKビル
- エレベーター
- 個別空調
- 駐車場
- 新耐震基準
芝公園STKビルの空室フロアリスト
現在、空室がございません。
芝公園STKビルの物件情報
芝公園STKビル(港区芝)は芝公園駅徒歩3分、三田駅徒歩5分、田町駅徒歩10分の賃貸オフィスです。
芝公園STKビルのアクセス
芝公園STKビルの募集終了区画
| 階数 | 面積 | 賃料+共益費 | 保証金 | 入居時期 | 更新料 | 償却費 | 礼金 | 平面図 | 詳細 |
|---|---|---|---|---|---|---|---|---|---|
| 1 | 37.00坪 | − | − | 募集終了 | − | − | − | ||
| 2 | 65.08坪 | − | − | 募集終了 | − | − | − | ||
| 3 | 65.08坪 | − | − | 募集終了 | − | − | − | ||
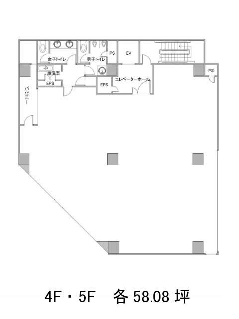
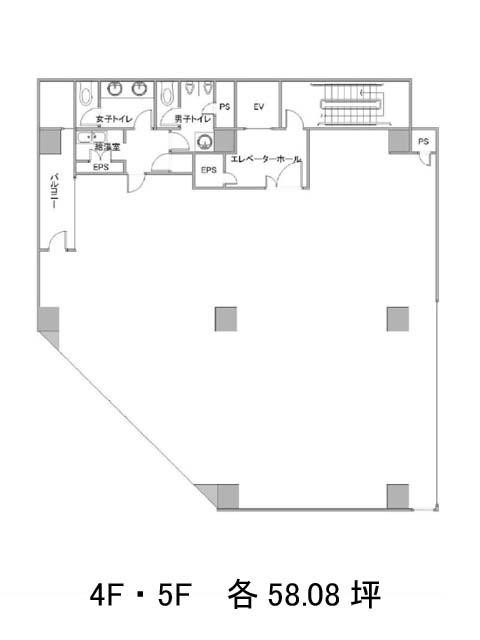
| 4 | 58.08坪 | − | − | 募集終了 | − | − | − | ||
| 5 | 58.08坪 | − | − | 募集終了 | − | − | − | ||
| 6 | 50.06坪 | − | − | 募集終了 | − | − | − |


