セブン三田ビルの貸事務所・賃貸オフィス情報
セブン三田ビルの貸事務所・賃貸オフィス情報
セブン三田ビル
- エレベーター
- 個別空調
- 新耐震基準
セブン三田ビルの空室フロアリスト
| 階数 | 面積 | 賃料+共益費 | 保証金 | 入居時期 | 更新料 | 償却費 | 礼金 | 検討 | 平面図 | 詳細 |
|---|---|---|---|---|---|---|---|---|---|---|
| 1 | 38.72坪 |
2,129,600円55,000円/坪
|
2323万円
|
2026年1月上旬 | 新1ケ月 | 2ケ月 | なし |
セブン三田ビルの物件情報
セブン三田ビル(港区芝)は三田駅徒歩1分、田町駅徒歩3分、芝公園駅徒歩9分の賃貸オフィスです。
セブン三田ビルのアクセス
セブン三田ビルの募集終了区画
| 階数 | 面積 | 賃料+共益費 | 保証金 | 入居時期 | 更新料 | 償却費 | 礼金 | 平面図 | 詳細 |
|---|---|---|---|---|---|---|---|---|---|
| 2 | 61.95坪 | − | − | 募集終了 | − | − | − | ||
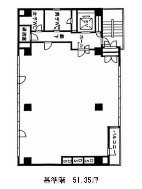
| 3 | 51.35坪 | − | − | 募集終了 | − | − | − | ||
| 4 | 51.80坪 | − | − | 募集終了 | − | − | − | ||
| 5 | 51.35坪 | − | − | 募集終了 | − | − | − | ||
| 6 | 51.35坪 | − | − | 募集終了 | − | − | − | ||
| 7 | 51.35坪 | − | − | 募集終了 | − | − | − | ||
| 8 | 51.80坪 | − | − | 募集終了 | − | − | − | ||
| 9 | 51.80坪 | − | − | 募集終了 | − | − | − |


