現在、空室がございません。
栗本ビルの貸事務所・賃貸オフィス情報
栗本ビルの貸事務所・賃貸オフィス情報
栗本ビル
- エレベーター
- 個別空調
- 旧耐震基準
栗本ビルの空室フロアリスト
現在、空室がございません。
栗本ビルの物件情報
栗本ビル(港区芝)は芝公園駅徒歩8分、日の出駅徒歩9分、三田駅徒歩10分の賃貸オフィスです。
栗本ビルのアクセス
栗本ビルの募集終了区画
| 階数 | 面積 | 賃料+共益費 | 保証金 | 入居時期 | 更新料 | 償却費 | 礼金 | 平面図 | 詳細 |
|---|---|---|---|---|---|---|---|---|---|
| 2 | 17.04坪 | − | − | 募集終了 | − | − | − | ||
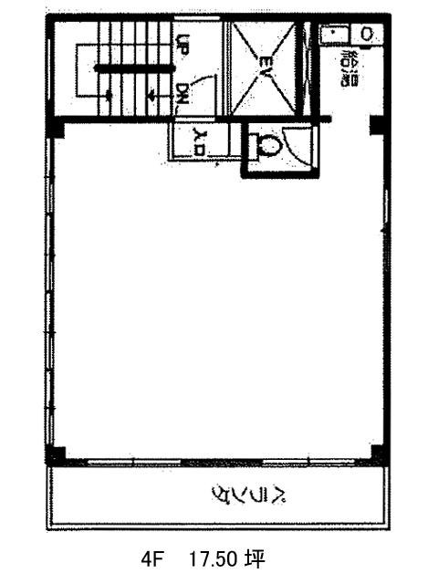
| 4 | 17.50坪 | − | − | 募集終了 | − | − | − |


