芝NKビルの貸事務所・賃貸オフィス情報
芝NKビルの貸事務所・賃貸オフィス情報
芝NKビル
- エレベーター
- 個別空調
- 新耐震基準
芝NKビルの空室フロアリスト
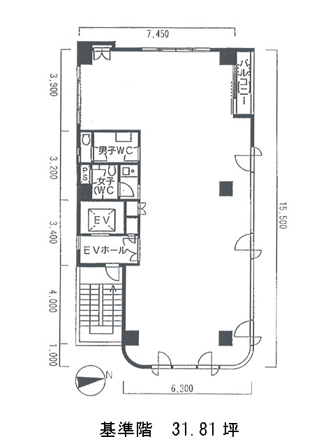
| 階数 | 面積 | 賃料+共益費 | 保証金 | 入居時期 | 更新料 | 償却費 | 礼金 | 検討 | 平面図 | 詳細 |
|---|---|---|---|---|---|---|---|---|---|---|
| 5 | 31.81坪 |
390,535円12,277円/坪
|
192万円
|
即 | 新1ケ月 | 2ケ月 | 1ケ月 |
芝NKビルの物件情報
芝NKビル(港区芝)は芝公園駅徒歩1分、三田駅徒歩5分、赤羽橋駅徒歩9分の賃貸オフィスです。
芝NKビルのアクセス
芝NKビルの募集終了区画
| 階数 | 面積 | 賃料+共益費 | 保証金 | 入居時期 | 更新料 | 償却費 | 礼金 | 平面図 | 詳細 |
|---|---|---|---|---|---|---|---|---|---|
| 2 | 31.81坪 | − | − | 募集終了 | − | − | − | ||
| 4 | 31.81坪 | − | − | 募集終了 | − | − | − |


