芝公園電気ビルディングの貸事務所・賃貸オフィス情報
芝公園電気ビルディングの貸事務所・賃貸オフィス情報
芝公園電気ビルディング
- 物件番号
- 128-00023
- 所在地
- 東京都港区芝公園1-1-12
- 竣工
- 1988年6月
- 規模
- 地上10階/地下2階
- エレベーター
- セントラル
- 駐車場
- 新耐震基準
芝公園電気ビルディングの空室フロアリスト
| 階数 | 面積 | 賃料+共益費 | 保証金 | 入居時期 | 更新料 | 償却費 | 礼金 | 検討 | 平面図 | 詳細 |
|---|---|---|---|---|---|---|---|---|---|---|
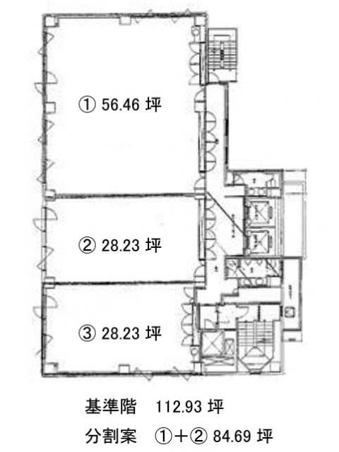
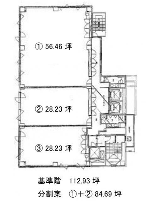
| 3 | 56.46坪 |
応相談応相談
|
応相談
|
2026年8月上旬 | なし | なし | なし |
芝公園電気ビルディングの物件情報
芝公園電気ビルディング(港区芝公園)は御成門駅徒歩2分、大門駅徒歩7分、芝公園駅徒歩9分の賃貸オフィスです。
芝公園電気ビルディングのアクセス
芝公園電気ビルディングの条件に近い物件
芝公園電気ビルディングの募集終了区画
| 階数 | 面積 | 賃料+共益費 | 保証金 | 入居時期 | 更新料 | 償却費 | 礼金 | 平面図 | 詳細 |
|---|---|---|---|---|---|---|---|---|---|
| 1 | 44.24坪 | − | − | 募集終了 | − | − | − | ||
| 2 | 112.93坪 | − | − | 募集終了 | − | − | − | ||
| 3 | 56.46坪 | − | − | 募集終了 | − | − | − | ||
| 3 | 28.23坪 | − | − | 募集終了 | − | − | − | ||
| 3 | 28.23坪 | − | − | 募集終了 | − | − | − | ||
| 4 | 112.93坪 | − | − | 募集終了 | − | − | − | ||
| 4 | 84.69坪 | − | − | 募集終了 | − | − | − | ||
| 5 | 84.69坪 | − | − | 募集終了 | − | − | − | ||
| 6 | 56.46坪 | − | − | 募集終了 | − | − | − | ||
| 6 | 56.46坪 | − | − | 募集終了 | − | − | − | ||
| 6 | 28.23坪 | − | − | 募集終了 | − | − | − | ||
| 7 | 28.23坪 | − | − | 募集終了 | − | − | − | ||
| 7 | 56.46坪 | − | − | 募集終了 | − | − | − | ||
| 7 | 56.46坪 | − | − | 募集終了 | − | − | − | ||
| 8 | 84.69坪 | − | − | 募集終了 | − | − | − | ||
| 8 | 28.23坪 | − | − | 募集終了 | − | − | − | ||
| 9 | 112.93坪 | − | − | 募集終了 | − | − | − |


