0120-16-2331

【受付時間】平日 AM9:00〜PM7:00

メールでお問合せ
現在、空室がございません。

羽織屋ビルの貸事務所・賃貸オフィス情報

羽織屋ビルの貸事務所・賃貸オフィス情報

羽織屋ビル

物件番号
129​-​00041
所在地
東京都港区芝大門2-1-15
最寄駅
大門駅 3分
竣工
1989年4月
規模
地上8階/地下1階
  • エレベーター
  • 個別空調
  • 新耐震基準

羽織屋ビルの空室フロアリスト

現在、空室がございません。

羽織屋ビルの物件情報

羽織屋ビル(港区芝大門)は大門駅徒歩3分、芝公園駅徒歩5分、浜松町駅徒歩7分の賃貸オフィスです。

羽織屋ビルのアクセス

羽織屋ビルの募集終了区画

階数 面積 賃料+共益費 保証金 入居時期 更新料 償却費 礼金 平面図 詳細
1 19.13坪 募集終了
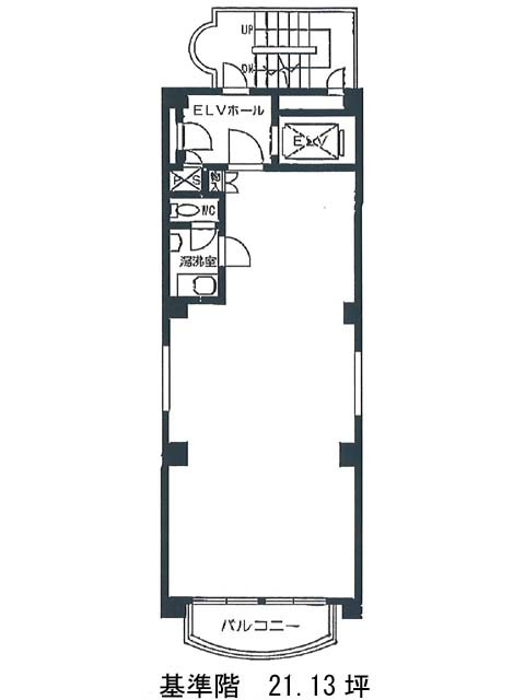
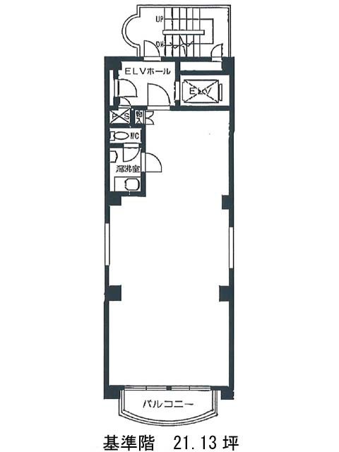
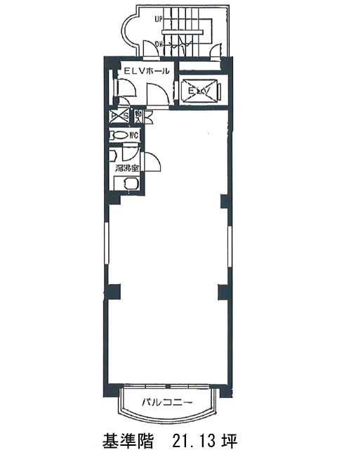
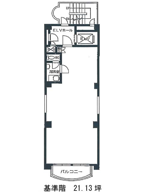
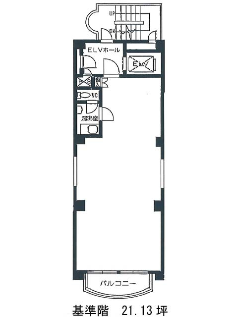
2 21.13坪 募集終了
3 21.13坪 募集終了
4 21.13坪 募集終了
5 21.13坪 募集終了
6 21.13坪 募集終了

貸事務所・賃貸オフィスを最寄駅から探す

貸事務所・賃貸オフィスを最寄駅の沿線から探す

お問合せ このビルについて問い合わせる