現在、空室がございません。
ABCビルの貸事務所・賃貸オフィス情報
ABCビルの貸事務所・賃貸オフィス情報
ABCビル
- エレベーター
- 個別空調
- 旧耐震基準
ABCビルの空室フロアリスト
現在、空室がございません。
ABCビルの物件情報
ABCビル(港区新橋)は新橋駅徒歩5分、汐留駅徒歩6分、御成門駅徒歩8分の賃貸オフィスです。
ABCビルのアクセス
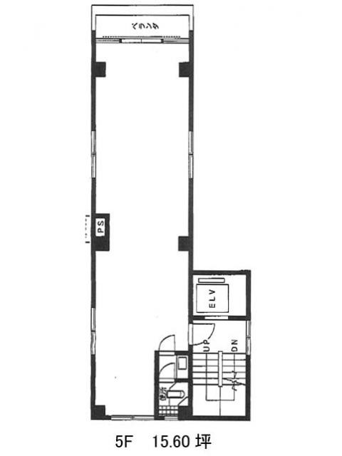
ABCビルの募集終了区画
| 階数 | 面積 | 賃料+共益費 | 保証金 | 入居時期 | 更新料 | 償却費 | 礼金 | 平面図 | 詳細 |
|---|---|---|---|---|---|---|---|---|---|
| 2 | 20.56坪 | − | − | 募集終了 | − | − | − | ||
| 3 | 20.56坪 | − | − | 募集終了 | − | − | − | ||
| 5 | 15.60坪 | − | − | 募集終了 | − | − | − |


