新橋スズキビルの貸事務所・賃貸オフィス情報
新橋スズキビルの貸事務所・賃貸オフィス情報
新橋スズキビル
- エレベーター
- 個別空調
- 新耐震基準
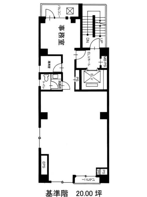
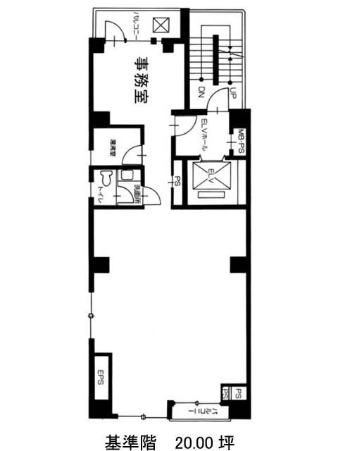
新橋スズキビルの空室フロアリスト
| 階数 | 面積 | 賃料+共益費 | 保証金 | 入居時期 | 更新料 | 償却費 | 礼金 | 検討 | 平面図 | 詳細 |
|---|---|---|---|---|---|---|---|---|---|---|
| 2 | 20.00坪 |
374,000円18,700円/坪
|
232万円
|
即 | 新1ケ月 | 2ケ月 | なし |
新橋スズキビルの物件情報
新橋スズキビル(港区新橋)は新橋駅徒歩7分、内幸町駅徒歩7分、御成門駅徒歩8分の賃貸オフィスです。
新橋スズキビルのアクセス
新橋スズキビルの条件に近い物件
新橋スズキビルの募集終了区画
| 階数 | 面積 | 賃料+共益費 | 保証金 | 入居時期 | 更新料 | 償却費 | 礼金 | 平面図 | 詳細 |
|---|---|---|---|---|---|---|---|---|---|
| 3 | 20.00坪 | − | − | 募集終了 | − | − | − | ||
| 4 | 20.00坪 | − | − | 募集終了 | − | − | − | ||
| 6 | 20.00坪 | − | − | 募集終了 | − | − | − |


