現在、空室がございません。
IMC新橋の貸事務所・賃貸オフィス情報
IMC新橋の貸事務所・賃貸オフィス情報
IMC新橋
- エレベーター
- 個別空調
- 新耐震基準
IMC新橋の空室フロアリスト
現在、空室がございません。
IMC新橋の物件情報
IMC新橋(港区新橋)は御成門駅徒歩7分、新橋駅徒歩7分、内幸町駅徒歩7分の賃貸オフィスです。
IMC新橋のアクセス
IMC新橋の募集終了区画
| 階数 | 面積 | 賃料+共益費 | 保証金 | 入居時期 | 更新料 | 償却費 | 礼金 | 平面図 | 詳細 |
|---|---|---|---|---|---|---|---|---|---|
| 地下1 | 108.31坪 | − | − | 募集終了 | − | − | − | ||
| 2 | 37.24坪 | − | − | 募集終了 | − | − | − | ||
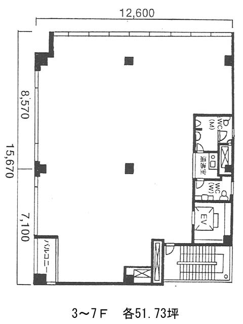
| 3 | 51.73坪 | − | − | 募集終了 | − | − | − | ||
| 3 | 32.78坪 | − | − | 募集終了 | − | − | − | ||
| 3 | 19.44坪 | − | − | 募集終了 | − | − | − | ||
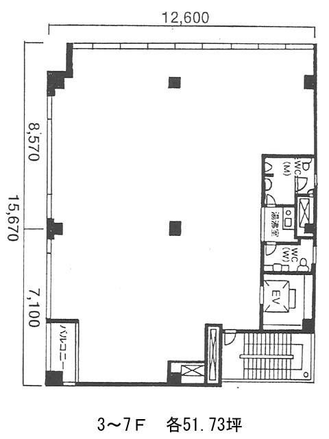
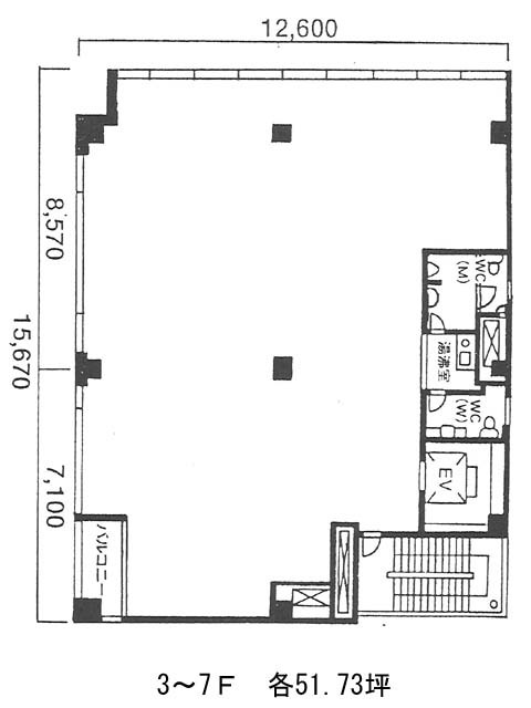
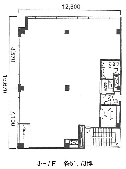
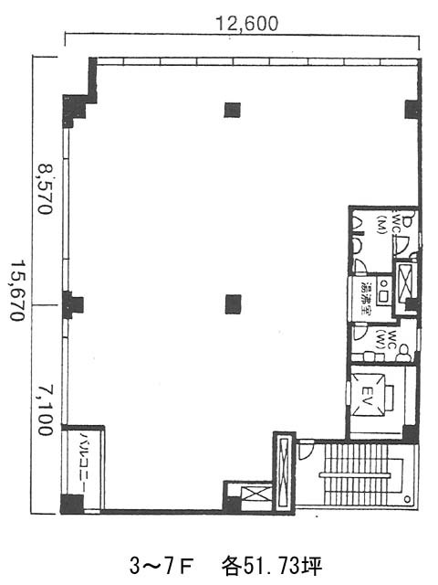
| 4 | 51.73坪 | − | − | 募集終了 | − | − | − | ||
| 5 | 51.73坪 | − | − | 募集終了 | − | − | − | ||
| 6 | 51.73坪 | − | − | 募集終了 | − | − | − | ||
| 7 | 51.73坪 | − | − | 募集終了 | − | − | − | ||
| 8 | 28.24坪 | − | − | 募集終了 | − | − | − | ||
| 9 | 20.95坪 | − | − | 募集終了 | − | − | − |


