永井ビルの貸事務所・賃貸オフィス情報
永井ビルの貸事務所・賃貸オフィス情報
永井ビル
- エレベーター
- 個別空調
- 新耐震基準
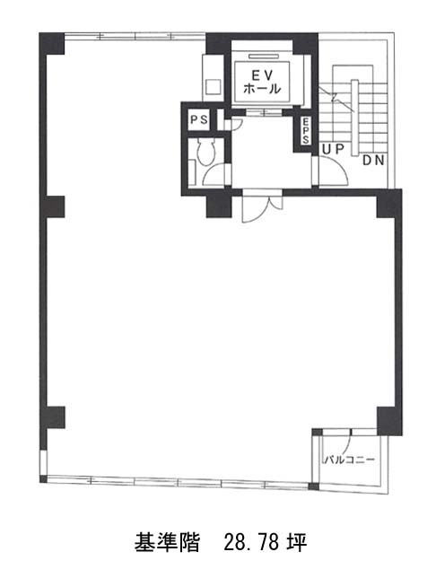
永井ビルの空室フロアリスト
| 階数 | 面積 | 賃料+共益費 | 保証金 | 入居時期 | 更新料 | 償却費 | 礼金 | 検討 | 平面図 | 詳細 |
|---|---|---|---|---|---|---|---|---|---|---|
| 5 | 28.78坪 |
443,212円15,400円/坪
|
402万円
|
2026年1月上旬 | 新1ケ月 | 1ケ月 | なし |
永井ビルの物件情報
永井ビル(港区新橋)は御成門駅徒歩7分、新橋駅徒歩7分、汐留駅徒歩8分の賃貸オフィスです。
永井ビルのアクセス
永井ビルの募集終了区画
| 階数 | 面積 | 賃料+共益費 | 保証金 | 入居時期 | 更新料 | 償却費 | 礼金 | 平面図 | 詳細 |
|---|---|---|---|---|---|---|---|---|---|
| 2 | 28.78坪 | − | − | 募集終了 | − | − | − | ||
| 3 | 28.78坪 | − | − | 募集終了 | − | − | − | ||
| 4 | 28.78坪 | − | − | 募集終了 | − | − | − | ||
| 6 | 25.64坪 | − | − | 募集終了 | − | − | − |


