新橋アオヤギビルの貸事務所・賃貸オフィス情報
新橋アオヤギビルの貸事務所・賃貸オフィス情報
新橋アオヤギビル
- エレベーター
- 個別空調
- 新耐震基準
新橋アオヤギビルの空室フロアリスト
| 階数 | 面積 | 賃料+共益費 | 保証金 | 入居時期 | 更新料 | 償却費 | 礼金 | 検討 | 平面図 | 詳細 |
|---|---|---|---|---|---|---|---|---|---|---|
| 1 | 20.17坪 |
1,540,022円76,352円/坪
|
1400万円
|
即 | 新1ケ月 | 2ケ月 | なし |
新橋アオヤギビルの物件情報
新橋アオヤギビル(港区新橋)は内幸町駅徒歩2分、新橋駅徒歩3分、虎ノ門駅徒歩7分の賃貸オフィスです。
新橋アオヤギビルのアクセス
新橋アオヤギビルの募集終了区画
| 階数 | 面積 | 賃料+共益費 | 保証金 | 入居時期 | 更新料 | 償却費 | 礼金 | 平面図 | 詳細 |
|---|---|---|---|---|---|---|---|---|---|
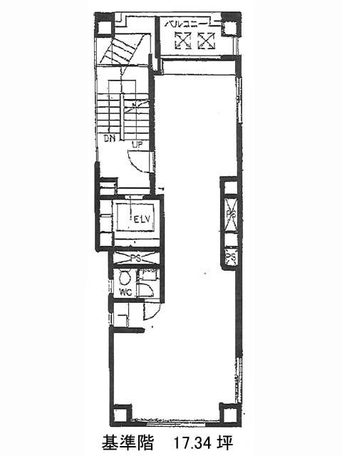
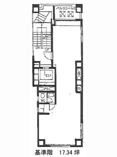
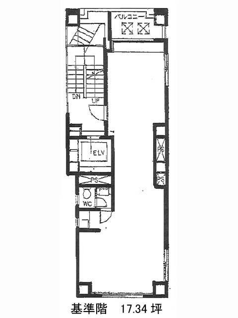
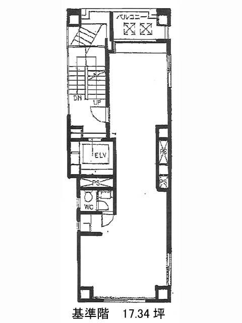
| 2 | 17.34坪 | − | − | 募集終了 | − | − | − | ||
| 3 | 17.34坪 | − | − | 募集終了 | − | − | − | ||
| 4 | 17.34坪 | − | − | 募集終了 | − | − | − | ||
| 5 | 17.34坪 | − | − | 募集終了 | − | − | − | ||
| 6 | 17.34坪 | − | − | 募集終了 | − | − | − |


