新橋東急ビルの貸事務所・賃貸オフィス情報
新橋東急ビルの貸事務所・賃貸オフィス情報
新橋東急ビル
- エレベーター
- 個別空調
- 駐車場
- 新耐震基準
新橋東急ビルの空室フロアリスト
| 階数 | 面積 | 賃料+共益費 | 保証金 | 入居時期 | 更新料 | 償却費 | 礼金 | 検討 | 平面図 | 詳細 |
|---|---|---|---|---|---|---|---|---|---|---|
| 14 | 211.03坪 |
応相談応相談
|
応相談
|
2027年8月上旬 | なし | なし | なし | |||
| 15 | 211.03坪 |
応相談応相談
|
応相談
|
2027年8月上旬 | なし | なし | なし | |||
| 16 | 211.03坪 |
応相談応相談
|
応相談
|
2027年8月上旬 | なし | なし | なし |
新橋東急ビルの物件情報
新橋東急ビル(港区新橋)は新橋駅徒歩2分、汐留駅徒歩5分、内幸町駅徒歩9分の賃貸オフィスです。
新橋東急ビルのアクセス
新橋東急ビルの募集終了区画
| 階数 | 面積 | 賃料+共益費 | 保証金 | 入居時期 | 更新料 | 償却費 | 礼金 | 平面図 | 詳細 |
|---|---|---|---|---|---|---|---|---|---|
| 1 | 74.12坪 | − | − | 募集終了 | − | − | − | ||
| 4 | 209.76坪 | − | − | 募集終了 | − | − | − | ||
| 5 | 209.76坪 | − | − | 募集終了 | − | − | − | ||
| 6 | 209.76坪 | − | − | 募集終了 | − | − | − | ||
| 7 | 201.44坪 | − | − | 募集終了 | − | − | − | ||
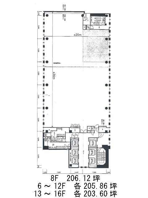
| 8 | 206.12坪 | − | − | 募集終了 | − | − | − | ||
| 9 | 205.86坪 | − | − | 募集終了 | − | − | − | ||
| 10 | 205.86坪 | − | − | 募集終了 | − | − | − | ||
| 11 | 205.86坪 | − | − | 募集終了 | − | − | − | ||
| 12 | 205.86坪 | − | − | 募集終了 | − | − | − | ||
| 13 | 203.60坪 | − | − | 募集終了 | − | − | − |


