現在、空室がございません。
杉村ビルの貸事務所・賃貸オフィス情報
杉村ビルの貸事務所・賃貸オフィス情報
杉村ビル
- エレベーター
- 個別空調
- 新耐震基準
杉村ビルの空室フロアリスト
現在、空室がございません。
杉村ビルの物件情報
杉村ビル(港区新橋)は内幸町駅徒歩2分、新橋駅徒歩3分、虎ノ門駅徒歩7分の賃貸オフィスです。
杉村ビルのアクセス
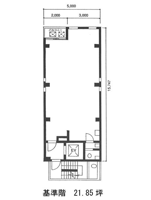
杉村ビルの募集終了区画
| 階数 | 面積 | 賃料+共益費 | 保証金 | 入居時期 | 更新料 | 償却費 | 礼金 | 平面図 | 詳細 |
|---|---|---|---|---|---|---|---|---|---|
| 地下1 | 17.10坪 | − | − | 募集終了 | − | − | − | ||
| 2 | 21.85坪 | − | − | 募集終了 | − | − | − | ||
| 3 | 21.85坪 | − | − | 募集終了 | − | − | − | ||
| 5 | 21.85坪 | − | − | 募集終了 | − | − | − | ||
| 6 | 21.85坪 | − | − | 募集終了 | − | − | − | ||
| 7 | 21.85坪 | − | − | 募集終了 | − | − | − | ||
| 8 | 18.03坪 | − | − | 募集終了 | − | − | − | ||
| 9 | 21.85坪 | − | − | 募集終了 | − | − | − | ||
| 9 | 17.45坪 | − | − | 募集終了 | − | − | − |


