0120-16-2331

【受付時間】平日 AM9:00〜PM7:00

メールでお問合せ
現在、空室がございません。

Daiwa西新橋ビルの貸事務所・賃貸オフィス情報

Daiwa西新橋ビルの貸事務所・賃貸オフィス情報

Daiwa西新橋ビル

物件番号
131​-​00112
所在地
東京都港区西新橋3-2-1
最寄駅
神谷町駅 10分
竣工
1993年7月
規模
地上10階/地下1階
  • エレベーター
  • 個別空調
  • 駐車場
  • 新耐震基準

Daiwa西新橋ビルの空室フロアリスト

現在、空室がございません。

Daiwa西新橋ビルの物件情報

Daiwa西新橋ビル(港区西新橋)は虎ノ門ヒルズ駅徒歩5分、虎ノ門駅徒歩8分、御成門駅徒歩9分の賃貸オフィスです。

Daiwa西新橋ビルのアクセス

Daiwa西新橋ビルの募集終了区画

階数 面積 賃料+共益費 保証金 入居時期 更新料 償却費 礼金 平面図 詳細
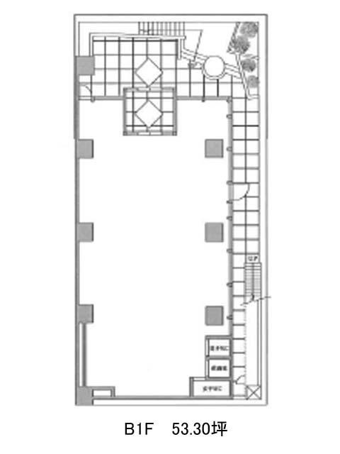
地下1 53.30坪 募集終了
1 124.80坪 募集終了
2 87.80坪 募集終了
2 91.40坪 募集終了
3 186.10坪 募集終了
4 164.20坪 募集終了
5 148.20坪 募集終了
6 132.40坪 募集終了
7 132.40坪 募集終了
8 71.50坪 募集終了
8 60.90坪 募集終了
9 116.56坪 募集終了
9 56.30坪 募集終了
10 86.20坪 募集終了

貸事務所・賃貸オフィスを最寄駅から探す

貸事務所・賃貸オフィスを最寄駅の沿線から探す

お問合せ このビルについて問い合わせる