メディコ西新橋ビルの貸事務所・賃貸オフィス情報
- 物件番号
- 131-00252
メディコ西新橋ビルの貸事務所・賃貸オフィス情報
メディコ西新橋ビルの物件情報
メディコ西新橋ビル(港区西新橋)は御成門駅徒歩5分、内幸町駅徒歩8分、虎ノ門ヒルズ駅徒歩9分の賃貸オフィスです。
- 所在地
- 東京都港区西新橋3-19-12
- 規模
- 地上6階
- 竣工
- 1990年2月
- エレベーター
- 個別空調
- 新耐震基準
メディコ西新橋ビルの空室フロアリスト
| 階数 | 面積 | 賃料+共益費 | 保証金 | 入居時期 | 更新料 | 償却費 | 礼金 | 検討 | 平面図 | 詳細 |
|---|---|---|---|---|---|---|---|---|---|---|
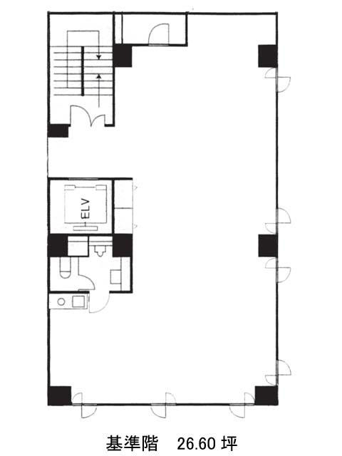
| 4 | 26.60坪 |
413,490円15,545円/坪
|
201万円
|
即 | 新1ケ月 | なし | 1ケ月 |
メディコ西新橋ビルの募集終了区画
| 階数 | 面積 | 賃料+共益費 | 保証金 | 入居時期 | 更新料 | 償却費 | 礼金 | 平面図 | 詳細 |
|---|---|---|---|---|---|---|---|---|---|
| 2 | 26.60坪 | − | − | 募集終了 | − | − | − | ||
| 3 | 26.60坪 | − | − | 募集終了 | − | − | − | ||
| 5 | 26.60坪 | − | − | 募集終了 | − | − | − | ||
| 6 | 25.45坪 | − | − | 募集終了 | − | − | − |


