ル・グラシエルBLDG.70の貸事務所・賃貸オフィス情報
ル・グラシエルBLDG.70の貸事務所・賃貸オフィス情報
ル・グラシエルBLDG.70
- 物件番号
- 131-00307
- 所在地
- 東京都港区西新橋1-5-9
- 竣工
- 1967年2月
- 規模
- 地上8階/地下1階
- エレベーター
- 個別空調
- 旧耐震基準
ル・グラシエルBLDG.70の空室フロアリスト
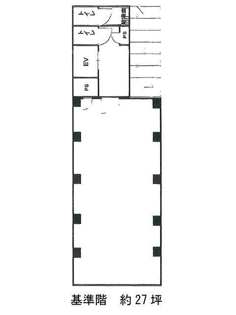
| 階数 | 面積 | 賃料+共益費 | 保証金 | 入居時期 | 更新料 | 償却費 | 礼金 | 検討 | 平面図 | 詳細 |
|---|---|---|---|---|---|---|---|---|---|---|
| 7 | 27.19坪 |
538,362円19,800円/坪
|
203万円
|
即 | なし | なし | なし |
ル・グラシエルBLDG.70の物件情報
ル・グラシエルBLDG.70(港区西新橋)は内幸町駅徒歩2分、虎ノ門駅徒歩5分、新橋駅徒歩5分の賃貸オフィスです。
ル・グラシエルBLDG.70のアクセス
ル・グラシエルBLDG.70の条件に近い物件
ル・グラシエルBLDG.70の募集終了区画
| 階数 | 面積 | 賃料+共益費 | 保証金 | 入居時期 | 更新料 | 償却費 | 礼金 | 平面図 | 詳細 |
|---|---|---|---|---|---|---|---|---|---|
| 2 | 27.18坪 | − | − | 募集終了 | − | − | − | ||
| 3 | 27.18坪 | − | − | 募集終了 | − | − | − | ||
| 4 | 27.18坪 | − | − | 募集終了 | − | − | − | ||
| 5 | 27.18坪 | − | − | 募集終了 | − | − | − | ||
| 5 | 27.18坪 | − | − | 募集終了 | − | − | − | ||
| 6 | 27.18坪 | − | − | 募集終了 | − | − | − | ||
| 6 | 27.19坪 | − | − | 募集終了 | − | − | − | ||
| 8 | 27.18坪 | − | − | 募集終了 | − | − | − |


