西新橋PR-EXの貸事務所・賃貸オフィス情報
西新橋PR-EXの貸事務所・賃貸オフィス情報
西新橋PR-EX
- 物件番号
- 131-00378
- 所在地
- 東京都港区西新橋2-4-12
- 竣工
- 2008年12月
- 規模
- 地上9階/地下1階
- エレベーター
- 個別空調
- 新耐震基準
西新橋PR-EXの空室フロアリスト
| 階数 | 面積 | 賃料+共益費 | 保証金 | 入居時期 | 更新料 | 償却費 | 礼金 | 検討 | 平面図 | 詳細 |
|---|---|---|---|---|---|---|---|---|---|---|
| 2 | 40.29坪 |
応相談応相談
|
応相談
|
2026年8月下旬 | 新1ケ月 | なし | なし | |||
| 6 | 40.29坪 |
応相談応相談
|
応相談
|
2026年7月上旬 | 新1ケ月 | なし | なし |
西新橋PR-EXの物件情報
西新橋PR-EX(港区西新橋)は虎ノ門ヒルズ駅徒歩4分、内幸町駅徒歩5分、虎ノ門駅徒歩6分の賃貸オフィスです。
西新橋PR-EXのアクセス
西新橋PR-EXの条件に近い物件
西新橋PR-EXの募集終了区画
| 階数 | 面積 | 賃料+共益費 | 保証金 | 入居時期 | 更新料 | 償却費 | 礼金 | 平面図 | 詳細 |
|---|---|---|---|---|---|---|---|---|---|
| 地下1 | 60.27坪 | − | − | 募集終了 | − | − | − | ||
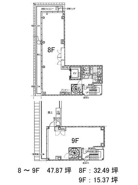
| 8-9 | 47.87坪 | − | − | 募集終了 | − | − | − | ||
| B1-1 | 60.27坪 | − | − | 募集終了 | − | − | − | ||
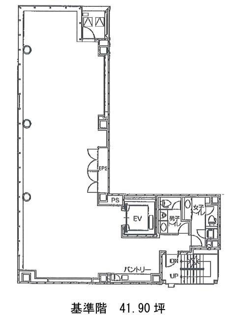
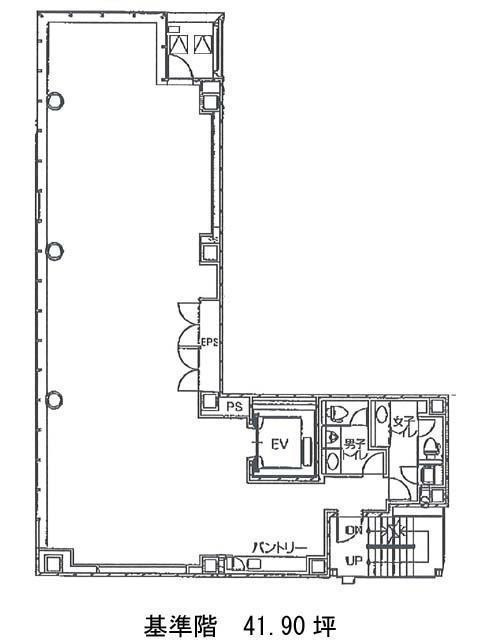
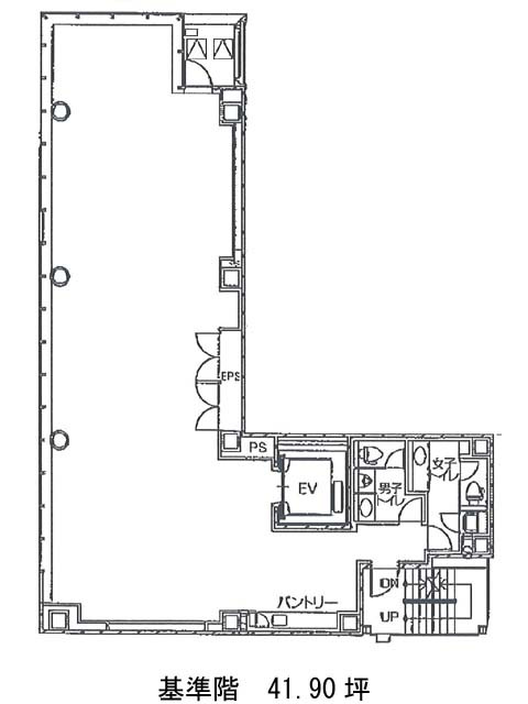
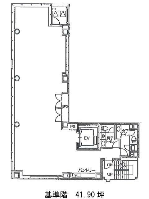
| 2 | 41.90坪 | − | − | 募集終了 | − | − | − | ||
| 3 | 41.90坪 | − | − | 募集終了 | − | − | − | ||
| 4 | 41.90坪 | − | − | 募集終了 | − | − | − | ||
| 5 | 41.90坪 | − | − | 募集終了 | − | − | − | ||
| 7 | 41.90坪 | − | − | 募集終了 | − | − | − |


