現在、空室がございません。
御成門小田急ビルの貸事務所・賃貸オフィス情報
御成門小田急ビルの貸事務所・賃貸オフィス情報
御成門小田急ビル
- エレベーター
- 個別空調
- 駐車場
- 新耐震基準
御成門小田急ビルの空室フロアリスト
現在、空室がございません。
御成門小田急ビルの物件情報
御成門小田急ビル(港区西新橋)は御成門駅徒歩2分、神谷町駅徒歩9分、大門駅徒歩10分の賃貸オフィスです。
御成門小田急ビルのアクセス
御成門小田急ビルの募集終了区画
| 階数 | 面積 | 賃料+共益費 | 保証金 | 入居時期 | 更新料 | 償却費 | 礼金 | 平面図 | 詳細 |
|---|---|---|---|---|---|---|---|---|---|
| 1 | 25.22坪 | − | − | 募集終了 | − | − | − | ||
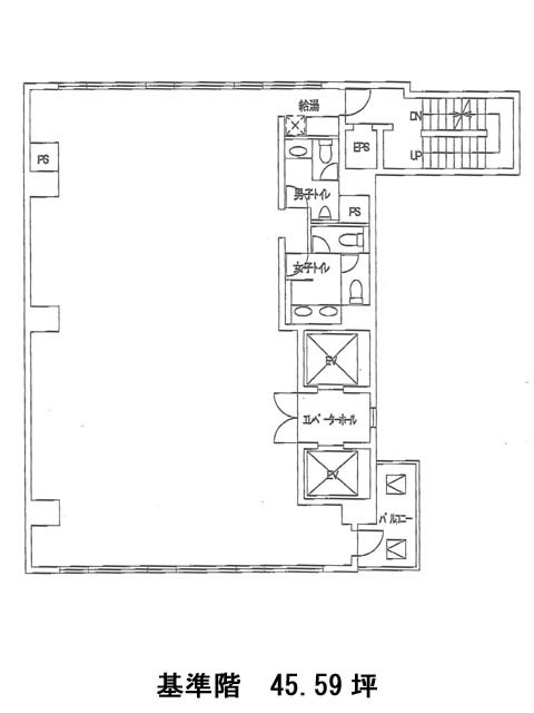
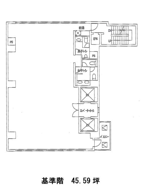
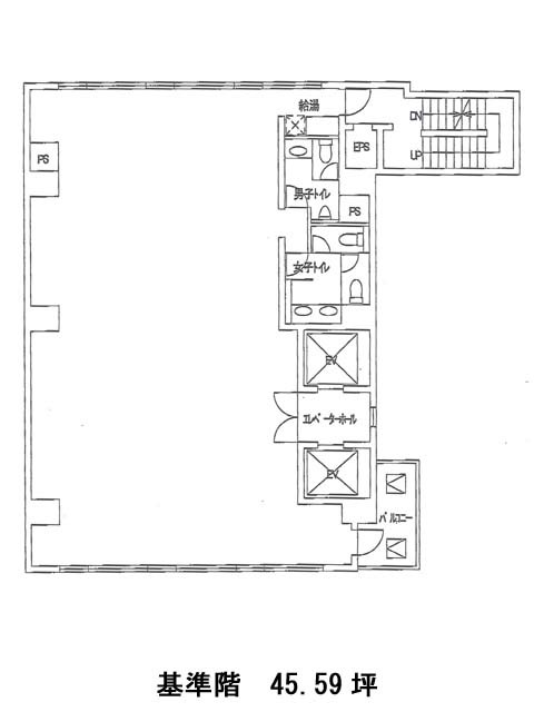
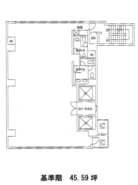
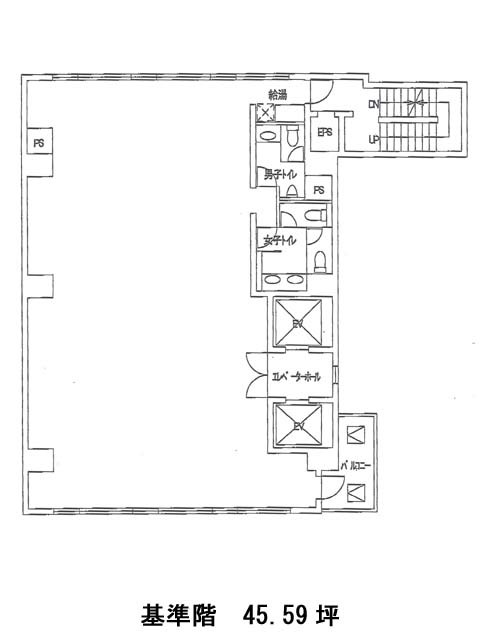
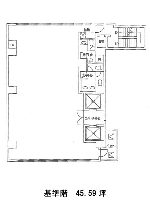
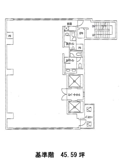
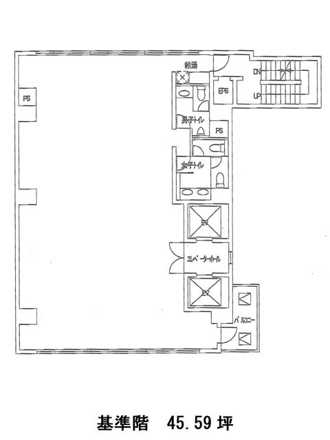
| 2 | 45.59坪 | − | − | 募集終了 | − | − | − | ||
| 3 | 45.59坪 | − | − | 募集終了 | − | − | − | ||
| 4 | 45.59坪 | − | − | 募集終了 | − | − | − | ||
| 5 | 45.59坪 | − | − | 募集終了 | − | − | − | ||
| 6 | 45.59坪 | − | − | 募集終了 | − | − | − | ||
| 7 | 45.59坪 | − | − | 募集終了 | − | − | − | ||
| 8 | 45.59坪 | − | − | 募集終了 | − | − | − | ||
| 9 | 45.59坪 | − | − | 募集終了 | − | − | − | ||
| 10 | 45.59坪 | − | − | 募集終了 | − | − | − | ||
| 11 | 45.59坪 | − | − | 募集終了 | − | − | − | ||
| 12 | 34.82坪 | − | − | 募集終了 | − | − | − |


