井筒西麻布ビルの貸事務所・賃貸オフィス情報
井筒西麻布ビルの貸事務所・賃貸オフィス情報
井筒西麻布ビル
- エレベーター
- 個別空調
- 新耐震基準
井筒西麻布ビルの空室フロアリスト
| 階数 | 面積 | 賃料+共益費 | 保証金 | 入居時期 | 更新料 | 償却費 | 礼金 | 検討 | 平面図 | 詳細 |
|---|---|---|---|---|---|---|---|---|---|---|
| 6 | 24.64坪 |
605,000円24,554円/坪
|
550万円
|
2026年6月上旬 | なし | 1ケ月 | なし |
井筒西麻布ビルの物件情報
井筒西麻布ビル(港区西麻布)は広尾駅徒歩7分、六本木駅徒歩10分、乃木坂駅徒歩13分の賃貸オフィスです。
井筒西麻布ビルのアクセス
井筒西麻布ビルの条件に近い物件
井筒西麻布ビルの募集終了区画
| 階数 | 面積 | 賃料+共益費 | 保証金 | 入居時期 | 更新料 | 償却費 | 礼金 | 平面図 | 詳細 |
|---|---|---|---|---|---|---|---|---|---|
| 1 | 18.54坪 | − | − | 募集終了 | − | − | − | ||
| 3 | 29.05坪 | − | − | 募集終了 | − | − | − | ||
| 4 | 29.05坪 | − | − | 募集終了 | − | − | − | ||
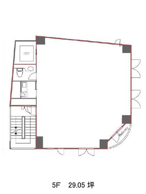
| 5 | 29.05坪 | − | − | 募集終了 | − | − | − |


