久田ビルの貸事務所・賃貸オフィス情報
久田ビルの貸事務所・賃貸オフィス情報
久田ビル
- エレベーター
- 個別空調
- 旧耐震基準
久田ビルの空室フロアリスト
| 階数 | 面積 | 賃料+共益費 | 保証金 | 入居時期 | 更新料 | 償却費 | 礼金 | 検討 | 平面図 | 詳細 |
|---|---|---|---|---|---|---|---|---|---|---|
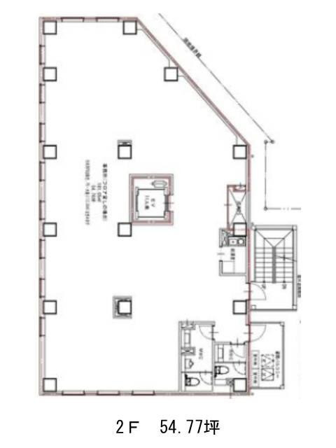
| 2 | 54.77坪 |
1,600,040円29,213円/坪
|
1745万円
|
即 | 新1ケ月 | 1ケ月 | なし |
久田ビルの物件情報
久田ビル(港区東新橋)は新橋駅徒歩3分、汐留駅徒歩3分、内幸町駅徒歩11分の賃貸オフィスです。
久田ビルのアクセス
久田ビルの条件に近い物件
久田ビルの募集終了区画
| 階数 | 面積 | 賃料+共益費 | 保証金 | 入居時期 | 更新料 | 償却費 | 礼金 | 平面図 | 詳細 |
|---|---|---|---|---|---|---|---|---|---|
| 1 | 23.68坪 | − | − | 募集終了 | − | − | − | ||
| 2 | 39.53坪 | − | − | 募集終了 | − | − | − | ||
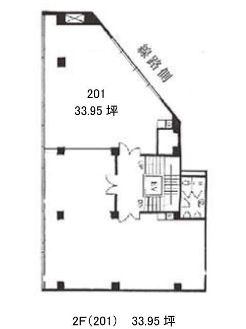
| 2 | 33.95坪 | − | − | 募集終了 | − | − | − | ||
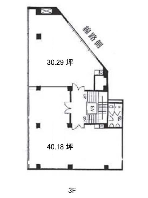
| 3 | 30.29坪 | − | − | 募集終了 | − | − | − | ||
| 3 | 40.18坪 | − | − | 募集終了 | − | − | − | ||
| 4 | 73.48坪 | − | − | 募集終了 | − | − | − | ||
| 5 | 73.48坪 | − | − | 募集終了 | − | − | − | ||
| 5 | 73.48坪 | − | − | 募集終了 | − | − | − | ||
| 6 | 26.33坪 | − | − | 募集終了 | − | − | − | ||
| 6 | 39.34坪 | − | − | 募集終了 | − | − | − | ||
| 7 | 26.33坪 | − | − | 募集終了 | − | − | − | ||
| 7 | 23.22坪 | − | − | 募集終了 | − | − | − | ||
| 7 | 25.05坪 | − | − | 募集終了 | − | − | − | ||
| 8 | 19.49坪 | − | − | 募集終了 | − | − | − |


