0120-16-2331

【受付時間】平日 AM9:00〜PM7:00

メールでお問合せ

南麻布Aビルの貸事務所・賃貸オフィス情報

南麻布Aビルの貸事務所・賃貸オフィス情報

南麻布Aビル

物件番号
138​-​00067
所在地
東京都港区南麻布1-6-36
最寄駅
赤羽橋駅 15分
竣工
1991年4月
規模
地上8階/地下1階
  • エレベーター
  • 個別空調
  • 新耐震基準

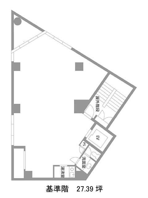
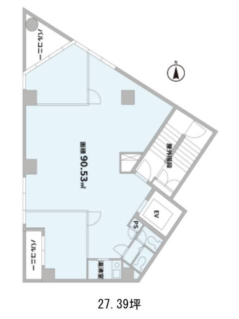
南麻布Aビルの空室フロアリスト

階数 面積 賃料+共益費 保証金 入居時期 更新料 償却費 礼金 検討 平面図 詳細
6 27.39坪
528,000円19,278円/坪
172万円
2026年5月上旬 新1ケ月 1ケ月 1ケ月

南麻布Aビルの物件情報

南麻布Aビル(港区南麻布)は麻布十番駅徒歩4分、白金高輪駅徒歩13分、赤羽橋駅徒歩15分の賃貸オフィスです。

南麻布Aビルのアクセス

南麻布Aビルの条件に近い物件

ナカヤマビル

東京都港区南麻布2-7-32

ナカヤマビル

南麻布3丁目ビル

東京都港区南麻布3

南麻布3丁目ビル

有栖川ヒルトップ

東京都港区南麻布5-5-7

有栖川ヒルトップ
  • 面積 17.51坪
  • 空きフロア 1
  • 最寄り駅
    広尾駅 徒歩7分

麻布8ハウス

東京都港区南麻布3-19-7

麻布8ハウス

小池ビル

東京都港区南麻布1-5-10

小池ビル

EM南麻布ビル

東京都港区南麻布2-13-12

EM南麻布ビル

貸事務所・賃貸オフィスを最寄駅から探す

貸事務所・賃貸オフィスを最寄駅の沿線から探す

南麻布Aビルの募集終了区画

階数 面積 賃料+共益費 保証金 入居時期 更新料 償却費 礼金 平面図 詳細
地下1 31.41坪 募集終了
2 52.94坪 募集終了
3 28.27坪 募集終了
4 28.27坪 募集終了
5 28.27坪 募集終了
7 27.38坪 募集終了
8 18.20坪 募集終了
お問合せ このビルについて問い合わせる