現在、空室がございません。
HK浜松町ビルの貸事務所・賃貸オフィス情報
HK浜松町ビルの貸事務所・賃貸オフィス情報
HK浜松町ビル
- 物件番号
- 141-00182
- 所在地
- 東京都港区浜松町1-20-8
- 竣工
- 1989年2月
- 規模
- 地上6階/地下1階
- エレベーター
- 個別空調
- 新耐震基準
HK浜松町ビルの空室フロアリスト
現在、空室がございません。
HK浜松町ビルの物件情報
HK浜松町ビル(港区浜松町)は大門駅徒歩3分、浜松町駅徒歩3分、モノレール浜松町駅徒歩5分の賃貸オフィスです。
HK浜松町ビルのアクセス
HK浜松町ビルの募集終了区画
| 階数 | 面積 | 賃料+共益費 | 保証金 | 入居時期 | 更新料 | 償却費 | 礼金 | 平面図 | 詳細 |
|---|---|---|---|---|---|---|---|---|---|
| 地下1 | 42.69坪 | − | − | 募集終了 | − | − | − | ||
| 地下1 | 22.22坪 | − | − | 募集終了 | − | − | − | ||
| 2 | 49.14坪 | − | − | 募集終了 | − | − | − | ||
| 3 | 49.14坪 | − | − | 募集終了 | − | − | − | ||
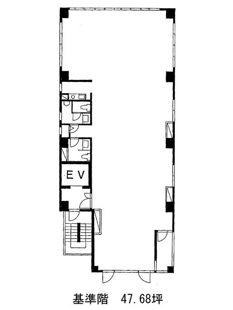
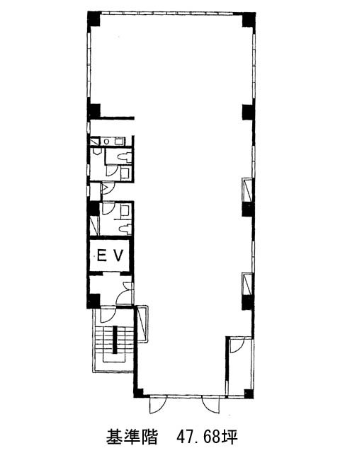
| 4 | 47.68坪 | − | − | 募集終了 | − | − | − | ||
| 5 | 47.68坪 | − | − | 募集終了 | − | − | − | ||
| 6 | 47.87坪 | − | − | 募集終了 | − | − | − | ||
| 7 | 23.38坪 | − | − | 募集終了 | − | − | − |


