東亜ビルの貸事務所・賃貸オフィス情報
- 物件番号
- 141-00269
東亜ビルの貸事務所・賃貸オフィス情報
東亜ビルの物件情報
東亜ビル(港区浜松町)は大門駅徒歩1分、浜松町駅徒歩4分、モノレール浜松町駅徒歩5分の賃貸オフィスです。
- 所在地
- 東京都港区浜松町2-1-18
- 規模
- 地上8階
- 竣工
- 2011年1月
- エレベーター
- 個別空調
- 新耐震基準
東亜ビルの空室フロアリスト
| 階数 | 面積 | 賃料+共益費 | 保証金 | 入居時期 | 更新料 | 償却費 | 礼金 | 検討 | 平面図 | 詳細 |
|---|---|---|---|---|---|---|---|---|---|---|
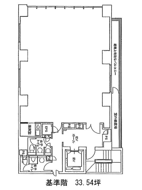
| 5 | 33.54坪 |
737,880円22,000円/坪
|
応相談
|
即 | なし | なし | なし |
東亜ビルの募集終了区画
| 階数 | 面積 | 賃料+共益費 | 保証金 | 入居時期 | 更新料 | 償却費 | 礼金 | 平面図 | 詳細 |
|---|---|---|---|---|---|---|---|---|---|
| 1 | 20.26坪 | − | − | 募集終了 | − | − | − | ||
| 2 | 28.63坪 | − | − | 募集終了 | − | − | − | ||
| 3 | 33.54坪 | − | − | 募集終了 | − | − | − | ||
| 4 | 33.54坪 | − | − | 募集終了 | − | − | − | ||
| 6 | 33.54坪 | − | − | 募集終了 | − | − | − | ||
| 7 | 33.54坪 | − | − | 募集終了 | − | − | − | ||
| 8 | 33.54坪 | − | − | 募集終了 | − | − | − |


