現在、空室がございません。
森ビルの貸事務所・賃貸オフィス情報
森ビルの貸事務所・賃貸オフィス情報
森ビル
- エレベーター
- 旧耐震基準
森ビルの空室フロアリスト
現在、空室がございません。
森ビルの物件情報
森ビル(港区浜松町)は大門駅徒歩2分、浜松町駅徒歩3分、モノレール浜松町駅徒歩5分の賃貸オフィスです。
森ビルのアクセス
森ビルの募集終了区画
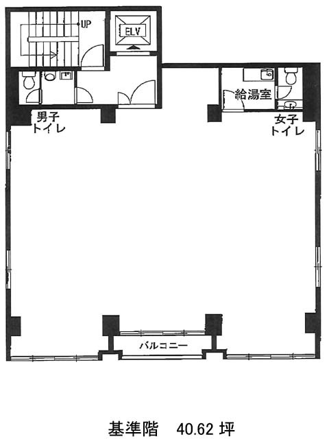
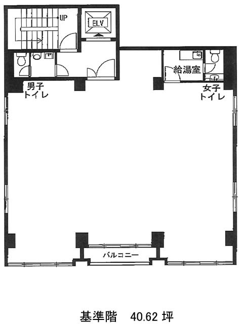
| 階数 | 面積 | 賃料+共益費 | 保証金 | 入居時期 | 更新料 | 償却費 | 礼金 | 平面図 | 詳細 |
|---|---|---|---|---|---|---|---|---|---|
| 2 | 40.62坪 | − | − | 募集終了 | − | − | − | ||
| 3 | 40.62坪 | − | − | 募集終了 | − | − | − | ||
| 4 | 40.62坪 | − | − | 募集終了 | − | − | − | ||
| 5 | 40.62坪 | − | − | 募集終了 | − | − | − |


