現在、空室がございません。
INPACビルの貸事務所・賃貸オフィス情報
INPACビルの貸事務所・賃貸オフィス情報
INPACビル
- エレベーター
- 個別空調
- 新耐震基準
INPACビルの空室フロアリスト
現在、空室がございません。
INPACビルの物件情報
INPACビル(港区浜松町)は大門駅徒歩2分、浜松町駅徒歩5分、モノレール浜松町駅徒歩6分の賃貸オフィスです。
INPACビルのアクセス
INPACビルの募集終了区画
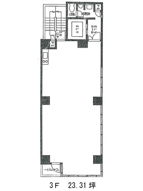
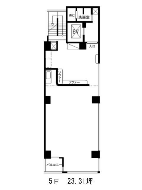
| 階数 | 面積 | 賃料+共益費 | 保証金 | 入居時期 | 更新料 | 償却費 | 礼金 | 平面図 | 詳細 |
|---|---|---|---|---|---|---|---|---|---|
| 3 | 23.31坪 | − | − | 募集終了 | − | − | − | ||
| 4 | 23.31坪 | − | − | 募集終了 | − | − | − | ||
| 5 | 23.31坪 | − | − | 募集終了 | − | − | − |


