エフプラザの貸事務所・賃貸オフィス情報
エフプラザの貸事務所・賃貸オフィス情報
エフプラザ
- 物件番号
- 144-00036
- 所在地
- 東京都港区麻布十番1-3-8
- 竣工
- 1984年11月
- 規模
- 地上8階/地下1階
- エレベーター
- 新耐震基準
エフプラザの空室フロアリスト
| 階数 | 面積 | 賃料+共益費 | 保証金 | 入居時期 | 更新料 | 償却費 | 礼金 | 検討 | 平面図 | 詳細 |
|---|---|---|---|---|---|---|---|---|---|---|
| 4 | 24.80坪 |
528,000円21,291円/坪
|
172万円
|
即 | 新1ケ月 | なし | 1ケ月 |
エフプラザの物件情報
エフプラザ(港区麻布十番)は麻布十番駅徒歩2分、赤羽橋駅徒歩10分、六本木駅徒歩12分の賃貸オフィスです。
エフプラザのアクセス
エフプラザの条件に近い物件
エフプラザの募集終了区画
| 階数 | 面積 | 賃料+共益費 | 保証金 | 入居時期 | 更新料 | 償却費 | 礼金 | 平面図 | 詳細 |
|---|---|---|---|---|---|---|---|---|---|
| 地下1 | 50.00坪 | − | − | 募集終了 | − | − | − | ||
| 1 | 20.13坪 | − | − | 募集終了 | − | − | − | ||
| 2 | 24.81坪 | − | − | 募集終了 | − | − | − | ||
| 3 | 22.32坪 | − | − | 募集終了 | − | − | − | ||
| 5 | 24.81坪 | − | − | 募集終了 | − | − | − | ||
| 6 | 24.81坪 | − | − | 募集終了 | − | − | − | ||
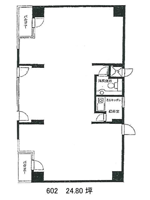
| 6 | 24.80坪 | − | − | 募集終了 | − | − | − |


