現在、空室がございません。
ABビルの貸事務所・賃貸オフィス情報
ABビルの貸事務所・賃貸オフィス情報
ABビル
- エレベーター
- 個別空調
- 駐車場
- 耐震補強済み
ABビルの空室フロアリスト
現在、空室がございません。
ABビルの物件情報
ABビル(港区六本木)は六本木一丁目駅徒歩2分、六本木駅徒歩7分、溜池山王駅徒歩7分の賃貸オフィスです。
ABビルのアクセス
ABビルの募集終了区画
| 階数 | 面積 | 賃料+共益費 | 保証金 | 入居時期 | 更新料 | 償却費 | 礼金 | 平面図 | 詳細 |
|---|---|---|---|---|---|---|---|---|---|
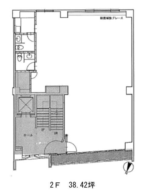
| 2 | 38.42坪 | − | − | 募集終了 | − | − | − | ||
| 3 | 43.70坪 | − | − | 募集終了 | − | − | − | ||
| 4 | 43.87坪 | − | − | 募集終了 | − | − | − | ||
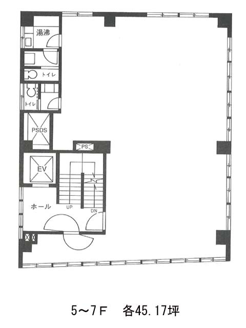
| 5 | 45.17坪 | − | − | 募集終了 | − | − | − | ||
| 6 | 44.47坪 | − | − | 募集終了 | − | − | − | ||
| 7 | 45.17坪 | − | − | 募集終了 | − | − | − |


